Di Giuseppe Esposito
Epoca: XVIII Dinastia
Titolare
| Titolare | Titolo | Necropoli[3] | Dinastia/Periodo | Note[4] |
| Dhout | Coppiere e araldo del re | Sheikh Abd el-Qurna | XVIII dinastia (Hatshepsut – Thutmosi III) | accessibile dalla TT42 |

Biografia
Pesediri, fu suo padre, Keku sua madre e Baket sua moglie.
La tomba


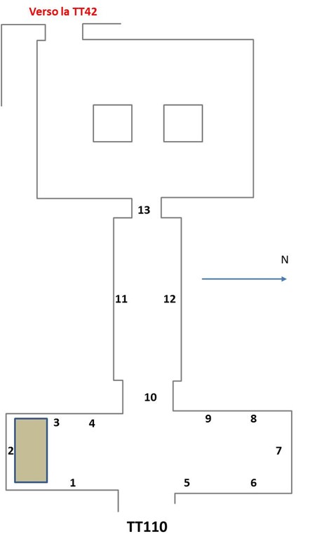
La tomba presenta un doppio ingresso, da un breve corridoio che si apre in una corte e dalla vicina tomba TT42. Un breve corridoio dà accesso ad una sala trasversale, secondo lo schema planimetrico tipico delle tombe del periodo a “T” rovesciata. In un dipinto (1 in planimetria[5]) il defunto ispeziona la preparazione del vino; segue una stele (2) con inno ad Amon e Ra-Horakhti[6] e (3) una falsa porta con testi di offertorio agli dei.

Poco discosto (4) il defunto offre mazzi di fiori al faraone Thutmosi III. Oltre il corridoio che adduce ad una camera perpendicolare alla prima, il defunto (9) offre fiori ad Hatshepsut (?) seduta sotto un chiosco, seguono (8) un uomo in offertorio dinanzi a Osiride e (7) una stele con testo autobiografico. Ripartiti su quattro registri sovrapposti (6) alcuni offerenti dinanzi al defunto che (5) a sua volta compie riti di offerta su un braciere.

Un breve corridoio, sulle cui pareti (10) sono riportati testi dedicatori a Thutmosi III, adduce alla camera perpendicolare. Qui, su quattro registri sovrapposti (11), il corteo funebre e il defunto che offre libagioni a Osiride; sulla parete opposta (12) il defunto ispeziona i portatori di offerte e una processione con suonatori di tamburo e di liuto. Un altro corridoio (13) con resti di testi sacri, dà accesso ad una sala pressoché quadrata con soffitto sorretto da due pilastri.

Fonti
- Gardiner e Weigall 1913
- Donadoni 1999, p. 115.
- Gardiner e Weigall 1913, p. 26
- Gardiner e Weigall 1913, pp. 26-27
- Porter e Moss 1927, p. 227.
- Porter e Moss 1927, p. 227-228.
[1] La prima numerazione delle tombe, dalla n.ro 1 alla 253, risale al 1913 con l’edizione del “Topographical Catalogue of the Private Tombs of Thebes” di Alan Gardiner e Arthur Weigall. Le tombe erano numerate in ordine di scoperta e non geografico; ugualmente in ordine cronologico di scoperta sono le tombe dalla 253 in poi.
[2] Nella sua epoca di utilizzo, l’area era nota come “Quella di fronte al suo Signore” (con riferimento alla riva orientale, dove si trovavano le strutture dei Palazzi di residenza dei re e i templi dei principali dei) o, più semplicemente, “Occidente di Tebe”.
[3] le Tombe dei Nobili, benché raggruppate in un’unica area, sono di fatto distribuite su più necropoli distinte.
[4] Le note, sovente di inquadramento topografico della tomba, sono tratte dal “Topographical Catalogue” di Gardiner e Weigall, ed. 1913 e fanno perciò riferimento alla situazione del’epoca.
[5] La numerazione dei locali e delle pareti segue quella di Porter e Moss 1927, pp. 227-228.
[6] Tale inno è almeno in parte esattamente replicato nella tomba TT164.

2 pensieri su “TT110 – TOMBA DI DHOUT”