Di Giuseppe Esposito
Epoca: XVIII Dinastia
Titolare
| Titolare | Titolo | Necropoli[3] | Dinastia/Periodo | Note[4] |
| Amenmose | Scriba reale; Supervisore del bestiame di Amon; Supervisore del magazzino di Amon | Sheikh Abd al-Qurna | XVIII dinastia (inizi del regno di Thutmosi III ?) | alla sommità del versante est della collina; fuori dal muro superiore, sotto le TT65 e TT66 |
Biografia
Unica notizia biografica ricavabile, il nome del padre: Nesu, a sua volta Capo del magazzino di Amon[5]
La tomba
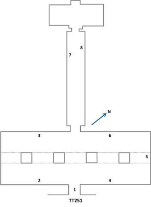
TT251 si sviluppa, planimetricamente, con forma a “T” rovesciata tipica delle sepolture del periodo; un breve corridoio di accesso, sulle cui pareti (1 in planimetria[6]) sono riportati testi dedicatori e sacri, segue una sala trasversale con soffitto sorretto da quattro pilastri.
Sulle pareti, (2) due gruppi di macellai; su due registri sovrapposti (3), resti di scene di banchetto, un uomo in offertorio, una suonatrice di lira e una danzatrice, nonché due suonatrici di nacchere e un suonatore di arpa. Su altra parete (4) un uomo riempie una giara e, sul alto corto (5), i resti di una stele con scene agricole tra cui uomini che zappano e che potano alberi; poco oltre (6) resti di scene non leggibili.
Analogamente non leggibili alcune scene sui pilastri tra cui una di purificazione. Un breve corridoio immette in una sala perpendicolare alla precedente; sulle pareti (7) una scimmia con una cesta piena di datteri sotto la sedia di una donna e, sulla parete opposta (8), una scena incompiuta di uomo con due tavole di offerte dinanzi al defunto e alla moglie (?)[7].
Fonti
- Gardiner e Weigall 1913
- Donadoni 1999, p. 115.
- Gardiner e Weigall 1913, p. 38
- Porter e Moss 1927, p. 336.
- Gardiner e Weigall 1913, pp. 38-39
- Gardiner e Weigall 1913, p. 39
[1] La prima numerazione delle tombe, dalla n.ro 1 alla 253, risale al 1913 con l’edizione del “Topographical Catalogue of the Private Tombs of Thebes” di Alan Gardiner e Arthur Weigall. Le tombe erano numerate in ordine di scoperta e non geografico; ugualmente in ordine cronologico di scoperta sono le tombe dalla 253 in poi.
[2] Nella sua epoca di utilizzo, l’area era nota come “Quella di fronte al suo Signore” (con riferimento alla riva orientale, dove si trovavano le strutture dei Palazzi di residenza dei re e i templi dei principali dei) o, più semplicemente, “Occidente di Tebe”.
[3] le Tombe dei Nobili, benché raggruppate in un’unica area, sono di fatto distribuite su più necropoli distinte.
[4] Le note, sovente di inquadramento topografico della tomba, sono tratte dal “Topographical Catalogue” di Gardiner e Weigall, ed. 1913 e fanno perciò riferimento alla situazione del’epoca.
[5] Porter e Moss 1927, p. 335.
[6] La numerazione dei locali e delle pareti segue quella di Porter e Moss 1927, p. 326.
[7] Porter e Moss 1927, pp. 336-337.

2 pensieri su “TT251 – TOMBA DI AMENMOSE”