Luce tra le ombre, Piramidi

I KHENTIU-SHE

Ne “La funzione di una piramide si è fatto cenno ad una comunità di individui operanti nella città della piramide, cui ci si riferisce con l’appellativo di “Khentiu-She”. Credo sia utile fornire qualche dettaglio in più su questo termine che ha posto non pochi problemi di interpretazione agli egittologi.

Dalle testimonianze scritte e pittoriche dell’Antico Regno conosciamo un gruppo di persone, indicate sotto il nome di khentiu-she (ḫntjw- š), che da un lato erano collegate al palazzo del sovrano in carica e, dall’altro, rientravano nel personale di culto dei templi piramidali reali. Il loro ruolo esatto e il loro significato sono difficili da comprendere, poiché le fonti disponibili non forniscono un quadro coerente. Molto è già stato scritto al riguardo e sono state proposte diverse traduzioni: “impiegato”, “residente della città delle piramidi”, “addetto”, “approvvigionatore”, “guardia”, “affittuario di terre”, “sacerdote khenti-she”, “servitore”.

Negli ultimi venticinque anni, i ritrovamenti di papiri nel tempio piramidale di Neferefra ad Abusir (Immagine n. 1) e gli scavi nella regione della capitale dell’Antico Regno intorno a Memphis e alle necropoli reali ad essa associate, hanno portato alla luce nuovo materiale che mantiene viva la discussione.

Immagine n. 1 I resti della piramide Neferefra ad Abusir (Immagine di pubblico dominio reperita su wikipedia, autore non attribuibile)

Il significato del termine

Per avvicinarsi al significato della denominazione ḫntj- š, si è ricorso innanzitutto ad un’analisi del termine stesso. Sono documentate molte grafie diverse, tra cui quelle con il segno della collina come determinativo (Immagine n. 2), ma senza alcuna differenza semantica riconoscibile.

Immagine n. 2 Una delle svariate grafie del termine ḫnt- š (lettura convenzionale Khenti-she) in geroglifico. Questa presenta, come determinativo il segno delle due colline.

Per quanto riguarda la struttura della parola, c’è un accordo di fondo sul fatto che ḫntj- š sia un termine composto. Esso è costituito dal termine di relazione ḫnt, seguito dal sostantivo š, la cui indipendenza è indicata dal trattino diacritico scritto occasionalmente (Immagine n. 3).

Immagine n. 3 Una diversa grafia del termine. In questo caso è presente il trattino verticale diacritico sotto il rettangolo che rappresenta un bacino, il cui valore fonetico è š (she).

Che non si tratti di una parola quadripartita ḫntŠè ulteriormente dimostrato dalla forma femminile ḫnt(j)t- š (Immagine n. 4) e dalla dettagliata grafia del plurale.

Immagine n. 4 Questa è la grafia del termine al femminile, caratterizzata dalla seconda semisfera (in realtà rappresenta una pagnotta). Il simbolo dell’acqua 👎 e la prima pagnotta (t) fungono da complementi fonetici del simbolo trilittero ḫnt (Khenti) a sinistra (i tre vasi). La seconda pagnotta è la desinenza -t del femminile. La traslitterazione è ḫnt(j)t- š, mentre la lettura convenzionale è Khentit-she.

La preposizione ḫnt significa “più avanti di”, che può avere un significato locale, ma è anche usato nel senso figurato di “numero uno, primo”; quest’ultimo spesso presente in epiteti di divinità*. Entrambi indicano una posizione di rilievo del portatore della denominazione rispetto a š. Tuttavia, le opinioni divergono su cosa implichi questa posizione, su cosa si intenda per š e, di conseguenza, sul modo in cui il portatore della designazione še l’intero termine ḫntj-š possano essere tradotti e interpretati.

š in relazione al significato di “stagno”, “giardino”, “tenuta/proprietà”.

La parola šha un’ampia gamma di significati. Le linee d’acqua all’interno del geroglifico suggeriscono un significato di base di “specchio d’acqua”, che può riferirsi sia a bacini naturali sia a bacini artificiali. Nel decreto di Pepy I, in favore delle due città piramidali di Snofru a Dahshur, gli stagni “š(w)” sono menzionati come base per la tassazione, insieme ai “mr”(canali e pozzi).

Lo scavo di uno stagno e la creazione di un giardino facevano parte della realizzazione della casa di un alto funzionario. Ad esempio, il funzionario Metjen, all’inizio della IV dinastia, riferisce di aver costruito una casa “pr” di 100 cubiti di lunghezza e 100 cubiti di larghezza, nella quale realizzò uno š molto grande e realizzò varie piantumazioni.

Le scene tombali indicano chiaramente che la designazione š poteva essere applicata all’intero giardino che circondava lo stagno. šera usato anche per designare vaste aree con alberi, pascoli per capre, aiuole di verdure, piantagioni di frutta, stagni con piante di loto e papiro e laghetti per uccelli abbastanza grandi da permettere alle barche di navigare. Simbolicamente, un giardino con uno stagno corrispondeva anche a un luogo di sepoltura, che era la dimora dell’esistenza ultraterrena** e avevano un significato che andava oltre la morte del proprietario, in quanto vi si producevano offerte per il suo culto funerario. Poiché le condizioni locali delle necropoli non consentivano di solito la costruzione di giardini tombali anche di piccole dimensioni, i tavoli per le offerte in forma di bacino ne assumevano magicamente la funzione***. Il simbolismo di questi giardini-stagno andava al di là di un significato puramente reale, come il rinfresco, la pulizia, la fonte di frutta e verdura o l’intrattenimento: in senso astratto, essi incarnavano l’idea di fertilità e rigenerazione, che avrebbero magicamente garantito ai defunti.

L’uso del termine šanche per i giardini più estesi e le aree periferiche del deserto può aver portato a uno spostamento di significato. In grafie come quella raffigurata in (Immagine n. 5), che riportano una t sotto la š, la š originale era probabilmente intesa come išt, col significato di tenuta/proprietà.

Immagine n. 5 In questa ulteriore grafia sotto il simbolo š è presente una t. Ciò sembrerebbe suggerire una lettura equivalente a “išt” col significato di tenuta, proprietà, dominio ecc.

Tali grafie potrebbero quindi non essere errori, ma reinterpretazioni del termine tradizionale****. Un documento in cui si può assumere il significato di šcome “tenuta” ed escludere un riferimento a uno specchio d’acqua è l’iscrizione tombale di Washptah, un visir vissuto durante la V dinastia, nella quale viene menzionato un oggetto in pietra calcarea, probabilmente un pezzo di corredo della tomba, ḥr š dt(.ỉ), “nella (mia) tenuta personale” nella città piramidale di Sahure. In definitiva, šaveva un’ampia gamma di significati, da “stagno” (reale e metaforico) a “giardino” (intorno a una piscina), fino a “tenuta”.

Continua…

* Cfr. ad esempio gli epiteti di Anubi ḫntj-Imntjw (primo degli occidentali), e ḫntj sḥ-nṯr (che precede la tenda di Dio). Anche per quanto riguarda i re defunti il termine “nella” della locuzione “nella loro piramide” , ḫntj era occasionalmente usato al posto della preposizione m, come ad esempio nel titolo di Netjeraperef dell’inizio della IV dinastia: ḥm-nṯr Snfrw ḫnt(j) ẖˁ-Snfrw – “sacerdote di Snofru primo della piramide “Snofru splende”. Tali grafie potrebbero quindi non essere errori, ma reinterpretazioni del termine tradizionale. Un documento in cui si può assumere il significato di S come “tenuta” ed escludere un riferimento a uno specchio d’acqua è l’iscrizione tombale di Washptah.

** Nella tomba di Ankhmahor, il š n(j) (pr-)dt “giardino della proprietà personale” è rappresentato quasi come un’istituzione astratta, personificata come un portatore di offerte.

*** Questo è particolarmente evidente in reperti nei cui angoli sono stati intagliati alberi di sicomoro o disegnate barche.

È verosimile interpretare “š” come lavoro realizzato in pietra?

Per š, è stato preso in considerazione anche il significato di “opera in pietra”.

L’iscrizione di Niankhsekhmet è spesso usata come prova di questa interpretazione. Il testo riporta che questo funzionario ricevette dal re due false porte. Sahura le fece completare nel portico di uno dei suoi palazzi e il lavoro fu eseguito in presenza del re stesso. La seguente scrittura, ḫpr šrˁ nb (Immagine n. 6) è stata finora valutata in due diversi modi: come opera (in pietra) o come area su cui sorgeva il palazzo con il portico.

Immagine n. 6: la scrittura in geroglifico della locuzione ḫpr š rˁ nb (lettura convenzionale, “kheper she ra neb”) interpretato erroneamente come lavoro realizzato in pietra.

Tuttavia, non ci sono altre prove per una traduzione di š come “lavorazione della pietra”. Il titolo ỉmj-r(3) š (Immagine n. 7), che compare spesso tra i capi delle spedizioni in cava, è stato apparentemente visto in questo contesto e tradotto come “supervisore del lavoro in cava” o “supervisore della lavorazione della pietra”.

Immagine n. 7: la qualifica ỉmj-r(3) š che compare spesso tra i capi delle spedizioni in cava.

Ma ciò non è convincente perché in questa interpretazione un’attività sarebbe equiparata all’oggetto lavorato (pietra) o al luogo di lavorazione (cava) e di solito, per le attività manuali, la parola utilizzata era “k3t”.

Che š in questo titolo non abbia nulla a che fare con “pietra” o “cava” è dimostrato dalla variante più dettagliata del titolo (immagine n. 8) ỉmj-r(3) š n mšˁ (“sorvegliante della š dell’esercito”), dove š si riferisce probabilmente al “recinto” dell’esercito di spedizione, cioè al suo accampamento, la cui creazione e manutenzione doveva essere organizzata e supervisionata da un membro dello staff esecutivo dell’esercito.

Immagine n. 8: una variante più dettagliata del medesimo titolo ỉmj-r(3) š n mšˁ (imi-ro she en mesha = sorvegliante della “she” dell’esercito)

Come dimostrano gli scavi di Wadi el-Jarf nel Golfo di Suez, questi accampamenti non erano solo luoghi di pernottamento per i partecipanti alle spedizioni, ma comprendevano anche zone per i vari tipi di lavoro artigianale necessari per le forniture e le attrezzature della spedizione, magazzini e luoghi di lavoro per i rispettivi amministratori. Per il termine ỉmj-r(3) š sarebbe quindi appropriata la traduzione “sorvegliante dell’accampamento”, mentre va scartato il significato di “lavoro (in pietra)”, “lavoro di cava”. Per š se ne ricava, quindi, un significato di area in cui le truppe di spedizione potevano accamparsi e venivano rifornite.

š inteso come distretto collegato al re

š si riferiva anche ai terreni su cui sorgevano gli edifici reali. Il capomastro del re Isesi, il visir Senedjemib-Inti, menzionò nella sua iscrizione funeraria la š di un edificio (il segno ḥwt con un disegno interno mal conservato) appartenente al palazzo ḥb-sd di Isesi con una dimensione di circa 525 x 231 m. Tali dimensioni sono paragonabili a quelle del complesso di Djoser. Pertanto, š probabilmente designava, in questo caso, il terreno di costruzione del grande recinto wsḫt in cui insistevano il palazzo cerimoniale e altre strutture di culto per la festa Sed del sovrano. Il re premiava i funzionari meritevoli nel š. I documenti venivano emessi in presenza del re nel š n pr-ˁ3 (she della Grande Casa). Un’ortografia con pr come determinativo (immagine n. 9) fa di š n pr-ˁ3 un’istituzione praticamente immateriale.

Immagine n. 9: š n pr-ˁ3 (she en per aa = la she della grande casa). In questo caso il simbolo per š ha come determinativo il primo rettangolo aperto alla base, in realtà la pianta di una casa, (non si legge, ma serve per chiarire la classe di appartenenza del termine she), al di sotto del quale vi è la preposizione “n” (della) espressa con il simbolo dell’acqua. Seguono gli altri due simboli “pr” e “ˁ3” che identificano la Grande Casa.

Una simile grafia si trova anche in un titolo che, purtroppo, non si è conservato completamente: imj-r(3) iz [///] š pr-ˁ3 ( “sorvegliante della camera di … della she della Grande Casa”. Un titolo che aveva una conformazione simile: ỉmj-r(3) sšrw nswt š pr-ˁ3 (supervisore della biancheria reale della she della Grande Casa), indica che i prodotti di valore, compresi i tessuti, erano conservati nella š  pr-ˁ3.

Poiché esistono poche sequenze di titoli in cui ỉmj-r(3) špr-ˁ3 è collegato a titoli come “supervisore della biancheria reale” e/o “supervisore dei gioielli del re”, il primo è stato tradotto anche come “supervisore della tessitura della Grande Casa”. Non essendoci altre connessioni tra š e la tessitura, il parallelo con il già discusso titolo imj-r(3) š (sorvegliante dell’accampamento) sembra essere più appropriato. Anche un insediamento (para)militare avrebbe senso come elemento della Grande Casa, dal momento che le forze militari erano direttamente assegnate al palazzo. Possiamo immaginare che si trattasse di un complesso permanente di edifici con alloggi per il personale, uffici amministrativi, strutture, magazzini per le attrezzature e per i preziosi proventi delle spedizioni. Il titolo ỉmj-r(3) š pr-ˁ3 può quindi essere inteso come “supervisore dell’accampamento del palazzo”. Poiché esiste anche una forma duale (Immagine n. 10) ỉmj-r(3) šwj pr-ˁ3, per il controllo generale è possibile che ci sia stato più di un accampamento, probabilmente due.

Immagine n. 10: il titolo di “ỉmj-r(3) š pr-ˁ3” è,in questa forma, espresso al duale “ỉmj-r(3) šwj pr-ˁ3” (imi-ro shewy per aa = sorvegliante delle due she della Grande Casa).

Questi titoli di sorvegliante dimostrano che š n pr-ˁ3 era un’area distinta che apparteneva al palazzo ma non necessariamente era identificabile con esso.

La “she della Grande Casa” comprendeva anche strutture di culto. Lo indica una manifestazione particolare del dio del sole: Rˁ-ḥr-š -(n)- pr-ˁ3 (Ra nel recinto del palazzo). La presenza parallela di un Ḥwt-Ḥr-ḥr-n- pr-ˁ3 (Hathor nella she del palazzo) in una voce della pietra di Palermo (Immagine n. 11), che in precedenza è stata ignorata a causa di un’interpretazione errata, depone contro la traduzione di š n pr-ˁ3 come “lago del palazzo”, come ritenuto da Goelet e Bogdanov.

Immagine n. 11: dettaglio della sezione della pietra di Palermo riguardante Neferirkara (ripresa da Wilkinson e ridisegnata dall’ autore) in cui si rileva l’espressione Ḥwt-Ḥr-ḥr-n- pr-ˁ3 (Hathor nella she del palazzo).

Qui la donazione di un altare ciascuno per Ra e Hathor “nella she della Grande Casa” (ḥrš n pr-ˁ3) è riferita Neferirkara. Si potrebbe obiettare che š n pr-ˁ3 non indichi la posizione dei due altari, ma faccia parte del nome delle divinità. Però, gli altari sono scritti tra i nomi delle divinità e il toponimo ḥrš n pr-ˁ3. Dai titoli dei sacerdoti sappiamo che Hathor era venerata, tra le altre divinità, in santuari ed almeno alcuni di essi furono costruiti nella “š n pr-ˁ3”. Il già citato capomastro Senedjemib/Inti riferisce, ad esempio, di aver curato la decorazione della “cappella mrt di Isesi che si trova nel “š n pr-ˁ3” (Immagine n. 12). Una cappella mrt in un “š n pr-ˁ3” è attestata anche per Teti.

Immagine n. 12: l’iscrizione ci informa della cappella “mrt” di Isesi che si trova nel “š n pr-ˁ3”

Poco si conosce in merito a questo tipo di santuario, che è sempre associato al nome di un re. Il loro culto si concentrava principalmente su Hathor, ma anche su suo figlio Ihi e sul sovrano. Da ciò nasce l’ipotesi che i santuari mrt fossero luoghi del matrimonio simbolico del re-Horus con Hathor per aumentare la fertilità non solo della coppia reale ma anche di uomini, animali e campi”.

**** Ciò può valere anche per la definizione di personale ḫntj-š (Khentiw-She)

Fonte: The Khentiu-she di Petra Andràssy(Humboldt-Universität zu Berlin)

Luce tra le ombre, Piramidi

LA FUNZIONE DI UNA PIRAMIDE

Parte prima: evoluzione del complesso funerario

Riprendo, dopo una lunga assenza, la mia rubrica riguardante gli aspetti costruttivi relativi alla costruzione delle piramidi introducendo questo nuovo argomento. Ovviamente, rifuggendo da facili suggestioni sensazionalistiche, mi attengo alla evidenze scientifiche e archeologiche prodotte grazie allo studio e all’incessante “lavoro sul campo” svolto dai più valenti egittologi. Il risultato di queste rigorose ricerche, ci offre una visione, inutile dirlo, sicuramente lontana da fantasie roboanti, ma non per questo meno affascinanti.

Gli annessi cultuali e tutti gli edifici del complesso in cui aveva sede una piramide, subirono molteplici mutamenti prima di giungere ad una forma stabile che soddisfacesse pienamente ai dettami religiosi. Un complesso come quello di Djoser della III dinastia (Immagine n. 1), a dispetto delle sue rivoluzionarie innovazioni tecnologiche, rimaneva ancora fedele alle tradizioni architettoniche tradizionali.

Immagine n. 1: Veduta aerea del complesso di Djoser a Saqqara (©Franck Monnier “L’Univers Fascinant des Piramides d’Égypte” pag. 26)

Esso incorporava la sepoltura in un recinto funerario distante, secondo un uso stabilito ad Abydos durante il periodo arcaico. Lo stesso dicasi per la planimetria che seguiva un orientamento nord-sud, in perfetto accordo con quello di uso antico. Gli ambienti sotterranei erano distribuiti su vaste superfici attraverso una rete interconnessa di gallerie e magazzini, simili a quelli che erano stati scavati nelle vicinanze per Ninetjer Hotepsekhemwy (II dinastia). Un tempio funerario, addossato alla faccia settentrionale della piramide, era destinato al deposito delle offerte quotidiane, mentre gli edifici indispensabili ai riti di rigenerazione del re defunto, in origine costruiti in materiali leggeri, furono progettati per durare per l’eternità. Nonostante la scarsità di resti di complessi eretti sotto i regni successivi a quello di Djoser, sembra che, sostanzialmente, questi nuovi modelli costruttivi non abbiano avuto grandi variazioni durante la III dinastia.

Con il Regno di Snefru (IV dinastia), si assiste ad un radicale rottura con i suoi predecessori: vengono abbandonati gli elementi tipici del periodo arcaico (forma a gradoni, distribuzione sotterranea) e si assegnano alla piramide dimensioni soverchianti rispetto agli edifici satelliti. A partire da questo momento, fanno la loro comparsa gli elementi chiave del complesso funerario reale: il tempio a valle, la via di accesso (o ascensionale), il tempio alto, la piramide sussidiaria e il muro di cinta. Muta anche l’orientamento generale perché ormai il complesso segue il corso del sole secondo l’asse est-ovest. Dal tempio di accoglienza (o della valle) la via d’accesso corre verso occidente in direzione del piccolo tempio alto che, d’ora in avanti, si staglierà contro la facciata occidentale della piramide. In pratica si lasciava il modo dei vivi per penetrare in quello dei morti. Questa disposizione così chiaramente ordinata, dà prova di una grande astrazione. Il tempio superiore era più simile a una cappella e gli edifici utilizzati per le cerimonie giubilari furono abbandonati. La piramide sfoggiava ormai quattro facce piatte e finemente levigate simili a frecce che puntano verso il cielo. Si mantennero gli appartamenti funerari, dal design molto semplice, con un’apertura al piano inferiore verso nord che conduce ad una piccola camera sepolcrale, ma si rinunciò all’ubicazione sotterranea, stabilendola più in alto all’interno della muratura.

A partire dalla Piramide Rossa a Dashur (Immagine n. 2), la camera funeraria fu orientata secondo l’asse est-ovest.

Immagine n. 2: La Piramide rossa di Snefru a Dashur (©Franck Monnier “L’Univers Fascinant des Piramides d’Égypte” pag. 65)

Sotto il regno di Cheope sembra che ci fu un ritorno di fiamma per gli ambienti completamente sotterranei quando si diede avvio alla realizzazione di un ipogeo ad una trentina di metri di profondità. Questo primo progetto fu però abbandonato e l’architetto, alla fine, prese la decisione di elevarlo più in alto che mai. Le sollecitazioni strutturali provocate dalla nuova disposizione fecero momentaneamente temere per la stabilità della camera sepolcrale, per cui le generazioni successive presero la risoluzione di non allestire più ambienti al di sopra del livello del suolo ad eccezione del corridoio che conduce ad essi. L’anticamera in granito con le sue saracinesche, ebbe invece grande successo e fu riprodotta in seguito numerose volte.

Da quel momento in poi si allestiva una camera funeraria orientata secondo il percorso del sole e ricoperta da una volta a capriate, con il sarcofago sempre collocato nella parte occidentale, verso il regno dei morti. L’ accesso che si apriva nella facciata settentrionale permetteva all’anima di raggiungere le stelle circumpolari dell’emisfero boreale (“le stelle che non tramontano mai”): << Che egli possa alfine salire verso il cielo tra le stelle imperiture>> (Testi delle piramidi, Pepi II § 940a).

All’esterno, grandi fosse accoglievano le imbarcazioni regali e le regine scortavano il loro re beneficiando di una propria piramide. La via di accesso divenne una strada monumentale e il tempio funerario fu dotato di una grande corte a pilastri con una cappella per le offerte simile ad un santuario (Immagini n. 3-4). 

Sotto il regno di Chefren gli edifici di culto conobbero uno sviluppo tale da influenzare tutta l’architettura dell’ Antico Regno. Il tempio in Valle e quello Alto erano costruiti attorno a un cortile a pilastri con una serie di stanze e corridoi che permettevano ai sacerdoti rituali di svolgere le loro cerimonie quotidiane e di conservare reliquie e oggetti liturgici. Un centinaio di statue dislocate nel complesso funerario e varie sculture ad immagine del sovrano, ricevevano il culto allo stesso modo di quelle raffigurate sedute e alloggiate nelle cinque cappelle situate nella parte più interna del tempio Alto. Vi si riconoscono per la prima volta quegli elementi tipici della suddivisione del tempio classico posto in opera durante la V, VI e XII dinastia.

Immagine n. 4: Schema della disposizione classica di un complesso piramidale (©Franck Monnier “L’Univers Fascinant des Piramides d’Égypte” pag. 241)

Parte seconda: cosa rappresenta una piramide?

Il significato e le motivazioni che indussero gli antichi egizi a utilizzare la forma piramidale è ancor oggi oggetto di continuo ed acceso dibattito .

Spesso, nel tentativo di rintracciarne le origini più remote, si fa riferimento alla sepoltura, risalente alla I dinastia, appartenente ad un dignitario di nome Nebetka, scavata nel 1937 a Saqqara e catalogata come mastaba S3038* (Immagine n. 1).

Immagine n. 1 La mastaba di Nebetka : si tratta di una tomba a mastaba unica ubicata a Saqqara Nord e risalente al regno del re Adjib. Il suo nucleo era costituito da un tumulo di mattoni di fango a gradoni. Si è supposto che il progetto si sia sviluppato fino alla piramide a gradoni circa 200 anni dopo, ma non ci sono altre prove che confermino chiaramente questa teoria. (Immagine reperita in rete © https://www.nemo.nu/…/2egypt/2bildsidor/2anedjib.htm)

All’interno di questa tomba era stata costruita una struttura a sei ordini su tre lati, rimasta completamente invisibile prima degli scavi perché volutamente sepolta nella parte più interna da macerie e calcinacci. L’edificio è oltremodo interessante in quanto fu eretto durante il regno di Adjib (o Anedjib), un sovrano il cui nome è spesso associato a quello di una tenuta reale rappresentata da una struttura a gradoni “il dominio Sa-ha”(Immagine n. 2).

Immagine n. 2 Sigillo della residenza di Sa-Ha su un vaso risalente al regno di Adjib, Museo del Louvre. (©Franck Monnier “L’Univers Fascinant des Piramides d’Égypte” pag. 242).

L’idea che questo monumento potesse essere considerato alla stregua di un modello primitivo della Piramide a gradoni di Djoser era affascinante e molti ricercatori non esitarono a condividerla. Tuttavia, oltre alla mancanza di una chiara documentazione, l’unicità dell’opera e il lungo intervallo temporale che la separa dalla III Dinastia non depongono a favore di questa ipotesi. È difficile, infatti, presumere che un edificio così anteriore fosse stato preso a modello per la piramide a gradoni essendo, quest’ultima, il risultato di una serie di sperimentazioni e tentativi. La prima tappa della sepoltura di Djoser, in realtà fu una mastaba a pianta quadrata e con pareti lisce, che di per sè già si distingueva dalle convenzionali tombe rettangolari con facciate a rientranze. C’era forse, come sostengono alcuni studiosi, l’intento di rappresentare la collina primigenia che, nella tradizione religiosa egizia, emerge dal Nun (l’oceano primordiale) agli inizi del mondo?

Le piramidi, sia quelle a gradoni, sia quelle a facce lisce, erano indistintamente designate con il termine “meher” (più spesso letto come “mer”); tuttavia il “piramidyon” che, a partire dalla IV dinastia andò a costituire la cuspide di questi monumenti, era indicato con la variante femminile del termine “benben”: ossia “benbenet”. Si trattava quindi di un chiaro riferimento al tumulo primordiale della mitologia egizia su cui troneggiava il benben: una pietra eretta, la cui immagine scolpita era conservata a Eliopoli, centro del culto solare. Da quel momento in poi, le interpretazioni divergono ed oscillano tra questa associazione con la collina che sorge dall’oceano originario, concettualizzando la rinascita del re, e l’associazione con un simbolo solare, le cui facce sfolgoranti incarnano i raggi che il sovrano doveva risalire per regnare al fianco di Ra. Questa idea di ascensione si espresse anche nella disposizione degli appartamenti funerari che, inizialmente sotterranei durante la III dinastia, furono dislocati al di sopra del livello del suolo a partire dal regno di Snefru.

Probabilmente, i gradoni delle prime piramidi rappresentavano i pioli della gigantesca scala, eretta dagli déi per il sovrano defunto, che viene evocata numerose volte nei “Testi delle piramidi”:

Alcuni egittologi, tra i quali Philippe Lauer, collegano l’emergere della forma piramidale alla dottrina solare della religiosità egizia, il cui primo rappresentante, il sommo sacerdote di Eliopoli, Imhotep, architetto della prima piramide, potrebbe aver contribuito ad accrescerne l’influenza. A sostegno di questa ipotesi si pone in evidenza che all’epoca della III dinastia si era passati da una concezione ctonia che limitava la sopravvivenza del sovrano agli inferi a una dottrina eliopolitana che mirava a elevarlo al regno celeste.

Con il progredire della tecnologia, la forma piramidale è stata in grado di assumere una pluralità di significati diversi, ma non esclusivi, e le sue implicazioni religiose furono rappresentate con diverse sfumature. Quando la piramide cominciò ad essere eretta con le pareti lisce, la struttura a gradoni rimase ancora presente nella sua massa interna; all’esterno, invece, la pietra calcarea bianca e finemente levigata di Tura, utilizzata per rivestire le facciate inclinate verso il cielo, realizzava una combinazione perfetta per massimizzare il riflesso dei raggi solari (Immagine n. 3).

Immagine n. 3 Raggi di sole al tramonto sul plateau di Saqqara (©Franck Monnier “L’Univers Fascinant des Piramides d’Égypte” pag. 243).

L’ascesa della religione solare non è probabilmente estranea all’onnipotenza acquisita (o rivendicata) dal sovrano ed è evidenziata dalla monumentalità schiacciante della sua tomba rispetto a quelle dei suoi parenti e funzionari. Monopolizzando le risorse umane e materiali dello Stato, il re vi riversò ogni energia, affermando la supremazia su tutti i suoi sudditi e confermando il suo status divino, sia per la natura incomparabile della sua opera, sia per le azioni compiute per portarla a termine. In questa missione, egli dimostrava di essere simile a Ra il sovrano assoluto del suo regno. L’ imponenza e la durata dell’opera avrebbero ricordato continuamente ai sudditi la dimensione eccezionale del loro leader e dei loro rappresentanti spirituali e, di conseguenza, il loro stesso valore inteso come risultato del legame che li univa (Immagine n. 4).

Immagine n. 4 Ricostruzione di un complesso piramidale classico (©Franck Monnier “L’Univers Fascinant des Piramides d’Égypte” pag. 244).

*Nel 1937 Walter Bryan Emery scavò la tomba S3038 a Saqqara e scoprì alcune sorprendenti nuove caratteristiche costruttive al suo interno. La tomba aveva un nucleo a gradini sopra la camera funeraria, che era stata costruita con due piattaforme successive, accessibili dall’esterno. La costruzione mostrava una successione di fasi, definite come cambiamenti nel design. La forma del nucleo fece pensare a Emery che questa tomba fosse un precursore delle successive piramidi a gradini. Questa ipotesi non trovò molto supporto. Una rivalutazione da una prospettiva costruttiva di tutti i dati disponibili, comprese le note di campo inedite dello scavatore, porta a conclusioni diverse. Ogni fase successiva è stata costruita appositamente per svolgere un ruolo nelle pratiche funerarie. In altre parole, gli elementi costruttivi facevano parte di un design singolare e preconcetto. Sulla base della premessa delle pratiche riflesse nella costruzione di questa tomba unica, è anche possibile riflettere sul design di altre tombe della Prima Dinastia a Saqqara.

** Traduzione originale (in francese) di Bernard Matthieu

Parte terza: il contesto religioso

Si conoscono abbastanza bene le pratiche funerarie ed il loro contesto religioso sotto le dinastie V e VI; molto meno noto è ciò che riguarda i periodi precedenti. La mitologia associata alla sopravvivenza nel aldilà sotto la III dinastia ci appare, ad esempio, molto vaga. Le scene rappresentate nella piramide a gradoni di Djoser e i simulacri presenti nel suo complesso ci rivelano molto poco sulla percezione della vita ultramondana. I pannelli scolpiti che si trovano negli ambienti sotterranei alludono semplicemente alle visite fatte dal sovrano presso i santuari dell’ Alto e del Basso Egitto. Unico ad essere rappresentato, il re si mostra nell’aldilà simile a un dio che regna sul suo universo perpetuando all’infinito la sua rinascita e le cerimonie del giubileo (Immagine n. 1) inquadrati in un ambiente che gli era familiare.

Immagine n. 1 Feste giubilari rappresentate sui muri del tempio solare di Abu Gurab (©Franck Monnier “L’Univers Fascinant des Piramides d’Égypte” pag.244).

Verso la fine della V dinastia la comparsa dei Testi delle piramidi, lascia intuire una concezione ben più complessa e articolata. Questi ultimi, si presentano come una raccolta di formule e riti arcaici, le cui origini sono più antiche di qualche secolo, e dei quali operano una sintesi introducendo il nuovo mito osiriaco. Il ciclo di Osiride (Immagine n. 2), esteso a tutti gli individui, in ogni paese e senza distinzione di rango tra la IV e V dinastia, contribuì ad accomunare le varie concezioni religiose.

Immagine n. 2 Osiride dio della rinascita con significato rappresentativo ambivalente sia di mummia, si di sovrano dell’aldilà, è rappresentato in questa statua proveniente dal tempio funerario di Ramses III a Medinet Habu. Museo del Cairo (© I Tesori delle Piramidi, a cura di Zahi Hawass, pag.24).

Gli immensi cantieri approntati per erigere le piramidi più grandi accoglievano un’enorme quantità di persone proveniente dai luoghi più remoti del regno dando vita, per la prima volta nella storia dell’Egitto, ad un sentimento nazionale, piuttosto che regionale e originando, nello stesso tempo, un’intensa riflessione sull’estrema diversità delle dottrine che vi confluivano.

Secondo l’egittologo Bernard Mathieu, il mito di Osiride fu l’esito di una riforma politico-religiosa che ebbe corso tra la fine della IV e l’inizio della V dinastia. Realizzata secondo le disposizioni del clero di Heliopolis, non è da escludere che fu elaborata per rispondere all’interruzione dei grandi progetti edilizi della IV dinastia e anche per consolidare definitivamente il tessuto sociale. I testi e le iscrizioni dell’Antico Regno rivelano che i sovrani si ritrovarono simbolicamente a non essere più i detentori di Ma’at – il concetto di equilibrio e giustizia – che diventava proprietà esclusiva di Osiride. Il re ne restava il garante ma, come qualunque altro dei suoi sudditi, doveva agire in perfetto accordo con Ma’at. Pertanto, l’idea di giustizia e ordine sociale, smetteva di essere una sua prerogativa, per afferire alla sfera del divino. In questo modo essa divenne incontestabile, tanto più che il giorno della morte ogni individuo doveva renderne conto e comparire davanti al tribunale degli déi.

La rivalità tra Seth e suo fratello Horus, faceva chiaramente allusione alla figura di un usurpatore nei confronti della legittima eredità al trono. Dall’esito del loro scontro dipendeva il destino dell’Egitto dal momento che lo stravolgimento dell’ordine precostituito avrebbe inevitabilmente portato al caos (isefet). Di conseguenza, il rispetto della trasmissione del potere, assunse un ruolo centrale:

Al di là della parabola, il mito di Osiride determinava una serie di atteggiamenti da adottare affinché il defunto potesse accedere al paradiso. La sua vita nell’aldilà dipendeva dal buon funzionamento del culto e dal deposito delle offerte, pertanto il proprietario della tomba si impegnava durante la sua vita a realizzare tutto il necessario per la sua esistenza ultraterrena. Quest’ultima, però, non dipendeva unicamente da lui e dai preparativi nei quali si era impegnato; la lealtà e la devozione di Horus nei confronti del padre sottintendevano l’importanza e il ruolo che i discendenti dovevano attribuire alle cerimonie di ossequio e di offerta ai loro antenati (Immagini n. 3-4). In sostanza, il mito contribuiva a tenere unita la società attraverso un comportamento corretto nei confronti degli altri, sia dei vivi e che dei defunti.

Immagine n. 3 Rappresentazione di offerte sulla stele di Abkau (XI dinastia). Museo del Louvre. (©Franck Monnier “L’Univers Fascinant des Piramides d’Égypte” pag. 246).
Immagine n. 4 La stessa stele nella sua interezza (© Di Rama – Opera propria, https://commons.wikimedia.org/w/index.php?curid=394403)

Il proprietario di una sepoltura, avendone la possibilità, faceva incidere sulle pareti della sua tomba o della sua cappella dei testi che rivelassero l’irreprensibilità della sua esistenza e quanto le sue azioni fossero state degne di elogio. Lo stesso sovrano si premurava di descrivere sulle pareti della strada rialzata e del tempio le imprese che documentavano di essere stato all’altezza delle sue responsabilità sulla terra, sicché importanti episodi militari, commerciali o religiosi venivano riportati in una serie di grandi affreschi. Questa propaganda personale aveva lo scopo di ricordare ai viventi l’onorabilità o l’eccezionale levatura del defunto. In definitiva, era necessario non solo illustrare una vita degna che sarebbe stata giudicata da Osiride, ma anche suscitare interesse nel perpetuare il culto. Infatti, tra le iscrizioni ritroviamo, tra le altre, esortazioni a non dimenticare le cerimonie abituali:

* Traduzione originale (in francese) di Bernard Matthieu

Si ritiene che i “Testi delle Piramidi” siano i più antichi testi religiosi esistenti al mondo ed Unas fu il primo sovrano a farli incidere e dipingere nei suoi appartamenti funerari (Immagine n. 1).

Immagine n. 1 Pareti della piramide di Unas ricoperte da “Testi delle Piramidi” (©Franck Monnier “L’Univers Fascinant des Piramides d’Égypte” pag. 247).

Sono ben undici le piramidi (di re e regine), ad oggi conosciute, in cui sono presenti; tutte sono ubicate presso Saqqara e databili alla fine dell’Antico regno (Immagine n. 2), ma la recente scoperta di un piccolo frammento di questi Testi, incisi nella piccola piramide di Hatshepset a Dashur dimostra che, sia pure in minor misura, fossero utilizzati anche durante il Medio Regno.

Immagine n. 2 Appartamenti funerari della piramide di Pepi I (©Franck Monnier “L’Univers Fascinant des Piramides d’Égypte” pag. 248).

La complessità e la mole dei Testi delle Piramidi dimostrano che la loro comparsa non fu affatto improvvisa, ma al contrario, la loro elaborazione ed evoluzione dovette interessare un arco temporale di diversi secoli. La composizione rivela, in effetti, diversi stadi di mutazione della lingua, dalle espressioni più arcaiche a quelle più contemporanee alla V e VI dinastia. Alcune pratiche superate ed allusioni a culti primitivi, rafforzano questa impressione di antichità. I Testi erano indicati nell’antico egizio come <<I rotoli del dio>> e, di fatto, esisteva già uno <<scriba dei rotoli del dio>> durante la II dinastia citato, tra l’altro, negli stessi “Testi delle piramidi”.

Le formule erano di solito introdotte dall’espressione “Pronunciare le parole” il che lascia pensare che erano destinate ad essere lette ad alta voce – almeno fin quando non furono scolpite nella pietra – e tutta la litania di preghiere e rituali doveva essere celebrata il giorno dei funerali. É altresì probabile che, all’epoca dei predecessori di Unas, una versione vergata su rotoli di papiro venisse depositata nella camera funeraria. Disporre delle formule in forma scritta assicurava magicamente al sovrano di beneficiare delle azioni liturgiche e di disporre delle offerte nel caso in cui i suoi successori e i sacerdoti non avessero ottemperato ai loro compiti. In questo modo, qualunque fosse stata la situazione politica o le contingenze del suo culto funerario, il defunto poteva sperare di perpetuare la sua rinascita ciclica e dimorare a fianco degli déi.

L’aspetto ermetico è la caratteristica di tutti i rituali e la loro complessità è la garanzia della loro efficacia: è quindi naturale che i profani non trovino né coerenza, né logica nella maggior parte di questa raccolta, che sembra solo una successione infinita di protocolli misteriosi e formule di offerta. C’è voluto, infatti, oltre un secolo di ricerca e la sagacia di più di un egittologo per giungere ad una comprensione globale dei “Testi”e riuscire a metterne in luce la struttura e il significato sia da un punto di vista religioso, che dal punto di vista politico.

“Testi delle piramidi” presentano una molteplicità di composizioni intimamente correlate, e spesso ridondanti, che include testi funerari, testi liturgici e formule di evocazione, disposte lungo le pareti degli ambienti funerari secondo un tipico percorso di lettura (Immagine n. 3).

Immagine n. 3 Distribuzione schematica degli appartamenti funerari in una piramide della VI dinastia. Le frecce evidenziano il percorso di lettura dei “Testi delle Piramidi” (©Franck Monnier “L’Univers Fascinant des Piramides d’Égypte” pag. 248).

Invocazioni, offerte e rituali vanno a costituire un articolato assieme di condotte da rispettare affinché il defunto possa realizzare la sua trasformazione in spirito akh. Resuscitato tra gli déi come akh, il sovrano poteva allora regnare a fianco delle “Imperiture”, le stelle circumpolari che “non tramontano mai” (Immagine n. 4).

Immagine n. 4 Volta a capriate della piramide di Unas, decorata con un motivo che raffigura un cielo stellato. I due versanti potrebbero simboleggiare i due battenti che si spalancano verso il cielo, tante volte menzionati nei Testi delle Piramidi (©Franck Monnier “L’Univers Fascinant des Piramides d’Égypte” pag. 249).

Dal punto di vista strettamente religioso, i Testi delle Piramidi combinano il nuovo ciclo di Osiride, che conduce il sovrano all’immortalità, con il tradizionale ciclo solare che organizza il percorso del re divinizzato nell’aldilà: egli accede al cielo come Osiride ed a fianco di Ra affronta e sconfigge le forze della notte per risorgere ogni giorno all’orizzonte (Immagine n. 1).

Immagine n. 1 Gli archeologi della Missione Archeologica Francese, diretta da Jean Leclant, al lavoro sui Testi all’interno della piramide di Pepi I a Saqqara (© Alberto Siliotti. Egitto Templi uomini e déi pag.108).

La morte dunque, non è una fine:

Altre formule magiche, dette “formule d’esecrazione”, avevano lo scopo di dissuadere i profanatori, i malvagi, così come i calunniatori le cui parole non potevano che essere nefaste per la memoria del defunto:

Progressivamente, dalla fine dell’ Antico Regno fino a giungere al Medio Regno, i Testi delle Piramidi si evolsero nei Testi dei Sarcofagi (Immagine n. 2).

Immagine n. 2 Testi dei Sarcofagi dipinti nel sarcofago di Sepi, Medio Regno. Museo del Louvre E10779b (© Musée du Louvre, Dist. RMN – Grand Palais/Georges Poncet)

Questi ultimi venivano scritti ed illustrati sulle pareti del feretro, solitamente ligneo, mentre si ritornò, per quanto riguarda le piramidi, all’uso di lasciare gli appartamenti funerari completamente privi di iscrizioni. Solo i “pyramidion” riportavano ancora delle formule che indicavano la natura funeraria del monumento (Immagine n. 3):

Immagine n. 3 Pyramidion di Amenemhat III scoperto a Dashur. Museo del Cairo (©Franck Monnier “L’Univers Fascinant des Piramides d’Égypte” pag. 250).

* Traduzioni originali (in francese) di Bernard Mathieu

Parte quarta: il funzionamento del culto funerario

Alla morte del re si metteva in moto un complesso rituale funerario. Il corpo del defunto, veniva prima di tutto purificato e poi trasportato su un’imbarcazione dalla riva orientale a quella occidentale (il luogo dove era la necropoli): simbolicamente lasciava il mondo dei vivi per raggiungere quello dei morti (Immagine n. 1).

Immagine n. 1 Il defunto raggiunge la riva occidentale a bordo della sua barca funeraria. (Senusert, XIII dinastia: museo del Louvre, A48. © Franck Monnier “L’Univers Fascinant des Piramides d’Égypte” pag. 250)

In una costruzione provvisoria, chiamata “tenda di purificazione” situata nelle vicinanze del tempio in valle, si preparava la salma per affrontare il processo di mummificazione. Ignoriamo quali fossero precisamente le tecniche di imbalsamazione durante l’ Antico Regno in considerazione del fatto che queste furono oggetto di continuo perfezionamento. La tradizione, molto più tardiva, descrive un processo che si protraeva per settanta giorni durante i quali la spoglia subiva una serie di trattamenti finalizzati ad assicurarne uno stato di preservazione tale che potesse accogliere il suo ba per l’eternità. In effetti, la sopravvivenza perpetua dello spirito del defunto era considerata per buona parte dipendente dallo stato di conservazione ottimale del suo corpo. Si procedeva dunque a rimuovere dal cadavere tutto ciò che fosse deperibile o che potesse corromperlo. Un ricchissimo complesso di formule e recitazioni liturgiche, accompagnava la procedura di mummificazione che, nel suo insieme, era sia un rituale, sia una tecnica in senso stretto. Attraverso l’imbalsamazione, così come era stato per Osiride, al defunto veniva concesso di recuperare ogni suo organo e di ripristinarne funzioni e vitalità.

Attraverso il naso, grazie all’utilizzo di strumenti specifici, si estraeva il cervello, dopodiché con un’ incisione sul fianco si proseguiva con l’asportazione degli organi interni. Il cuore, dopo essere stato accuratamente fasciato, veniva rimesso al suo posto, mentre le altre parti (fegato, polmoni, stomaco e intestini) pulite, purificate e avvolte in bende, erano deposte in quattro vasi canopi (Immagine n. 2).

Il sacerdote incaricato della mummificazione è raffigurato sotto le sembianze del dio Anubi. I visceri sono adagiati nei quattro vasi canopi rappresentati sotto la salma. (© da Ippolito Rosellini, 1834).

Il corpo subiva un procedimento per disidratarlo e poi trattato per essere ammorbidito, unto, riempito e abbellito con vari prodotti al fine di ripristinarne la forma e l’aspetto umano. Infine, una sapiente e complessa fasciatura con bende di finissimo lino dava una forma definitiva alla figura. Vestita e adornata la mummia era, a questo punto, pronta per le esequie. Il corteo funebre entrava con il sarcofago nel tempio di accoglienza, poi proseguiva per la lunga strada rialzata dirigendosi verso la piramide, il luogo di sepoltura dove il sovrano avrebbe dimorato per l’eternità.

Gli enigmatici riti di apertura della bocca, degli occhi e delle orecchie, come attestato da documenti del Nuovo Regno, avevano luogo probabilmente all’ingresso della tomba (Immagine n. 3).

Immagine n. 3 Libro dei morti di Nebqed (Nuovo Regno). Il trasporto del defunto ed il rituale dell’apertura della bocca sono rappresentati nel registro superiore, mentre scendendo sulla destra si riconosce Il ba di Nebqed che torna alla tomba di notte e qui viene mostrato mentre scende nel pozzo della camera sepolcrale per ricongiungersi con la sua mummia. Una sedia vuota in un’illustrazione nella tomba di Nebqed indica che egli era partito per il giorno sotto forma del suo ba. (© Museo del Louvre, n. 3068 Dist.RMN-Grand Palais/George Poncet).

Anche in questo caso si trattava di un complesso rituale guidato da un sacerdote-lettore e da un sacerdote-sem, durante il quale la mummia veniva sollevata dalla bara e, accompagnati da recitazioni si eseguivano precisi gesti finalizzati a ridare magicamente vita al corpo. Infine, libagioni, offerte, ma soprattutto l’abbattimento di un bovino assicuravano il successo del rituale. Inoltre, secondo alcuni passaggi dei Testi delle Piramidi, anche il momento finale dell’inumazione era accompagnato da formule e offerte.

La documentazione pervenuta ci dice che il successo della rinascita ciclica ed immateriale del re era assoggettata a diverse condizioni, tra cui la necessità che il culto e le offerte fossero portate a compimento quotidianamente e che il corpo del sovrano avesse la capacità di resistere allo scorrere del tempo senza subire alcun degrado. Infine, la celebrazione perpetua del suo nome partecipava attivamente a rendere immortale la sua esistenza.

La concezione egizia prometteva, dunque, una vita eterna nell’aldilà (Immagine n. 1) che, paradossalmente, rischiava in qualunque momento di interrompersi in quanto strettamente legata sia alla devozione dei sacerdoti sia a quella dei figli nei confronti del genitore defunto.

Immagine n. 1 Rito dell’apertura della bocca eseguito sul defunto Hunefer, XIX dinastia, British Museum EA9901 (© The British Museum, London. Dist. RMN-Grand Palais/The Trustes of the British Museum)

In definitiva, l’immortalità del re si basava sulla legittimità dei successori e sulla fedeltà dei funzionari nei suoi confronti. Era quindi di estrema importanza non inimicarsi alcuno di loro, anche se ciò imponeva di rafforzare continuamente i legami prima della “grande partenza”, soprattutto con i secondi, il cui status e le cui prerogative erano tutt’altro che ereditarie. Appare ovvio che un tale contesto di incertezza non poteva che generare un permanente senso di angoscia in chi fosse impegnato a preparare la sua vita oltremondana. Ciò chiarisce perché, sotto la V e la VI dinastia, fosse nell’interesse del sovrano concedere esenzioni fiscali alle città piramidali, che erano i luoghi di residenza dei sacerdoti legati ai culti funerari reali.

La comunità coinvolta nel servizio clericale era riuscita nel corso dei secoli a sviluppare, e a rendere indispensabile, un complesso insieme di rituali e di offerte generose che, attraverso un rapporto di causa ed effetto, erano in grado di garantire la continuità delle loro attività e dei benefici che ne derivavano. Viene da chiedersi se la comparsa dei Testi (Immagine n. 2) nelle piramidi riflettesse la preoccupazione del sovrano per questa dipendenza, oppure, fosse un modo per evitarla, senza nulla togliere al personale coinvolto.

Immagine n. 2 Piramide di Teti, parete incise con I “Testi delle piramidi” (© Franck Monnier “L’Univers Fascinant des Piramides d’Égypte” pag. 252)

A dispetto delle apparenze, un complesso funerario piramidale costituiva molto più di una sepoltura e di uno strumento per assicurare al re la sua vita eterna. Grazie agli archivi di Neferirkare, rinvenuti presso Abusir, sappiamo che esso rappresentava l’elemento centrale di una rete economica che coinvolgeva un gran numero di persone. Durante la sua vita, il re stabiliva dei domini per l’agricoltura e l’allevamento del bestiame al fine di fornire le offerte per il culto che gli sarebbero state devolute dopo sua morte; vi si coltivavano cereali e raccoglievano frutti, vi si allevavano bovini e volatili. Tutto quanto si produceva transitava successivamente per la residenza ed immagazzinato da una sorta di dipartimento del Tesoro. La vigilanza ed il rigore degli scribi di questa amministrazione erano di grado così elevato da permettere una contabilità ed una redistribuzione infallibile dei prodotti. Di volta in volta questi ultimi venivano caricati su un’imbarcazione e inviati, attraverso la rete di canali, presso la necropoli dove, all’altezza del tempio di accoglienza, era presente un molo di attracco. Il trattamento, la trasformazione e la preparazione degli alimenti aveva luogo per lo più nelle vicinanze dell’edificio e solo in piccola parte al suo interno. Dopodiché venivano poste sotto attenta sorveglianza in attesa di essere offerte al re defunto durante i riti giornalieri e delle grandi festività, al termine dei quali le offerte venivano acquisite e spartite tra i membri del personale a guisa di salario. Un papiro del Medio Regno, scoperto a Kahun, la città del Fayum dove sorge la piramide di El-Lahun eretta da Sesostri II (Immagini n. 3-4), descrive le parti di offerte distribuite mensilmente agli addetti in funzione del loro grado e della loro posizione:

Servitori del dio: 10 parti

Prete lettore capo: 6 parti

Prete lettore: 4 parti

Responsabile delle philai: 3 parti

Tre preposti alle libagioni: 2 parti ciascuno

Due sacerdoti-puri addetti al culto delle statue: 2 parti ciascuno

Scriba mensile del tempio: 1 parte e 1/3.

Immagine n. 3 La piramide di Sesostri II a El-Lahun © Franck Monnier “L’Univers Fascinant des Piramides d’Égypte” pag. 171)
Immagine n. 4 Camera funeraria di Sesostris II a El-Laun (© ph. Markus Wallas in “L’Univers Fascinant des Piramides d’Égypte” di Franck Monnier pag. 172)

Durante l’ Antico ed il Medio Regno la classe sacerdotale era relativamente ristretta. Le posizioni del personale funerario erano in gran parte occupate a tempo parziale da funzionari e dignitari le cui attività principali erano ben diverse. Solo qualche sacerdote era impiegato a tempo pieno al fine di sorvegliare sul corretto svolgimento dei servizi.

Nell’ Antico Regno, il personale era suddiviso in cinque philai (gruppi) di due divisioni. Ogni divisione contava una decina di persone che lavoravano per trenta giorni su un ciclo di dieci mesi, dopodiché ritornavano alle loro occupazioni principali. La traduttrice degli archivi funerari di Neferirkare, Paule Posener-Kriéger, ha stimato in 250-300 unità il numero effettivo totale per anno e solo venti persone che lavoravano simultaneamente. Tutto ciò riguarda, beninteso, il solo personale del tempio funerario. A questo, per avere un quadro completo del personale umano impegnato, bisogna aggiungere quello della città della piramide, quello dei possedimenti agricoli ed il corpo dei funzionari che gestivano l’istituzione dalla A alla Z, per un totale che superava facilmente il centinaio di individui impiegati stabilmente. Se poi consideriamo i complessi funerari dei predecessori operanti nello stesso periodo, a partire da Djoser, a cui si aggiungono i templi solari della V dinastia, ci troveremmo di fronte a un vero e proprio esercito dedicato unicamente al culto dei morti.

Il tempio aveva un’organizzazione molto precisa e rigorosa. Al vertice vi erano i “servi del dio” , assistiti dai sacerdoti “uab” (ossia, puri) che maneggiavano gli oggetti di culto, ma non erano autorizzati alla distribuzione delle offerte. Seguivano i “sacerdoti lettori” che, da perfetti conoscitori dei riti e delle pratiche, avevano il compito di recitare le formule. Infine, l’accesso da e verso il tempio era regolato e autorizzato giorno e notte da “guardie” che si alternavano in turni per espletare il loro servizio.

La comunità della “città della piramide” era per lo più costituita da individui che, grazie alla documentazione pervenutaci, conosciamo sotto il nome di “Khentiu-She”. I loro compiti potevano essere i più disparati, ma sempre intimamente correlati al buon funzionamento del dominio funerario. Alcuni di loro assistevano i servi del dio”, in quanto preposti alle offerte e al trasporto delle effigi.

Le tabelle dei servizi e gli inventari registrati sui papiri scoperti ad Abusir ci permettono di ricostruire a grandi linee il susseguirsi delle operazioni quotidiane del tempio (Immagine n. 1) .

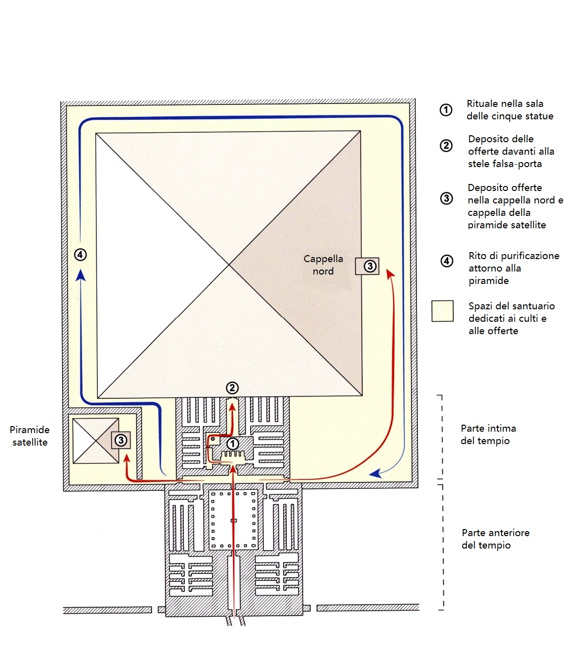
Ogni mattino, le cure erano incentrate sulle cinque statue reali collocate nella parte più intima del tempio; per ciascuna di esse si provvedeva a rimuovere il sigillo, slegare le corde, tirare il chiavistello e finalmente aprire i due battenti della nicchia che la conteneva. A questo punto, in un tripudio di formule recitate a voce alta, si procedeva ad offrire una stoffa alla statua e ad ungerla con oli profumati (merehet). Una volta compiuto il rito si ripristinava il tutto con la chiusura e sigillatura della doppia porta.

Mattino e sera, si accedeva alla sala delle offerte recando delle piccole tavole per adagiarvi le oblazioni. Queste, collocate di fronte alla stele falsa-porta, che collegava magicamente questo ambiente alla tomba, permettevano al ka del defunto di nutrirsi del cibo che gli era stato presentato. Tutto il cerimoniale era accompagnato da preghiere e gesti rituali rigorosamente codificati. Successivamente due servitori provvedevano a sgombrare le suppellettili, mentre un altro riponeva il rotolo di papiro in un’apposita cassetta. Si procedeva quindi al rito finale di purificazione, seguito da quello di saluto utilizzando quattro brocche riempite d’acqua mista a natron. Si eliminava l’acqua presente e non più pura attraverso il sistema di drenaggio, dopo di che si procedeva a versare quella contenuta nei quattro vasi intorno alla piramide. Infine, le offerte venivano messe a disposizione del ka del sovrano nella cappella adiacente alla parete nord della piramide (Immagine n. 2).

Immagine n. 2 Itinerari dei riti quotidiani svolti in un complesso piramidale durante la V e VI dinastia(© Franck Monnier “L’Univers Fascinant des Piramides d’Égypte” pag. 257)

Ricorrenze mensili ed annuali, tra le quali rivestivano particolare importanza la festività lunare, quella di Sokar, di Hathor, degli emblemi divini o, ancora, quella di Min, rompevano la routine quotidiana. Ciascuna, infatti, aveva un suo protocollo specifico e necessitava di una notevole quantità di oggetti di lusso che erano custoditi nei magazzini del tempio.

Fonti:

  • Franck Monnier “L’Univers Fascinant des Piramides d’Égypte”
  • Marinus Ormeling, Leiden University, in Mastaba S3038 at Saqqara: a new perspective on old data

Luce tra le ombre, Piramidi

IL SITO DI HEIT EL-GHURAB

Di Ivo Prezioso

Il sito di Heit el-Ghurab rivela un nuovo volto, la città portuale perduta delle piramidi.

Durante la stagione 2013 Mark Lehner (Immagine n. 1) e i membri del team AERA si sono presi una pausa dagli scavi sul campo per una sessione di studio. E’ stata l’occasione per riconsiderare la massa di dati provenienti dal sito della Città Perduta delle Piramidi, nota come Heit el-Ghurab (vedi “Il quartiere degli operai” https://laciviltaegizia.org/…/lorganizzazione-dei…/), nel contesto più ampio dell’Egitto dell’Antico Regno e del suo III millennio a.C. (Immagine n. 2).

Immagine n. 1 Mark Lehner è Direttore e Presidente di Ancient Egypt Research Associates, Inc. (AERA). Ha svolto ricerche archeologiche in Egitto per quasi quarant’anni. Ha mappato la Grande Sfinge e ha scoperto una parte importante della “Città perduta delle piramidi” a Giza. Lehner dirige il Giza Plateau Mapping Project (GPMP), che conduce scavi annuali presso gli insediamenti dell’Antico Regno vicino alla Sfinge e alle piramidi con un team interdisciplinare e internazionale di archeologi, geocronologi, botanici e specialisti faunistici. (© Ph. prelevata dal sito https://archaeology.columbian.gwu.edu/mark-lehner)

Immagine n. 2 Ricostruzione 3D dell’altopiano di Giza durante la tarda 4a Dinastia. (© Rebekah Miracle, AERA GIS in ANCIENT EGYPT RESEARCH ASSOCIATES, AERAGRAM Vol. 14, Primavera 2013, pag. 2)

È emersa una nuova ipotesi di lavoro: oltre che di una città operaia, il sito e il suo complesso di gallerie potevano far parte di un importante porto del Nilo, con bacini, banchine di carico, depositi di legname, magazzini e forse anche cantieri navali. Il complesso della Galleria ospitava i membri delle spedizioni che portavano merci dal Levante a nord e da Assuan a sud, oltre a materiale da costruzione proveniente dalle cave e a derrate alimentari prodotte da fattorie e allevamenti di tutta la Valle del Nilo e del Delta (Immagine n. 3).

Immagine n. 3 L’Egitto e il Levante con in evidenza la rotta da Biblos e quella da Assuan, con Giza come destinazione. (© ANCIENT EGYPT RESEARCH ASSOCIATES, AERAGRAM Vol. 14, Primavera 2013, pag. 3)

Porti per vivi e morti

Sappiamo che la necropoli di Giza fungeva da magica città portuale per l’Aldilà. Imbarcazioni sepolte accanto alla piramide di Khufu e grandi fosse modellate in questa forma o contenenti vere e propri navi funerarie in legno, presso la piramide di Khafre e la tomba della regina Khentkawes, erano destinate a trasportare i sovrani defunti nell’oltretomba. E’ ipotizzabile che un vero e proprio porto doveva trovarsi nelle vicinanze, per trasportare sia le enormi quantità di materiali e rifornimenti utilizzati per la costruzione, sia la manodopera necessaria per i tre complessi piramidali di Giza nell’arco di un periodo di circa 80 anni. Anche solo per questo motivo, ci si dovrebbe aspettare un importante porto sul Nilo, l’equivalente dell’Antico Regno di installazioni portuali come Tell el-Daba e Memphis durante il Secondo Periodo Intermedio e il Nuovo Regno.

Ci sono evidenze di un porto artificiale a Giza; i carotaggi effettuati mostrano quello che potrebbe essere un enorme scavo effettuato attraverso gli strati naturali di limo del Nilo e di scorie sabbiose provenienti dagli uadi del deserto. Qui, per creare un bacino portuale, i costruttori di piramidi potrebbero aver scavato in profondità nella piana del Nilo.

Sembra ovvio che un porto a Giza fosse essenziale per la costruzione delle piramidi. Considerato il grande peso dei blocchi di granito e calcare, che venivano trasportati via nave sul Nilo, è del tutto plausibile che fossero scaricati il più vicino possibile ai cantieri. Il massiccio muro di pietra del Corvo (Heit el-Ghurab), che si estende per 200 metri a est della scarpata (o pendio) tra l’altopiano di Giza e il basso deserto e la piana alluvionale, costituiva il limite meridionale di una zona di consegna di fronte al Tempio a Valle di Khafre e alla Sfinge. L’insediamento di Heit el-Ghurab si trovava direttamente a sud, e si estendeva per almeno altri 150 metri più ad est su uno sperone di deserto basso, similmente agli insediamenti peninsulari del porto di Tell el-Daba.

E’ noto che gli Egizi dell’Antico Regno trasportavano via mare anche grandi quantità di legname, olio d’oliva e probabilmente vino e resina dal Levante, la regione che si affaccia sull’estremità orientale del Mediterraneo, e vi sono prove che alcuni di questi prodotti finirono a Heit el-Ghurab. Gli specialisti che analizzano il materiale nel laboratorio sul campo a Giza hanno identificato pezzi di ceramica e legno levantini nei campioni di carbone raccolti nel corso degli anni. Sebbene la necessità di una grande struttura per ricevere le forniture edilizie fosse ovvia, l’osservazione di tutti questi prodotti importati ha fatto nascere l’ipotesi del porto.

La via di Byblos nell’Antico Regno

La ceramista dell’AERA Anna Wodzińska ha identificato vasi di ceramica “pettinata” (Immagine n. 4) prodotti nel Vicino Oriente, tra quelli presenti in grande quantità a Heit el-Ghurab. In totale sono stati rinvenuti 18 cocci. Il nome deriva dalla sua decorazione: i produttori hanno striato o increspato la superficie come se avessero utilizzato pettine. Durante il Bronzo Antico III (epoca corrispondente all’Antico Regno), i vasai realizzarono questo tipo di ceramica in tutto il Levante, ma non in Egitto. Gli egiziani, tuttavia, importavano questo tipo di vasi, senza dubbio per il loro contenuto.

Immagine n. 4 Vaso a due manici in “ceramica pettinata”. Disegno basato su una foto di una giara proveniente dal Cimitero Occidentale di Giza, Fossa G 4630; alto 36 centimetri. La “T” incisa sul vaso è un marchio di fabbrica. A destra frammento di ceramica pettinata dal sito Heit el-Ghurab. (©Foto di Hilary McDonald). I vasi di questo tipo sono stati rinvenuti nelle tombe a mastaba di alti ufficiali nei cimiteri reali accanto alle piramidi di Giza, Meidum e Dahshur. La loro importazione raggiunse il culmine nella IV dinastia, proprio nel periodo in cui era attivo l’insediamento di Heit el-Ghurab. I 18 cocci emersi dal sito sono i più antichi in ceramica pettinata provenienti da un insediamento. (© ANCIENT EGYPT RESEARCH ASSOCIATES, AERAGRAM Vol. 14, Primavera 2013, pag. 3)

Gli archeologi che operano nei siti ad est della sponda orientale del Mediterraneo considerano queste giare, dotate di manici ad anello, come “contenitori per il commercio marittimo”, prodotti dai vasai già dalla prima età del bronzo, adatti “ai rigori del trasporto” e ai “lunghi periodi di tempo in mare”.

In Egitto gli scavatori hanno trovato la maggior parte di queste giare nelle tombe a mastaba di alti personaggi del cimitero reale accanto alle piramidi di Giza, Meidum e Dahshur. L’importazione di questi vasi raggiunse il picco massimo nella IV dinastia, proprio nel periodo in cui la popolazione occupava l’insediamento di Heit el-Ghurab.

Qualunque cosa contenessero le giare (molto probabilmente resina, vino o olio d’oliva) era preziosa e valeva la pena di percorrere centinaia di chilometri per venirne in possesso. Nel Levante, l’associazione di queste giare con le attrezzature per la produzione di olio d’oliva – bacini di calcare, presse, focolari e grandi tini di ceramica – fa preferire l’ipotesi di contenitori per questo prodotto. Ulteriori prove a Heit el-Ghurab lo confermerebbero. L’analista del legno del team, Rainer Gerisch, ha identificato pezzi di ramoscelli di ulivo bruciati in diverse aree del sito. Questi frammenti potrebbero essere stati trasportati con le spedizioni di olio come una sorta di materiale da imballaggio inserito tra le giare. Curiosamente, provenivano dal complesso delle gallerie (un insieme di quattro blocchi di strutture allungate) e dalle aree industriali adiacenti. Se le gallerie servivano da baraccamenti per i lavoratori più umili, c’è da interrogarsi sulla presenza di queste costose importazioni in tali strutture.

Attraverso l’analisi petrografica, Mary Ownby ha rintracciato l’origine della “ceramica pettinata” di Heit el-Ghurab nella regione di Byblos, un importante porto antico a nord dell’odierna Beirut. Come centro di smistamento durante l’Antico Regno e anche successivamente, Byblos raccoglieva le merci da siti più piccoli dell’entroterra e dell’altopiano, diventando la principale potenza portuale del Mediterraneo orientale. A causa della preponderanza di prove del commercio tra Byblos e l’Egitto nell’Antico Regno, gli studiosi hanno coniato il termine “Via di Byblos”. Essi suggeriscono che i corrispondenti porti di destinazione dovevano trovarsi da qualche parte sul Nilo.

La presenza del cedro

Forse la motivazione più convincente che mosse i costruttori di piramidi a spingers a Byblos fu quella di procurarsi il legname, soprattutto i favolosi cedri del Libano. Potevano, inoltre, rifornirsi di cipressi, pini e querce, che non crescevano in Egitto, una terra con scarsa copertura arborea e limitata varietà di legni autoctoni.

Lavorando metodicamente su migliaia di pezzi di carbone, probabilmente resti di combustibile, raccolti dai nostri scavatori nei depositi della Città Perduta, Rainer Gerisch ha scoperto che si tratta per lo più (93,3%) di acacia del Nilo locale. Ma, oltre a quello d’ulivo, in quasi tutte le aree di scavo sono stati rinvenuti altri legni di importazione: cipresso, pino e quercia; Il cedro, però, costituiva la presenza più abbondante. Si è rintracciato, infatti, in ogni parte della Galleria III (Immagini n. 5a-5b), scavata nel 2002, e con una frequenza relativamente alta in altri scavi del Complesso.

Immagine n. 5a Il sito di Heit el-Ghurab, con l’evidenza del complesso delle gallerie e le due gallerie che sono state ampiamente scavate: Gallerie III.3 e III.4. (© Mappa preparata da Rebekah Miracle, AERA GIS in ANCIENT EGYPT RESEARCH ASSOCIATES, AERAGRAM Vol. 14, Primavera 2013, pag. 7 ).

Immagine n. 5b Gallerie del complesso di Heit el-Ghurab, Gallerie III.3 (a destra) e III.4. Tra le due gallerie è visibile un massiccio muro laterale. L’ampio spazio aperto in primo piano potrebbe essere servito come caserma o magazzino. La parte posteriore sembra essere stata una casa, forse per un sorvegliante. I membri della squadra di scavo danno un’idea della scala. (© Foto di Yaser Mahmoud in ANCIENT EGYPT RESEARCH ASSOCIATES, AERAGRAM Vol. 14, Primavera 2013, pag. 4)

Sappiamo che il cedro era usato per la costruzione di navi (Immagine n. 6), per le porte dei palazzi e per le alte travi utilizzate come ossatura nell’ edificazione delle piramidi. A questo punto viene quasi spontaneo domandarsi per quali ragioni si sia bruciata questa preziosa essenza nei focolari .

Immagine n. 6 A destra, rivestimento dello scafo di un’imbarcazione di legno; particolare di una scena della tomba di Ti a Saqqara (V dinastia). Gli uomini in piedi nella nave usano martelli a due impugnature simili a quelli trovati nel sito di Heit el-Ghurab (Da H. Wild, Le Tombeau de Ti, Fascicule II, Institut Français d’Archéologie Orientale, Cairo, L. Épron, F. Daumas e G. Goyon, 1953, tavola CXXIX).

Per trovare indizi che possano aiutare a rispondere a questa domanda ci rivolgiamo ai porti faraonici recentemente scavati sulla costa occidentale del Mar Rosso a Mersa Gawasis, Ayn Soukhna e Wadi el-Jarf. Tutti e tre i siti comprendono strutture industriali e altri insediamenti, nonché gallerie lunghe e strette scavate nella roccia e utilizzate sia come deposito che come abitazione. Una missione franco-egiziana diretta da Pierre Tallet ha scoperto che il porto di Wadi el-Jarf risale al regno di Khufu (IV Dinastia), il cui nome è inciso in un’iscrizione sulle pietre che bloccano gli ingressi di alcune delle gallerie (vedi https://laciviltaegizia.org/…/il-sito-di-wadi-el-jarf…/.)

Per il momento, soffermiamo l’attenzione sul porto del Medio Regno (XII dinastia) di Mersa (o Wadi) Gawasis e sulle scoperte della missione di Kathryn Bard e Rodolfo Fattovich*.

A differenza del sito umido di Heit el-Ghurab, dove tutti i materiali vegetali si sono decomposti, tranne i resti carbonizzati, il clima estremamente arido di Gawasis ha favorito un’eccellente conservazione del materiale organico. In effetti, il team ha recuperato migliaia di frammenti di legno, oltre 40 casse da carico e parti di nave smontate, tra cui più di 100 componenti dello scafo, e bobine di corda. Alcuni di questi pezzi erano stati lasciati in deposito nelle gallerie sccavate nella roccia. I ricercatori del sito hanno trovato anche molti frammenti di legno lasciati “quando gli antichi lavoratori smontavano le navi i cui legnami, devastati dai tarli, fanno pensare a consistenti viaggi in mare “. In effetti, i carpentieri navali rifilavano e pulivano le parti; successivamente i membri della spedizione usavano il legno di scarto per alimentare i focolari, sia per scaldarsi, sia per cucinare all’interno delle gallerie. Oltre agli scarti lignei, potrebbero aver utilizzato come combustibile, anche parti di imbarcazione, forse dopo che queste erano state riciclate come rivestimento delle gallerie stesse e si erano deteriorate irreparabilmente. Quando analizzò il legno di Gawasis, Gerisch scoprì che, come a Giza, la maggior parte era costituita da specie egiziane autoctone, ma il secondo o terzo tipo più abbondante era il cedro, che doveva essere di provenienza libanese.

Il carbone di cedro di Heit el-Ghurab potrebbe anch’esso essere il risultato di uomini che tagliano e rilavorano parti di navi e riutilizzano gli scarti come combustibile nei focolari? Gli operai di Heit el-Ghurab hanno incorporato, come a Gawasis, assi di legno nelle soglie, nei corridoi o nella parte superiore delle gallerie e degli altri edifici?

E’ plausibile, e forse è questo il motivo per cui i residui di cedro sono presenti nel carbone di legna quasi ovunque si sia scavato e fino nelle gallerie.

Al momento, sappiamo, soprattutto da Gawasis, di altre ampie somiglianze tra Heit el-Ghurab e gli insediamenti portuali del Mar Rosso, che comprendono, in particolare, un’insenatura adiacente al sito, una zona industriale con prove di panificazione e resti di ceramica importata (a Gawasis ceramica caananita/minoica). Andrea Manzo ha notato delle somiglianze tra le gallerie scavate nella roccia di Gawasis e quelle in mattoni di fango di Heit el-Ghurab. Egli ha suggerito che le gallerie del porto sul Mar Rosso rappresentino una trasposizione del modello realizzato con mattoni di fango a Heit el-Ghurab.

Ricavati dal conglomerato naturale, i complessi realizzati sul Mar Rosso sono di conseguenza meno convenzionali rispetto a quello di Giza, ma le basi di arrivo/partenza per le missioni nel Sinai e nella terra meridionale di Punt potrebbero aver replicato una sorta di modello standard sulla costa. Potremmo considerare il complesso di Heit el-Ghurab e delle sue Gallerie come un’espressione di un prototipo per le truppe di spedizione che gli egiziani hanno adottato in altri porti.

Porti e genti

Le tracce di prodotti levantini presenti nel sito della “Città Perduta” suggeriscono che questi furono consegnati e immagazzinati qui per essere utilizzati, in ultima istanza, nelle tombe d’élite di Giza. Le strutture in cui le merci potevano essere immediatamente e temporaneamente stoccate, prima della distribuzione, sono una caratteristica standard dei porti e le lunghe gallerie del Complesso potrebbero essere servite in parte come depositi.

Dobbiamo considerare che nel corso di due generazioni, dai regni di Khafre a Menkaure (e forse anche da Khufu in poi), il sito di Heit el-Ghurab divenne il punto di arrivo delle importazioni da Byblos per la resina, il vino, l’olio e centinaia di tonnellate di legname, Assuan per migliaia di tonnellate di granito e prodotti africani, nonché della rotta Mar Rosso-Sinai per i minerali. Dobbiamo anche riconsiderare la classe e lo status delle persone che vivevano e lavoravano qui. Gli uomini che viaggiavano all’estero per procurarsi il legno e altri prodotti erano membri delle forze di spedizione. Essi e le loro merci viaggiavano e restavano insieme fino alla destinazione finale. Possiamo quindi immaginare che le gallerie ospitassero sia gli equipaggi, sia i prodotti. Inoltre, gli uomini che avevano partecipato alla spedizione potrebbero aver goduto di parte del bottino, probabilmente come ricompensa. Le scene dei templi piramidali e delle vie ascensionali mostrano giovani uomini premiati con oro e altri beni al termine delle missioni, come nella scena della strada rialzata di Sahure ad Abusir (Immagine n. 7). 

Immagine n. 7 Particolare di una scena della piramide di Sahure ad Abusir. Un cortigiano di alto rango (a destra) di nome Merynetjernisut premia un membro della spedizione di Sahure a Punt. Con la mano destra regala all’uomo un ampio collare con tre file di perline, mentre nell’altra mano tiene un sigillo cilindrico. Il destinatario ha nella mano destra un oggetto decorativo (fascia o corona). (© Da un disegno di J. Malátková in Abusir XVI, Sahure – The Pyramid Causeway: Storia e decorazione nell’Antico Regno, T. El Awady, Università Carlo di Praga, Praga, 2009, tavola 7, in ANCIENT EGYPT RESEARCH ASSOCIATES, AERAGRAM Vol. 14, Primavera 2013, pag. 6 ).

Tracce di beni “di prestigio” nelle gallerie di Giza potrebbero riferirsi a ricompense, come l’olio d’oliva, concessi ai membri della spedizione. Inoltre, nel sito di Heit el-Ghurab, è stata rinvenuta una grande quantità di ossa di animali il che suggerisce che gli abitanti consumassero una straordinaria quantità di carne, vale a dire la dieta che potremmo aspettarci per i membri di una forza di spedizione di status più elevato rispetto ai lavoratori più comuni. Allo stesso tempo, percepire gli abitanti del Complesso della Galleria come membri di truppe di spedizione e di equipaggi nautici non esclude la possibilità che molti di loro fossero impiegati nelle mansioni e nelle fatiche più elementari.

Gli studi sulla navigazione del Nilo nel corso del tempo mostrano l’impiego di un gran numero di imbarcazioni (Immagine n. 8 ), spinte e trainate dalle rive; lo stesso procedimento di base necessario per spostare i blocchi per costruire piramidi, tombe e templi. Le scene della via ascensionale di Sahure, pubblicate di recente, mostrano, infatti, che alcuni equipaggi nautici statali, navi di scorta e da spedizione portano gli stessi nomi di gruppi che si trovano nei graffiti dei lavoratori sui monumenti. Equipaggi, apparentemente navali, e lavoratori si sfidano nel canottaggio, nella lotta e nel tiro con l’arco.

Immagine n. 8 Una scena della tomba di Ti a Saqqara, (V dinastia): un veliero di ritorno da una delle città del Basso Egitto. (© Da Le Tombeau de Ti, Fascicule I, Institut Francais d’Archéologie Orientale, Cairo, L. Épron, F. Daumas e G. Goyon, 1939, tavola XLVII, in ANCIENT EGYPT RESEARCH ASSOCIATES, AERAGRAM Vol. 14, Primavera 2013, pag. 7 ).

Il tema più ampio di queste scene di Sahure riguarda una spedizione nella terra meridionale di Punt, che rientra al porto d’origine con indigeni e alberi di incenso (e/o mirra) per essere accolti dal re e dalla sua famiglia, insieme a squadre di operai che trascinano la pietra di copertura per completare la piramide. Segue una festa celebrativa, forse una festa speciale tra le tante comuni che conosciamo così bene dai testi delle tombe e dei templi. Sono visibili rastrelliere di carne appese, da condividere e consumare per l’occasione. Si può pensare ad un tipo di banchetto simile quando consideriamo le prove dell’abbondanza di bestiame, pecore e capre consumate nella Città Perduta. Si può concludere, con ogni probabilità, che la “città dei lavoratori” e la “città portuale” delle piramidi, non si escludevano a vicenda.

* Nel dicembre 2009-gennaio 2010 la spedizione archeologica dell’Università degli Studi di Napoli “L’Orientale” (UNO) e dell’Istituto Italiano per l’Africa e l’Oriente (IsIAO), Roma, in collaborazione con la Boston University (BU), Boston (USA), hanno condotto la nona stagione di ricerca sul campo nel sito di Mersa/Wadi Gawasis, sul Mar Rosso, sotto la direzione del prof. Rodolfo Fattovich ( UNO/IsIAO) e della prof.ssa Kathryn A. Bard (BU). Il team sul campo comprendeva personale italiano, americano, egiziano, britannico e tedesco con diverse specializzazioni (archeologia, archeologia nautica, epigrafia, geologia, paleoetnobotanica e topografia).

Canali e porti al tempo della edificazione delle piramidi di Giza. Ricostruzione dell’infrastruttura di trasporto fluviale di Giza progettata dagli egizi della IV dinastia.

Circa 4.400 anni fa l’altopiano di Giza brulicava di lavori per la costruzione del complesso del re Menkaure, l’ultimo dei costruttori di piramidi di Giza, e della tomba monumentale della regina madre Khentkawes I. Quando Menkaure morì prematuramente, il suo successore, Shepseskaf, completò frettolosamente i templi piramidali e costruì per Khentkawes una città adiacente al Tempio a Valle di Menkaure a nord.

Tra il 2009 e 2014 il team di AERA ha portato alla luce l’estremità settentrionale di un bacino a est della città di Khentkawes. Gli operai di Menkaure si avvalsero inizialmente del bacino come punto di approdo per la consegna materiale da costruzione. Successivamente, probabilmente a seguito dei lavori commissionati da Shepseskaf, lo riutilizzarono per servire la fondazione commemorativa di Khentkawes. L’uso originario è stato messo in luce durante la stagione sul campo 2014, mentre il ruolo del sito della Città Perduta (o Heit el-Ghurab) nella costruzione di piramidi era emerso sin dall’inizio dei lavori di AERA nel 1988. (Immagine n. 9).

Immagine n. 9 Ricostruzione del porto di Giza della IV dinastia durante la piena del Nilo. Le acque riempivano i canali e i porti che gli Egizi avevano creato per trasportare materiali e rifornimenti per la costruzione delle piramidi. (© ANCIENT EGYPT RESEARCH ASSOCIATES, AERAGRAM Vol. 15, Primavera/Autunno 2014, pag. 1)

Corso d’acqua e bacino

Per spostare massicci blocchi di pietra e altri rifornimenti, gli ingegneri dell’antichità dragarono una via d’acqua dal Nilo sul fronte orientale del Tempio in Valle di Khafre e della Sfinge. In seguito, estesero il canale versao sud e poi verso ovest fino alla facciata del Tempio in Valle di Menkaure, approfittando della profonda escavazione del basamento roccioso all’imboccatura del wadi tra gli affioramenti della formazione Moqqatam e Maadi (Immagine n. 10). Da questo canale diramarono una propaggine verso nord, creando il bacino a est della città di Khentkawes.

Immagine n. 10 Mappa del sito in cui sono evidenziate le formazioni rocciose Moqqatam e Maadi profondamente incise dal Wadi Centrale(© ANCIENT EGYPT RESEARCH ASSOCIATES, AERAGRAM Vol. 15, Primavera/Autunno 2014, pag. 21)

Utilizzando gli abbondanti detriti calcarei di cava, gli operai terrazzarono il perimetro del bacino e ne rivestirono i bordi con mattoni di fango che degradavano ripidamente a ovest e si ergevano verticalmente a nord e a est. Con una larghezza di 26,6 metri, il bacino era sufficientemente grande per consentire alle piccole imbarcazioni di consegnare le merci e tornare indietro. In entrambi gli angoli (nord-ovest e nord-est) sono state ritrovate tracce di rampe che consentivano di scaricare il materiale e trasportarlo sulla terrazza superiore (Immagine n. 11).

Immagine n. 11 Ricostruzione con un modello 3D della fase iniziale del bacino e degli accessi alla città di Khentkawes. La maggior parte di questo modello si basa su prove archeologiche, ma le altezze dei muri sono stime(© ANCIENT EGYPT RESEARCH ASSOCIATES, AERAGRAM Vol. 15, Primavera/Autunno 2014, pag. 2)

Rive orientali e occidentali: un polo per l’edilizia

Poco dopo aver completato il bacino, i costruttori aggiunsero edifici in mattoni crudi a est e a ovest, racchiudendoli tra massicce pareti. A questo punto, il bacino si presentava delimitato da spessi muri di cinta. Gli edifici occidentali furono eretti lungo un’alta terrazza rocciosa, sul bordo di una vecchia cava. Nel 2006 e nel 2007 il team ha scoperto che questi edifici erano antecedenti alla città di Khentkawes. I muratori di Shepseskaf, evidentemente li incorporarono nella parte inferiore della città a forma di “L”. All’epoca di Menkaure queste costruzioni ospitavano, con tutta probabilità, persone che gestivano le consegne di materiali da costruzione.

Sulla riva orientale inferiore, gli operai di Menkaure eressero un recinto di mattoni che si estende a est. A nord collegarono i recinti orientali e occidentali con un enorme muro di mattoni di fango per superare il dislivello di 4 metri dalla terrazza superiore alla riva orientale. Ampie porte, alle estremità occidentali e orientali del muro settentrionale, davano accesso alla terrazza superiore (Terrazza 1) del bacino (Immagine n. 12).

Immagine n. 12 Ricostruzione con un modello 3D della fase iniziale del bacino e degli accessi alla città di Khentkawes. La maggior parte di questo modello si basa su prove archeologiche, ma le altezze dei muri sono stime. Nella ricostruzione sono visibili le cinte murarie nord e ovest del Complesso di Edifici a Silos (SBC) che fu aggiunto durante la V Dinastia. (© ANCIENT EGYPT RESEARCH ASSOCIATES, AERAGRAM Vol. 15, Primavera/Autunno 2014, pag. 3)

A ovest, un’altra porta, contrassegnata da una zoccolatura a perno in calcare, dava accesso agli edifici superiori. Da questa soglia, la rampa laterale meridionale scendeva per 2 metri contro la parete rocciosa e raggiungeva il Terrazzo 1. Sulla sponda orientale, si apriva un’ ulteriore porta, attraverso il muro di cinta del complesso inferiore, anch’essa contrassegnata da una zoccolatura. Si sa poco dell’ interno originario del recinto della riva orientale. Piccoli sondaggi, fino ai primi livelli, hanno restituito pareti bruciate, pavimenti di cenere e tracce di cottura. In questo periodo, il pane e la birra erano probabilmente destinati agli operai e agli amministratori della costruzione. I cereali e le altre forniture potevano arrivare per via navale durante la stagione dell’inondazione, quando gli operai scaricavano sulle terrazze del lungofiume.

Cambiamenti sulle sponde del bacino

Durante i tre o quattro anni in cui i muratori di Shepseskaf furono impegnati nel completamento dei templi piramidali di Menkaure, si dedicarono anche alla costruzione della città per la regina madre Khentkawes sulla terrazza superiore del basamento roccioso e vi incorporarono, nella parte orientale e meridionale, gli edifici amministrativi di Menkaure.

In cima alla Rampa Laterale Sud restrinsero l’ingresso est per creare l’accesso ad un corridoio di collegamento largo 1,6 metri e lungo 150 metri, che corre verso ovest dal pendio fino alla cappella della regina nella sua tomba monumentale. I costruttori aggiunsero una rampa laterale settentrionale che completa quella a sud, ma che scende dalla soglia della strada rialzata fino a un corridoio sopraelevato di circa mezzo metro rispetto alla Terrazza 1Per consentire l’accesso alla terrazza, costruirono una serie di scale che si dipartivano da un’apertura nella parete del corridoio. Le terrazze, le scale e le rampe laterali sul lato ovest del bacino permettevano un’ ascesa adeguata al monumento della regina e alla città alta. Generazioni più tardi, si realizzarono, in pietra calcarea, rampe e terrazze laterali e ad angolo simili a quelle della parte anteriore del Tempio a Valle nel complesso piramidale di Pepi II, ultimo re della VI dinastia.

Il nuovo corridoio in muratura girava verso est e correva sopra la Terrazza 1, lungo il lato settentrionale del bacino. Aggiungendo un accrescimento contro la faccia del muro di cinta settentrionale, i costruttori resero il corridoio largo 1,6 metri, con l’intenzione di farne una continuazione della strada della regina madre che correva dritta verso il recinto sulla sponda orientale. L’accrescimento occluse l’ampio accesso occidentale attraverso il muro di cinta settentrionale, ma fu lasciato l’accesso orientale, ancora oggi segnato da un’ampia soglia di calcare (Immagine 13).

Immagine n. 13 Ricostruzione con un modello 3D della seconda fase del bacino e degli accessi alla città di Khentkawes. Nella ricostruzione sono visibili le rampe laterali sud e quella nord aggiunta in questa fase, il corridoio sopraelevato rispetto alla Terrazza 1 e l’occlusione dell’accesso occidentale lungo il muro di cinta settentrionale. La maggior parte di questo modello si basa su prove archeologiche, ma le altezze dei muri sono stime. (© ANCIENT EGYPT RESEARCH ASSOCIATES, AERAGRAM Vol. 15, Primavera/Autunno 2014, pag. 4)

Centro di culto e Commissariato della Comunità

Durante la V dinastia fu edificato, all’interno del recinto orientale, il “Complesso di edifici a silos” (SBC), che prende il nome dal suo elemento più caratteristico, una serie di cinque silos rotondi per conservare il grano.

Probabilmente, i muratori della V dinastia rinnovarono le strutture per lo stoccaggio, la cottura e la produzione di birra esistenti già all’epoca di Menkaure. Una volta che Khentkawes collegò il suo corridoio al recinto orientale, il pane, la birra e gli altri prodotti furono convogliati verso il suo monumento, prima di tornare al personale ora collegato al suo servizio funerario.

Quando costruirono l’SBC come lo conosciamo, gli operai della V dinastia abbatterono lo spesso muro occidentale del recinto più antico fino al livello della Terrazza 1. Questo fece sì che l’interno delle stanze, aggiunte o modificate sul lato ovest, si affacciasse direttamente sul bacino. Accanto ai resti dell’antico muro di cinta eressero piccoli pilastri in mattoni per sostenere una copertura leggera. Il risultato fu la realizzazione di un portico ombreggiato, una configurazione che ritroviamo in modelli di case, piante e templi del Medio Regno.

L’SBC definitivo comprendeva i cinque silos, lunghe camere aperte per la cottura ed eventualmente la produzione di birra, una residenza per il sorvegliante con cucina, camere da letto e sala per le udienze (Immagine n. 14).

Immagine n. 14 Primo piano della ricostruzione 3D del Complesso di Edifici a Silos (SBC) e dell’angolo nord-est del bacino. Quando gli Egizi abbatterono il muro di cinta occidentale dell’SBC, costruirono muri di sostegno e colonne per il tetto delle stanze adiacenti, creando un portico che si affaccia sul bacino, come vediamo in molti modelli, per lo più databili al Medio Regno. Il tetto a volta si basa sulla ricostruzione di F. Arnold delle case della città di Khentkawes in “Die Priesterhäuser der Chentkaues in Giza, Staatlicher Wohnungsbau als Interpretation der Wohnvor- stellungen für einen ldealmenschen”, Mitteilungen des Deutschen Archäologischen Instituts Abteilung Kairo, Band 54, pp. 1-18, 1998. La maggior parte di questo modello si basa su prove archeologiche, ma le altezze dei muri sono stime. (© ANCIENT EGYPT RESEARCH ASSOCIATES, AERAGRAM Vol. 15, Primavera/Autunno 2014, pag. 5)

Una storia di due “città” e di trasformazioni

Il primo bacino di Menkaure/Khentkawes e i suoi insediamenti a est e a ovest offrono una narrazione sorprendentemente diversa rispetto al sito della Città Perduta. Le autorità fondarono entrambe le installazioni per sostenere il programma di edificazione delle piramidi. Ma Heit el Ghurab fu smantellata quando terminò la costruzione, mentre il complesso della valle di Menkaure/Khentkawes fu trasformato in una città piramidale dedicata ai culti reali. Perché i due siti hanno avuto destini diversi?

Mentre il primo centro di costruzione di Menkaure/Khentkawes si trovava all’interno del sacro recinto funerario, la Città Perduta si trovava su un terreno profano più a sud-est, troppo lontano sia per fornire offerte su scala ridotta rispetto a quelle richieste dalle squadre di lavoro delle piramidi , sia per ospitare i sacerdoti. Ma essendo adiacente a un porto di grandi dimensioni vicino al Nilo(1)era ideale per ricevere ed ospitare grandi quantità di materiali, rifornimenti e persone che arrivavano via fiume. Inoltre, l’ampio e basso deserto ha permesso all’insediamento della “Città perduta” di espandersi secondo le necessità per accogliere un’ampia gamma di strutture e attività su scala industriale: laboratori artigianali, silos per il grano, magazzini, residenze per funzionari, macelli, ambienti per il bestiame e persino, per l’epoca, parte di un laboratorio funerario reale.

Il primo insediamento di Menkaure/Khentkawes, circondato da muri di cava, templi mortuari, tombe, un canale, un bacino e il wadi meridionale, aveva, invece, poco spazio per espandersi. I costruttori lo intesero come base di gestione vicino ai progetti di costruzione, ma probabilmente, fu concepito per uno scopo successivo. Fu, infatti rapidamente convertita la facciata del bacino per servire i culti reali. Inoltre, la cura e l’investimento profusi nel complesso suggeriscono l’intenzione di utilizzarlo a lungo termine. Questa storia di due città e della loro trasformazione include il trasferimento di alcuni residenti di Heit el-Ghurab nel rinnovato complesso di Menkaure/Khentkawes. Mentre la gente abbandonava e smantellava la Città Perduta, i sacerdoti della purificazione di Menkaure, che avevano lavorato nell’Officina Mortuaria Reale (Wabet, letteralmente “luogo di purificazione”), si trasferirono nella SBC con la benedizione di Shepseskaf (2) (Immagine n. 15).

Immagine 15 Ricostruzione con un modello 3D della fase finale del complesso edilizio dei Silos, del bacino e dell’avvicinamento alla città di Khentkawes. La maggior parte di questo modello si basa su prove archeologiche, ma le altezze dei muri sono stime. (© ANCIENT EGYPT RESEARCH ASSOCIATES, AERAGRAM Vol. 15, Primavera/Autunno 2014, pag. 5)

La città portuale perduta delle piramidi

In AERAGRAM 14-11 Mark Lehner ha presentato un nuovo aspetto del sito di Heit el-Ghurab: “La città portuale perduta delle piramidi”. L’insediamento non era solo la base per la costruzione delle piramidi di Giza ,ma, in quel periodo, anche un importante porto sul Nilo. In quell’articolo Lehner ha esposto una serie di prove archeologiche a sostegno di quest’idea. Ma non si è occupato di come questo insediamento fosse collegato al Nilo. In questa sede, l’autore affronta il problema esaminando le prove dell’esistenza di infrastrutture per il trasporto fluviale – canali, porti, bacini e porticcioli – sepolte sotto l’odierna pianura alluvionale lungo la base dell’altopiano di Giza. Lavorando con le testimonianze archeologiche, le tracce di antichi elementi del paesaggio, i campioni di sedimenti provenienti da superfici profondamente sepolte e le migliori ipotesi e congetture, sviluppa un modello dei porti e dei canali del Nilo a Giza durante l’Antico Regno.

Ogni anno, le piogge nell’altopiano dei laghi africani e nell’acrocoro etiopico convogliano una colossale onda d’acqua attraverso il bacino del Nilo. In Egitto, prima della costruzione della diga di Assuan, l’acqua saliva di 7 metri rispetto al suo livello più basso nel letto del fiume. L’onda del Nilo allagava la valle riempiendo bacini naturali e artificiali. Per sei/otto settimane l’acqua, con una profondità media di 1,5/2 metri, rimaneva nei bacini mentre l’argilla e il limo (il materiale disgregato proveniente dalle montagne dell’Africa orientale) si depositavano, fertilizzando la piana alluvionale e favorendo un’agricoltura estremamente produttiva.

I costruttori delle piramidi di Giza pianificarono una sopraelevazione di 7 metri, rispetto alla piena del Nilo, quando intervennero su quella parte della pianura alluvionale per farne il più grande porto fluviale dell’epoca e che includeva il sito della cosiddetta Città dei Lavoratori o Città Perduta (Heit el-Ghurab in arabo). Per trasportare pietra e altri materiali, scavarono canali e bacini con la stessa determinazione con cui costruirono piramidi, tombe e templi. Oggi i loro corsi d’acqua sono sepolti sotto il paesaggio e il Nilo, avendo variato il suo corso, ora scorre addossato al lato orientale della valle a 8 chilometri dall’altopiano di Giza . Come è possibile, quindi, trovare tracce di quelle infrastrutture?

Quattro millenni e mezzo di inondazioni del Nilo e di piogge episodiche e violente hanno riversato materiali dagli uadi del deserto seppellendo la piana dell’Antico Regno sotto 4-5 metri di argilla, limo, sabbia e ghiaia (Immagine n. 16).*

Immagine n. 16 Nella piana alluvionale del Nilo, vicino a Zaghloul Street (vedi mappa nell’immagine seguente), nel 1994, durante gli scavi per la costruzione di un grattacielo, è stato scoperto un massiccio muro di calcare e basalto. Altre due sezioni del muro sono state rinvenute in una trincea di un appaltatore durante lo scavo di una condotta delle acque reflue lungo Zaghloul Street. Il basalto e il calcare corrispondono al materiale del Tempio Superiore della piramide, del Tempio a Valle e della Via Ascensionale di Khufu, indicando che il muro di Zaghloul Street faceva parte di quel complesso. E’ presumibile che il muro racchiudesse un bacino di fronte al Tempio della Valle di Khufu. Lo “sbarramento” alla fine della trincea è il modulo di un appaltatore per il getto delle fondamenta di un edificio. La densa concentrazione di sviluppo nella piana ai piedi dell’altopiano di Giza (ben visibile nella mappa seguente) rappresenta una sfida per chiunque cerchi di ricostruire la pianura alluvionale dell’Antico Regno, profondamente sepolta. © Foto di Mark Lehner. (© ANCIENT EGYPT RESEARCH ASSOCIATES, AERAGRAM Vol. 15, Primavera/Autunno 2014, pag. 14)

Nel corso dell’ultimo secolo, dopo che le diga di Assuan ha limitato l’inondazione annuale, la città moderna del Cairo si è estesa verso Giza, un’espansione che nel 1977 era già in corso. Con tutti questi elementi sfavorevoli, è possibile ricostruire qualcosa della pianura alluvionale dell’Antico Regno?

Tre fonti offrono indizi:

– Vestigia di elementi antichi nei profili della superficie moderna.

– Elementi antichi scoperti con gli scavi

– Sedimenti recuperati attraverso trivellazioni profonde.

Gli ingegneri della IV dinastia sfruttarono la dinamica del fiume per creare porti e canali sufficientemente profondi tutto l’anno per le piccole imbarcazioni con pescaggio ridotto e, durante l’inondazione quando il livello delle acque saliva anche di sette metri, per i pesanti natanti da carico con pescaggio elevato. Per attingere a un vicino ramo occidentale del Nilo, hanno dovuto superare il possente argine del fiume, largo fino a 200 metri e alto 4 metri. Utilizzando gli indizi sopra elencati, è possibile identificare la posizione di antichi corsi d’acqua e porti. I contorni della superficie moderna e un antico solco erosivo suggeriscono che questo fosse il percorso di un canale del Nilo dell’Antico Regno. Le strutture della IV dinastia, scoperte attraverso gli scavi, definiscono i confini di canali e porti e servono come punti di riferimento per i livelli della pianura alluvionale e delle sponde del fiume.

I carotaggi effettati in profondità forniscono le sezioni di limo e argilla solidi, che riempivano i corsi d’acqua abbandonati, e di sabbia e ghiaia delle sponde del fiume su cui gli abitanti della IV dinastia costruirono i loro insediamenti. Lehner ha utilizzato una mappa topografica di Giza prodotta con la fotogrammetria nel 1977 per il Ministero egiziano dell’Edilizia Abitativa e della Riqualificazione per localizzare gli elementi e le carote di perforazione. Ha quindi disegnato la topografia della IV dinastia come sovrapposizione (Immagine n. 17). 

Immagine n. 17 Porzione di una mappa 1:5.000 che mostra le piramidi e la pianura alluvionale ai piedi dell’altopiano di Giza. La mappa è stata prodotta per il Ministero Egiziano dell’Edilizia Abitativa e del Risanamento mediante fotogrammetria nel 1977. Mostra le curve di livello e tutte le strutture presenti all’epoca (ma qui è leggermente modificata per ridurre l’affollamento). Il canale del Nilo dell’Antico Regno proposto segue il corso del canale Libeini (una vestigia dell’antico corso del fiume). L’ipotizzato canale del bacino antico che portava i materiali all’altopiano di Giza passa attraverso la fessura tra i due centri di insediamento evidenziati, Nazlet el-Sissi e Nazlet el-Batran Est. Il porto o marina di Khufu proposto è delineato da una linea rossa tratteggiata. In giallo sono evidenziati gli elementi architettonici dell’Antico Regno sepolti e alcuni dei siti e delle caratteristiche citati nell’articolo. (© ANCIENT EGYPT RESEARCH ASSOCIATES, AERAGRAM Vol. 15, Primavera/Autunno 2014, pag. 15)

Oltre a localizzare gli elementi sul piano orizzontale del paesaggio, li ha posizionati anche in verticale, impostando, cioè la, loro forma, profondità ed elevazione. Ha reso i corsi d’acqua e i porti dall’alto verso il basso secondo linee di collegamento con valori espressi in metri sul livello del mare (asl). I dati provengono da carote di sedimenti (Immagine n. 18).

Immagine n. 18 Vista prospettica dell’altopiano di Giza e della piana alluvionale adiacente con i corsi d’acqua della IV dinastia ricostruiti. I cerchi rossi indicano la posizione dei carotaggi utilizzati per sviluppare questo modello. Le colonne rappresentano schematicamente i sedimenti accumulatisi in oltre 4.500 anni. La colonna mostrata sopra o vicino a un cerchio rosso indica la sequenza di quella carota (da circa 16 metri s.l.m. in giù) (© ANCIENT EGYPT RESEARCH ASSOCIATES, AERAGRAM Vol. 15, Primavera/Autunno 2014, pag. 16)

Alla fine degli anni ’80, un consorzio americano-britannico (AMBRIC) ha perforato 72 pozzi prima di installare un sistema fognario a est dell’altopiano di Giza. Con grande precisione, hanno mappato e registrato per ogni carota i diversi sedimenti, la loro profondità sotto la superficie e l’elevazione rispetto al livello del mare. Fortunatamente, i sedimenti mostrano un elevato contrasto tra sabbia o ghiaia e limo o argilla. Nel lavorare su questi elementi Lehner ha ignorato la sequenza da circa 16,00 a 16,50 metri s.l.m., partendo dal presupposto (fondato sull’evidenza) che si trattasse di sedimenti posteriori all’Antico Regno. Le strutture antiche gli hanno fornito ulteriori punti di riferimento. Ad esempio, ha fissato l’altezza dell’inondazione del Nilo a 1 metro sotto l’altezza della pavimentazione del Tempio della Valle di Khufu, presumendo che, ragionevolmente, i suoi costruttori volessero che rimanesse all’asciutto anche in quella situazione. L’altezza della piena ha portato a sua volta all’elevazione della piana alluvionale. Prima delle dighe di Assuan, al culmine dell’inondazione, l’acqua si trovava in media 1,5 metri sopra di essa.

Le carote di sedimento, hanno restituito argilla e limo molto profondi e solidi riferibili al riempimento di quelli che dovevano essere canali fluviali e bacini artificiali. Il Nilo,infatti, non depositava argilla e limo all’interno del suo letto; durante l’inondazione spargeva questo materiale fine su entrambi i lati della pianura. Quando il fiume ha variato il suo corso, il vecchio canale si è riempito di argilla e limo provenienti dalla piena annuale e, a est degli uadi, di sabbia e ghiaia. Grazie allo studio di punti di riferimento, tracce di antiche superfici paesaggistiche e dinamiche del Nilo, a congetture ponderate e intuizioni derivate dalle moderne infrastrutture di trasporto dell’acqua, l’illustre egittologo ha sviluppato il modello della piana alluvionale qui proposto (Immagine n. 18).

* Ampi wadi delimitano l’altopiano di Giza a nord e a sud. Un wadi centrale che separa la Formazione Moqqatam dalla Formazione Maadi si dirama a nord del Muro del Corvo (Heit el-Ghurab). Vedi immagine n. 10

Ricostruzione del canale del Nilo

Stabilire quale fosse l’antico corso del Nilo rappresenta la più grande sfida per la ricostruzione della pianura alluvionale di Giza durante IV dinastia. La maggior parte degli studiosi che si sono occupati della questione ritiene che, nell’Antico Regno, un suo canale o un affluente minore scorresse nei pressi del lato occidentale della valle. David Jeffreys e Judith Bunbury hanno proposto che il Nilo, nei pressi di Menfi, a sud di Giza, si divideva in due o più rami principali come quelli odierni di Rosetta e Damietta. Molti concordano sul fatto che il Libeini segni il percorso di un antico canale occidentale del Nilo. Da Saqqara ad Abu Roash i contorni moderni della superficie ne mostrano chiaramente le tracce. E’ da questa premessa che Lehner è partito per sviluppare la sua ricostruzione del sito. Presumendo che gli egizi avessero necessità di un canale molto ampio per il trasporto di pietre e legname del peso di svariate tonnellate, ne ha ipotizzato la larghezza in circa 500 metri la larghezza , cioè la stessa del Nilo odierno all’altezza del Cairo (senza tener conto delle variazioni stagionali). Le considerazioni sui canali e sulle altre caratteristiche della conformazione del paesaggio intorno a Giza possono essere supportate grazie alle indagini effettuate da AMBRIC (Immagine n. 19), dal team di AERA e da altri ricercatori.

Immagine n. 19 I carotaggi effettuati dal consorzio americano-britannico (AMBRIC). Nella parte sinistra della mappa sono evidenziati i punti di prelievo, mentre le nove colonnine sulla parte destra ci informano sui materiali restituiti. Numerando dalla prima in alto a sinistra abbiamo: 1) Sabbia. Sedimenti del wadi 2) Sabbia e ghiaia, materiali desertici dilavati dai Wadi 3) Limo e argilla, sedimenti depositati durante le piene del Nilo (il periodico accumulo sulla pianura alluvionale 4) Depositi intercalati di limo argilloso e ghiaia sabbiosa del canale fluviale abbandonato (sedimenti dell’alluvione del Nilo e dilavamento degli uadi) 5) Ceramica depositata su limo e argilla, che conferma la presenza di un insediamento costruito sull’antica piana alluvionale o sui sedimenti delle piene del Nilo dragati dai canali 6) Sabbia, argilla, sabbia. Sabbia dei wadi depositata su sedimenti del Nilo impostati su un antico deposito di wadi 7) Insediamento (presenza di ceramica) su limo e argilla su sabbia. Insediamento costruito sui sedimenti del Nilo depositati su quelli di un antico wadi 😎 Insediamento (presenza di ceramica) su sabbia e ghiaia. Insediamento costruito su antichi sedimenti di wadi 9) Insediamento (presenza di ceramica) su sabbia. Insediamento costruito su antichi sedimenti di wadi (© ANCIENT EGYPT RESEARCH ASSOCIATES, AERAGRAM Vol. 15, Primavera/Autunno 2014, pag. 17)

I carotaggi eseguiti da AMBRIC lungo il corso del Libeini mostrano la composizione tipica di un canale fluviale abbandonato: limo e argilla molto profondi e solidi oppure, ad est delle foci degli wadi, limo e sabbia intercalati. La profondità degli strati di limo e argilla consente di determinare il fondo del vecchio canale. Due trivellazioni profonde quasi 20 metri nel Libeini, appena a est delle piramidi, hanno raggiunto il fondo di argilla su sabbia e ghiaia. Questo potrebbe essere, secondo Lehner, l’antico letto del fiume, e si trova ad un’altezza compresa tra 1,93 e 4,83 metri sul livello del mare. Con i dati a disposizione ha, di conseguenza, delineato il fondo del canale, profondo almeno 10-13 metri.

Il porto di Khufu

Ormai scomparso, ad eccezione della pavimentazione e delle massicce fondamenta in blocchi di calcare, il Tempio in Valle di Khufu si trovava su un bassopiano desertico a circa 400 metri dal bordo dell’altopiano di Giza. Il consorzio AMBRIC ne ha raggiunto la pavimentazione in basalto in una trincea lungo il canale di Mansouriyah. A circa 500 metri a est, in un’altra trincea lungo la via Zaghloul, sono stati rinvenuti due segmenti di un muro di calcare, distanti 400 metri l’uno dall’altro (vedi mappa dell’immagine n. 17, cap.5). Poi, nel 1994, un segmento lungo 70 metri di un massiccio muro di calcare e basalto è emerso poco più a est, durante gli scavi per un grattacielo (vedi immagine n. 16, cap.5). Il basalto e il calcare corrispondono al materiale del Tempio Superiore della piramide, della strada rialzata e del Tempio in Valle di Khufu, indicando che il muro di via Zaghloul faceva parte del complesso. Le tre sezioni e la pavimentazione del Tempio della Valle di Khufu definiscono un recinto di 400 metri da nord a sud e di 475 metri da est a ovest, (190.000 mq).

Sulla base di queste strutture, Lehner ha ricostruito una riva protetta, un bacino per piccole imbarcazioni ed un porto in grado di gestire grandi imbarcazioni da carico. A sud del sito del Tempio della Valle di Khufu, lungo il Canale di Mansouriyah, la trincea aMBRIC sembrerebbe aver tagliato l’insediamento dell’Antico Regno a quote comprese tra i 14,59 e i 14,86 metri s.l.m. e, successivamente, spessi muri di mattoni di fango ricoperti di calcare posti a circa 100 metri di distanza l’uno dall’altro: evidentemente i muri settentrionali e meridionali di un grande edificio. Questa struttura delimitava ulteriormente l’estensione del bacino fluviale di Khufu.

L’analisi della massa di dati a disposizione, ha permesso una ipotetica ricostruzione del “waterfront” della IV Dinastia* (Immagini nn.20-21-22-23).

Conclusioni

Ci si chiede se Il modello di infrastruttura fluviale dei costruttori delle piramidi di Giza elaborato da Lehner rappresenti accuratamente il modo in cui è stato progettato.

Considerando gli elementi indiscutibili, possiamo essere certi che una sorta di grande recinto, definito almeno in parte da muri di pietra o dighe, si estendeva per 500 metri a est del Tempio della Valle di Khufu. I segmenti di muro di Zaghloul Street e la pavimentazione del Tempio della Valle di Khufu forniscono dei punti di riferimento al di sopra dei quali le normali acque di piena del Nilo non salivano. Più a sud, le prove indicano con certezza la presenza di un canale lungo, ampio e molto profondo che conduceva direttamente verso la Sfinge e il Tempio della Valle di Khafre, con due insediamenti che fiancheggiavano il suo accesso a est. Sicuramente il sito diHeit el-Ghurab confinava con questa ampia zona a sud. A ovest, è stata individuata l’estremità settentrionale di un bacino artificiale che fronteggia il complesso di Khentkawes. L’acqua del Nilo avrebbe dovuto raggiungere questo bacino da nord e da est.

Questi elementi sono assodati, mentre un fattore importante rimane sconosciuto: le caratteristiche del Nilo durante l’Antico Regno. Non conosciamo il suo corso e le sue dimensioni, né sappiamo se il tronco principale o un canale secondario scorreva più vicino a Giza. Inoltre, mancano i dati dei carotaggi e altre informazioni che potrebbero completare il “waterfront” ai piedi dell’altopiano di Giza, come nell’area appena a est della bacino di Khufu.

Ma queste lacune non sono un motivo per rifiutare il modello. Infatti, lo scopo dell’esercizio di modellazione svolto da Lehner è rigorosamente rivolto alla ricerca, finalizzato alla scoperta e alla risoluzione di problemi, facendo uso dei dati disponibili.

Quasi certamente il modello non rappresenta perfettamente l’aspetto che aveva nella IV dinastia, ma questo processo esplorativo offre spunti di riflessione su come i costruttori di piramidi possano aver trasformato Giza in un importante porto sul Nilo.

*Tralascio qui, per brevità, i dettagli dell’impressionante lavoro compiuto da Mark Lehner che è però consultabile alle pagg. 17÷23 di Aeragram Vol. 15.

Il sito di Heit el-Ghurab: aggiornamenti dal resoconto della stagione di scavi 2017/2018

Mi è sembrato interessante soffermarmi ancora su Heit el-Ghurab, per aggiungere rilievi e interessanti scoperte (ma anche ulteriori domande) che si sono aggiunti durante il corso delle esplorazioni “in situ”.

Durante la stagione 2018 (dal 17 febbraio al 14 aprile) l’Ancient Egypt Research Associates (AERA) ha effettuato scavi in tre località di Giza: il sito di insediamento di Heit el-Ghurab (HeG), la città di Khentkawes (KKT) e la discarica scavata da Karl Kromer (KRO) sul versante occidentale del Gebel el-Qibli (Immagine n. 1). Il resoconto di quanto emerso, sarà l’oggetto delle prossime pubblicazioni

Immagine n. 1: Vista satellitare dell’altopiano di Giza sud-orientale che mostra le tre aree della Stagione 2018 di AERA: KKT (Khentkawes Town) e MVT (Menkaure Valley Temple); KRO (Kromer’s Dump); SWI (Standing Wall Island) di HeG (Heit el-Ghurab, in arabo “Muro del Corvo). Otto ispettori del Ministero delle Antichità si sono formati presso la Scuola Avanzata sul Campo AERA-ARCE, mentre erano inseriti nelle squadre di scavo, indagine e laboratorio, finanziate da una sovvenzione concessa a Richard Redding dell’Antiquities Endowment Fund (AEF) dell’American Research Center in Egypt (ARCE). Mohsen Kamel, direttore esecutivo di AERA-Egitto, e Daniel Jones, archeologo senior, hanno supervisionato gli scavi del sito. (© Giza Plateau Mapping Project, Mark Lehner, AERA -The Oriental Institut 2017-2018 Annual Report, pag. 81) 

HEIT EL-GHURAB: L’isolato con muro eretto. SWI (STANDING WALL ISLAND)

Nella prima parte della stagione 2018, gli studenti e i supervisori della scuola di campo avanzata (AERA-ARCE) hanno fatto pratica di scavo e registrazione sul luogo di un antico recinto murato, ES1 (Enclosure South 1), all’estremità settentrionale del complesso più grande che è stato denominato “Standing Wall Island” (SWI) perché nel 2004 fu rinvenuto il suo muro esterno, in calcare, alto fino a un metro. A nord, lo spesso muro esterno di SWI incornicia due recinti più piccoli, ES1 e ES2, poi continua verso sud, gira, con un angolo arrotondato, verso est, quindi ritorna a nord, lasciando un ampio corridoio a est. L’intero schema “a graffetta” racchiude una grande area vuota in cui le profonde trincee scavate hanno rivelato solo sabbia pulita. Nel 2011 è stato individuato l’anello esterno e l’analista faunistico Richard Redding ha avanzato l’ipotesi convincente che si trattasse di un recinto. Questa disposizione corrisponde, infatti, sia ai recinti raffigurati nell’arte egizia e agli antichi cortili ritrovati in Egitto e altrove, ma persino ad alcuni aspetti dei recinti moderni (come, ad esempio, gli angoli arrotondati). Quando nel 2015 l’equipe è ritornata a SWI per ulteriori indagini, è stato ipotizzato che i recinti ES1 e ES2 rimandassero a ricoveri per animali e ad ambienti per la macellazione. Ma qui si è rinvenuta anche una residenza d’élite, forse destinata al responsabile dell’intero complesso di SWI (Immagine n. 2).

Immagine n. 2: ES1 (Enclosure South 1) che mostra il recinto interno più antico visto verso sud. Rabee Eissa e Ahmed Hamad esaminano uno dei muri interni (in alto a destra). Ashraf Abd el-Aziz, Said Abdul Ahmed (in alto al centro), Shaimaa Abd El-Raouf e Hoda Osman (al centro a sinistra) esaminano i tagli attraverso lo spesso muro di pietra che divide ES1 da ES2(Enclosure South 2). ES2 rimane coperto dalla sabbia protettiva del riempimento operato dall’equipe. (in alto a sinistra). (© Giza Plateau Mapping Project, Mark Lehner, AERA -The Oriental Institut 2017-2018 Annual Report, pag. 82)

Già nel 2011 si era compreso che il muro esterno (tipico schema di un recinto) era l’ultima cosa costruita su SWI. La “casa” era composta da mattoni di fango in ES2, prima che i costruttori la circondassero con una spessa cintura di pietra. In seguito, collegarono il muro del recinto all’angolo nord-ovest (etichettato come “seam”, sutura” nell’immagine n. 3) facendolo curvare verso sud non molto tempo prima che la gente abbandonasse il complesso, quando la sabbia stava già iniziando a invadere la zona. Solo allora ES1 fu delimitato a nord e a ovest. Quindi ES1 potrebbe non essere esistito prima che il “muro di cinta” lo circondasse e lo caratterizzasse come recinto.

Inoltre, gli scavi del 2018 hanno rivelato la presenza di un preesistente recinto all’interno di quello di ES1 (Immagine n. 3).

Immagine n. 3: ES1 ed ES2 all’estremità settentrionale del complesso SWI. La curva del muro interno meridionale di ES1 rispetta il “muro di cinta” esterno di ES1, sebbene sia più profondo e appartenga a una fase più antica. Il “muro del recinto” potrebbe aver sostituito un muro di cinta preesistente. I muri di un recinto interno più antico, rinvenuti dalla Field School nel 2018, sono evidenziati in blu. (©Pianta di Rebekah Miracle da AERA GIS. Giza Plateau Mapping Project, Mark Lehner, AERA -The Oriental Institut 2017-2018 Annual Report, pag. 83)

Questa serie di muri interni è antecedente a quello esterno. Il muro occidentale del recinto interno è quello che viene considerato come muro divisorio. Forse perché più antico, questo non condivide l’orientamento di ES1 e del muro di cinta più grande di SWI; è leggermente più orientato verso est piuttosto che verso nord. Si tratta di stabilire se ES1 fosse chiuso a nord e a ovest da una cinta muraria precedente. Un fatto suggerisce che potrebbe essere esistito un muro esterno più antico del recinto. Il sottile muro sud-occidentale, attaccato all’angolo meridionale del recinto interno ES1, si incurva per “rispettare” la linea del muro di recinzione (come si evince dall’immagine n. 3). Esso si trova più in profondità, incassato in una superficie di insediamento più antica rispetto alle fondamenta del muro del recinto. E’ probabile che abbia sostituito un confine o una barriera precedente che conteneva gli animali. Il recinto più antico e più piccolo, delimitato dai muri mappati nel corso di questa stagione di indagini, è diverso dagli spessi muri che costituiscono la struttura dell’ambiente della “casa” identificata in ES2. È, pertanto, ipotizzabile che abbia avuto a che fare con il trattamento degli animali. Inoltre, sono stati nuovamente esaminati alcuni muri curvilinei (la cui mappatura aveva avuto inizio già nelle stagioni precedent) incastonati nelle rovine dell’insediamento all’esterno e a nord di ES1 e del muro del recinto (Immagine n. 4). È verosimile che possa trattarsi di recinti e di cortili minori per il riparo degli animali.

Immagine n. 4: Muri curvilinei a nord del Recinto 1 e il “Corral Wall (muro di cinta)” di fase avanzata ai margini della “Laguna 1” (colmato dall’equipe con la sabbia di riempimento, a sinistra), che potrebbe essere il residuo di un’antica zona di sosta per la consegna di merci e animali; vista verso est. (© Giza Plateau Mapping Project, Mark Lehner, AERA -The Oriental Institut 2017-2018 Annual Report, pag. 83)

LA CITTÀ DI KHENTKAWES (KKT): casa D

Nel 1932, Selim Hassan scavò nel sito denominato KKT (Città di Khentkawes, Immagine n. 5).

Immagine n. 5 Planimetria della città di Khentkawes e del Tempio in valle di Menkaure, che mostra le parti scavate e registrate da AERA e il precedente lavoro di Selim Hassan e George Reisner nell’area. (©Pianta di Rebekah Miracle da AERA GIS. Giza Plateau Mapping Project, Mark Lehner, AERA -The Oriental Institut 2017-2018 Annual Report, pag. 84)

Vi rinvenne una serie di case modulari collegate ad una strada rialzata lunga 150 metri che conduceva al monumento della regina Khentkawes I, che regnò alla fine della IV Dinastia. Alla fine della strada rialzata, su degli stipiti di granito rosso erano incisi i suoi titoli che la citano come “Madre di due re”.

Probabilmente, “la città” fu realizzata per accogliere i funzionari che avrebbero dovuto svolgere il ruolo di sacerdoti al servizio del culto funerario della sovrana. L’interesse per l’area esposta, venne meno: lasciata esposta alle intemperie, le rovine divennero una pista per cammelli e carrozze trainate da cavalli che trasportavano i visitatori dalla Sfinge al deserto. Dal 2005 le squadre di AERA, quindi 73 anni dopo la scoperta dell’insediamento, hanno deciso di riprendere gli scavi e le ricognizioni nell’intento di salvare e conservare ciò che ne resta.

Fatta eccezione per la Casa D, oggetto della stagione 2018, e per l’Edificio M (cfr. Immagini 5-7), il primo passo è stato quello di riesumare e documentare dettagliatamente ciò che era stato portato alla luce da Hassan (ad eccezione di una parte che oggi si trova al di sotto della strada moderna).

Immagine n. 6 Lavori nella Casa D durante la stagione 2018. La Casa E, con muri ricostruiti ed estrusi nel 2011, affianca la Casa D a est; vista da nord-est. (© Giza Plateau Mapping Project, Mark Lehner, AERA -The Oriental Institut 2017-2018 Annual Report, pag. 85)

Nel 2011 è iniziato il restauro della “Casa E”. Si è provveduto ad interrare i muri originali con sabbia protettiva ricostruendo superiormente con mattoni del tutto simili a quelli autentici. E’ un metodo che preserva ciò che resta delle parti originali ed è reversibile. Questa tecnica di conservazione era stata messa a punto e sperimentata a Heit el-Ghourab già nel 2005. Nel frattempo si è proceduto alla scavo di tutti i depositi antichi rimasti e alla registrazione dell’edificio denominato “Casa D”. L’intero programma, suddiviso in tre parti prevede il lavoro sul campo, la ricostruzione e la conservazione dell’intero blocco di abitazioni di KKT.

Nel 1932 gli operai di Hassan avevano svuotato le camere sino al pavimento originale e, in alcuni punti fino al materiale di fondazione sottostante. Il team di AERA ha dovuto rimuovere uno spesso strato di limo sabbioso generato dal deterioramento delle pareti di fango, per di più contaminato dai rifiuti moderni. Ciò nonostante, sono stati riportati alla luce alcuni depositi antichi che il team di Hassan aveva tralasciato. In particolare sono state documentate accuratamente le porte murate che attestano chiaramente i cambiamenti nell’uso e nella proprietà degli edifici. Un primo intervento aveva chiuso l’accesso tra gli spazi n. 11958 (la “cucina”) e n. 11959 (il “soggiorno”) posti al centro della casa (Immagine n. 7).

Immagine n. 7 Mappa della Casa D (struttura 15.260) che mostra i numeri degli spazi AERA (rosso), i numeri delle stanze registrate da Selim Hassan (blu) e i quadrati della griglia. I quadrati della griglia sono di 5 m. Pianta di Rebekah Miracle da AERA GIS; le denominazioni delle stanze (ad es. “cucina”) sono di Selim Hassan. (© Giza Plateau Mapping Project, Mark Lehner, AERA -The Oriental Institut 2017-2018 Annual Report, pag. 85)

Un altro quello tra gli spazi n. 11589 (il vestibolo dell’ingresso sud-orientale) e n. 11590, che Hassan aveva indicato come deposito d’acqua. Questi rimaneggiamenti erano avvenuti dopo che la chiusura dell’ingresso principale alla casa dalla strada rialzata aveva reso il vestibolo uno spazio morto. Modifiche di tale portata sono fondamentali per comprendere i cambiamenti d’uso dell’insediamento, avvenuti nel corso del tempo. L’ipotesi prevalente, in particolare per le case ubicate lungo la parete settentrionale della strada rialzata che conduceva direttamente alla cappella della regina, è che ospitassero i sacerdoti funerari che, in virtù del comodo ingresso attraverso le porte sud-orientali accedevano con facilità alle offerte derivanti dal loro ufficio. La ripetizione modulare di questo schema nella disposizione lascia pensare ad una ripartizione di questi compiti e dei relativi benefici (cfr. Immagine n. 5).

Nella “Casa D”, invece i muratori chiusero e intonacarono la porta frontale (presente in origine nell’angolo sud-est dell’edificio) sulla sopraelevata (Immagine n. 8), mentre, nello stesso tempo quest’ultima veniva interessata dal sollevamento e rifacimento della pavimentazione e dell’intonaco. Anche le porte sud-orientali di altre case subirono gli stessi interventi, sicché, pur conservandosi la strada rialzata grazie ai lavori ristrutturazione, cambiarono radicalmente l’orientamento e la destinazione d’uso di queste abitazioni. L’accesso principale avveniva ora dalle porte settentrionali che davano su un sentiero che correva tra la città e la cava-cimitero (Central Field East) che si trovava immediatamente a nord; di conseguenza, gli ingressi principali originari divennero spazi morti, come si vede chiaramente nella Casa D.

Immagine n. 8 Accesso sud-est dalla strada rialzata di Khentkawes alla Casa D, ostruita con mattoni di fango e intonacata in un momento successivo alla disposizione iniziale di questa casa; vista verso nord-nord-ovest. (© Giza Plateau Mapping Project, Mark Lehner, AERA -The Oriental Institut 2017-2018 Annual Report, pag. 86)

Hassan notò che nella prima abitazione a ovest (Casa A), l’ingresso meridionale era stato murato in tempi antichi e l’ambiente che si venne a creare (contrassegnato con il n. 28) potrebbe essere stato utilizzato come stalla. Infatti, contro il muro meridionale, conficcato nel pavimento, era presente un blocco di quelli impiegati per impastoiare gli animali.

Esaminando le case singole e modulari di KKT, il team di AERA ha concluso che ne fu modificata l’organizzazione. É evidente che ostruendo le porte originali ed aprendo nuovi accessi, gli abitanti rimaneggiarono le loro abitazioni ampliando o restringendo gli ambienti. Si è supposto che le autorità centrali avessero pianificato di ospitare da sei a dieci proprietari nelle case modulari a nord della strada rialzata di Khentkawes, ma alla fine è probabile che solo in pochi erano rimasti ad officiare da questi appartamenti. Ci sono, inoltre, indicazioni che fosse cambiata anche la destinazione d’uso. L’archeologo tedesco Felix Arnold aveva osservato che le oblunghe stanze centrali orientate da nord a sud presentavano pilastri meridionali, forse in origine sormontati da un architrave, che incorniciavano una nicchia (cfr. Immagine n. 9spazio 11.599 = stanza 62). Doveva trattarsi di sale per il ricevimento ufficiale e formale, il luogo dove i proprietari tenevano udienze e trattavano gli affari. Ambienti del tutto simili sono stati individuati da AERA nelle grandi abitazioni della Città Occidentale e dell’ Area SWI nel sito di Heit el Ghurab . La scoperta, nel 2015, di supporti per mobili in pietra calcarea e di modanature dipinte di rosso crollate tra i pilastri presenti nella grande casa di ES2, ha rafforzato l’ipotesi di Arnold.

Immagine n. 9 Casa D, stanza centrale con pilastri e nicchia (spazio 11.599 = stanza 62) dopo la pulizia, lo scavo e i rilevamenti eseguiti durante la stagione 2018, vista a nord. (© Giza Plateau Mapping Project, Mark Lehner, AERA -The Oriental Institut 2017-2018 Annual Report, pag. 87)

Tutte le case che presentano stanze con nicchie a pilastri, si possono quindi considerare come centri di amministrazione domestica, comprese le grandi abitazioni della città di Khentkawes. Tuttavia, nella casa D sono state trovate prove del fatto che gli abitanti riadattarono proprio la nicchia in cui si presume che il proprietario svolgesse i suoi affari. Vi collocarono dei mezzi mattoni in entrambi gli angoli del lato occidentale (forse per un supporto basso o una mensola), lasciando una stretta fessura (larga 25 cm.) e installarono un elemento semicircolare in mattoni di fango, di circa un cubito di diametro (55 cm.), forse una sorta di alloggiamento per una ciotola o un catino (Immagine n. 10). E’ presente, inoltre una macchia di terra bruciata e cenere che si estende nella spazio tra i pilastri.

Immagine n. 10 La nicchia delimitata da pilastri nell’estremità meridionale dell’ambiente centrale (62 = spazio 11.599) della Casa D, vista a nord. (© Giza Plateau Mapping Project, Mark Lehner, AERA -The Oriental Institut 2017-2018 Annual Report, pag. 87)

Destinata a rappresentare il signore e il padrone di casa, la nicchia sembra essersi trasformata in un umile luogo per cucinare o riscaldarsi.

Fonte: Giza Plateau Mapping Project, Mark Lehner, AERA -The Oriental Institut 2017-2018 Annual Report, pagg. 81÷98

IL SITO DI KROMER, UNA DISCARICA DA INSEDIAMENTO DELLA IV DINASTIA.

 Tra il 1971 e il 1975 Karl Kromer, un archeologo austriaco, studioso della preistoria , scavò un massiccio cumulo di detriti da insediamento immediatamente a sud-ovest del Gebel el-Qibli, la scarpata che corre lungo il margine occidentale di Heit el-Ghurab (cfr. Immagine n. 1, parte prima). Il materiale accumulato si estende su 5,1 ettari e ha uno spessore fino a 6,5 metri. Gli antichi abitanti vi avevano scaricato frantumi di demolizione e scarti di cava durante l’epoca di Khafre e forse già a partire dal regno di Khufu. Infatti, Kromer vi rinvenne sigilli di questi due sovrani, costruttori della prima e della seconda piramide di Giza. Si è ipotizzato che i lavoratori abbiano portato questo materiale da HeG quando Khafre ha riorganizzato e ristrutturato il sito. Se così fosse, questi detriti offrirebbero spunti di riflessione sulla fase iniziale dell’insediamento e fornirebbero materiale di confronto per lo studio di eventuali resti provenienti dai livelli più antichi.

Kromer scavò 1.550 metri cubi di detriti in una serie di quadrati di 10 × 10 m e in alcune trincee oblunghe supplementari, per una profondità di 6,5 m, lasciando una sorta di vasca a forma di L di 60 m da nord a sud e 25 m da est a ovest. (Immagine n. 11).

Immagine n. 11 La mappa mostra i quadrati di Kromer 10 × 10 m (contrassegnati in verde) e i sondaggi del 2018 di AERA n. 184 e 185 (in rosso). La linea viola indica il limite dello scavo di Kromer rivolto a ovest dopo il crollo, come è stata trovata nel 2018, con i resti di una scalinata di calcare (evidenziata in grigio). Da un’indagine di Mohamed Abd El-Basat, Amr Zakaria, Mohamed Helmy, Mohamed Abd el-Maksud e Ahmed Hamad; adattato da Mark Lehner dalla ricerca Mohamed Abd el-Basat. (© Giza Plateau Mapping Project, Mark Lehner, AERA -The Oriental Institut 2017-2018 Annual Report, pag. 88)

Ne emersero materiali provenienti dalla demolizione di edifici, frammenti di mattoni di fango e pareti intonacate e dipinte; oggetti della vita quotidiana come aghi di rame, spatole, ami da pesca e perline di maiolica; piccole statuette; e sigilli di argilla con impressi disegni formali e ufficiali che nominano Khufu e Khafre. Alcuni dei sigilli relativi a Khafre corrispondono a quelli ritrovati a HeG. Per prima cosa il team di AERA ha nuovamente perimetrato l’area, tracciato i quadrati della griglia e individuato i punti di rilevamento originali di Kromer e le trincee. L’antica discarica era chiara in superficie, ma decenni di sabbia alla deriva avevano ricoperto l’area e, purtroppo, la mappa di Kromer non era precisa.

Sotto la supervisione di Mohsen Kamel, Aude Gräzer Ohara e Virag Pabeschitz sono state scavate due trincee, una piccola, il Sondaggio 184, e una più grande, il Sondaggio 185 (Immagine n. 12), entrambe nel margine superiore della cresta a forma di mezzaluna lasciata dagli scavi di Kromer.

Immagine n. 12 Il sondaggio 185; vista verso est. Foto di Aude Gräzer Ohara. (© Giza Plateau Mapping Project, Mark Lehner, AERA -The Oriental Institut 2017-2018 Annual Report, pag. 90)

Il Sondaggio 184 è stato abbandonato perché ha restituito null’altro che un concentrato di rifiuti di cava di calcare frantumato. Il sondaggio 185, sovrapposto ai quadrati B, G e K di Kromer si è esteso oltre i suoi scavi sia a est che a ovest, consentendo di campionare porzioni del tumulo rimaste intatte, per una lunghezza totale di quasi 40 m (37,09 m di lunghezza sul lato sud e 34,43 m sul lato nord). Nel cercare di individuare il lato orientale degli scavi di Kromer, ci si è spostati di quasi 10 m più a nord.

Poiché si è cominciato a scavare ben 10 m a nord del limite orientale dello scavo precedente, ci si è imbattuti in strati massicci di detriti di insediamento indisturbati, accumulatisi nel tempo, quando gli antichi lavoratori scaricavano un cesto dopo l’altro (Immagine n. 13). 

Immagine n. 13 Estremità superiore orientale del Sondaggio 185, sezione sud (rivolta a nord). Il sorvegliante Sayed Saleh indica il confine tra le sequenze di depositi 518 e 512(© Giza Plateau Mapping Project, Mark Lehner, AERA -The Oriental Institut 2017-2018 Annual Report, pag. 89)

Nella sezione si possono osservare smaltimenti in successione, ravvicinati nel tempo, diversi per colore e composizione (più o meno ricche di scaglie di calcare, sabbia, e/o frammenti di fango laterizio). Alcuni strati sottili mostrano una superficie occasionalmente indurita dall’umidità (pioggia?). Si è subito rivelato impossibile rimuovere questi singoli depositi sottili in sequenza, perché sono molto disgregati.

In cima al Sondaggio 185 (cfr. Immagine n. 13), sono emersi altri scarti di cava (sezioni 511 e 514) identici a quelli abbandonati nel Sondaggio 184, ma mescolati a rifiuti databili tra gli anni ’40 e ’70 del secolo scorso. Al di sotto, giacevano detriti di non disturbati di calcare frantumato (516) e, a seguire, una successione di strati di colore marrone chiaro che si è rivelata ricca di materiale culturale: frammenti di ceramica; frammenti di mattoni di fango; sigilli di argilla per sacchi, scatole, vasi e porte; sigilli impressi con motivi geroglifici; carbone, conchiglie; frammenti tessili, persino un grosso ciuffo di lana; una perlina tubolare blu; un pezzo non lavorato di corniola; una perla di vetro; e grandi quantità di ossa di animali.

L’ambiente secco del sito KRO, a un’altitudine compresa tra 44 e 52 m s.l.m., ha permesso la conservazione di resti di legno e piante, come canne, paglia e fronde di palma, diversamente dal sito umido di HeG, posto tra 15 e 16 m s.l.m. E’ stata successivamente scavata una sequenza di bande intercalate di sabbia scura e limo sabbioso (512). Gräzer-Ohara ha osservato come “Questa sequenza fosse ancora più ricca di materiale culturale; in particolare presentava una concentrazione di mattoni di fango degradati e forse ceneri, che le hanno conferito un colore particolarmente scuro” (Immagini n. 13-14).

Immagine n. 14 Estremità superiore orientale del Sondaggio 185, sezione meridionale (rivolta a nord) durante lo scavo del 512; vista verso sud-est. Si è preferito indicare come 512 due sequenze che, in realtà avrebbero dovuto essere distinte(© Giza Plateau Mapping Project, Mark Lehner, AERA -The Oriental Institut 2017-2018 Annual Report, pag. 91).

Si è continuato a cavare per un altro metro nella sequenza 512 per una larghezza di 2,40 m ma non è stato possibile raggiungere l’estremità orientale di questo materiale, che degrada verso est sulla superficie di una sequenza sottostante, (Immagine n. 14, freccia) per il crollo della sezione sopra la 512 e per il pericolo di lavorare a una tale profondità in presenza di materiale incoerente.

Avendo determinato il limite orientale degli scavi di Kromer, la squadra ne ha esposto e ripulito la parete ovest che scendeva molto più in profondità rispetto al punto in cui il lavoro è stato interrotto. Poiché il materiale inferiore (526) era molto incoerente e a rischio di crollo, il fronte della sezione è stato indagato a tappe per campionarlo e registrarlo (Immagine n. 15).

Immagine n. 15 Aude Gräzer Ohara controlla il basamento di calcare marnoso concentrato in una piccola zona alla base della sezione di Kromer; vista a sud-est (© Giza Plateau Mapping Project, Mark Lehner, AERA -The Oriental Institut 2017-2018 Annual Report, pag. 91).

I depositi consistevano ancora una volta di sabbia limosa intercalata con altra che includeva molto meno limo, ma nel complesso l’intera sequenza è più sabbiosa, di colore molto più chiaro e più sciolta rispetto a quella del settore 512 (Immagini n. 14-15).

Alla base della sequenza 526, è emerso un deposito strombato (527) di frammenti di mattoni di fango in una matrice di sabbia (Immagine n. 15). Kromer tralasciò questa parte mentre scavava fino a raggiungere una superficie compatta di calcare marnoso concentrato e frantumato (529) del bedrock locale della Formazione Maadi. Dopo aver documentato e rimosso il deposito di mattoni di fango sbriciolati (527), il team ha effettuato un piccolo sondaggio nel calcare per verificare la presenza di residui di insediamenti inferiori, senza trovarne, fino a circa mezzo metro di profondità. Lì si trovava il fondo dello scavo di Kromer relativo al quadrato G (cfr. Immagine n. 11).

Questo “pavimento” è stato ripulito, dalla sabbia accumulatasi verso ovest, fino ad un basso argine che era stato lasciato tra i quadrati G e B. Il lato orientale dell’argine è costituito da detriti calcarei (529) e la parte restante da un altro strato detritico scuro pieno di frammenti di mattoni di fango che sovrasta una piattaforma di calcare tafla (531), così regolare ed uniforme da dare l’impressione di un vero e proprio pavimento artificiale (Immagine n. 16).

Immagine n. 16 Aude Gräzer Ohara si trova sul “pavimento” pianeggiante di calcare marnoso (531, tafla) dopo che gli operai hanno scavato un sottile strato scuro sovrapposto a detriti di fango (522), che prima dello scavo formava un banco con una superficie di detriti calcarei (529) lasciati da Kromer tra i suoi quadrati G e B; vista verso sud-ovest (© Giza Plateau Mapping Project, Mark Lehner, AERA -The Oriental Institut 2017-2018 Annual Report, pag. 91).

Diversi metri più a ovest è stato raggiunto il limite occidentale degli scavi di Kromer. Anche in questo caso, il sondaggio 185 è proseguito oltre i settori scavati dall’archeologo austriaco, superando l’angolo nordorientale del quadrato B. La base di calcare marnoso compatto (531) inizia a scendere rapidamente verso ovest (Immagine n. 17).

Immagine n. 17 Sondaggio 185; vista verso est. In primo piano: il pendio discendente del “pavimento” 531, la parte più scura è il sovrastante deposito 522. (© Giza Plateau Mapping Project, Mark Lehner, AERA -The Oriental Institut 2017-2018 Annual Report, pag. 92).

Il deposito laterizio sovrastante più scuro (522), continua a scendere diventando più spesso. In questo settore Kromer aveva lasciato una sequenza di strati di sabbia sottili sovrapposti intercalati da strati molto scuri di cenere e limo del Nilo (Immagine n. 18).

Immagine n. 18 L’estremità occidentale, lato nord, del Sondaggio 185, che mostra il limite occidentale dello scavo di Kromer (il suo quadrato K; cfr. immagine n. 11). Gli strati più alti degradano verso ovest; vista verso nord-ovest. (© Giza Plateau Mapping Project, Mark Lehner, AERA -The Oriental Institut 2017-2018 Annual Report, pag. 92).

Non è stato raggiunto il fondo di questa vasta discarica di rifiuti di cava e di insediamento, ma è stato deciso di prelevare ampi campioni da ogni deposito. Sia a ovest, sia a est, il materiale sversato continua in profondità apparentemente adagiato su una spalla rocciosa.

I campioni prelevati hanno permesso di conoscere meglio il contesto di questa discarica in relazione alle cave e agli insediamenti nella zona sud-orientale della necropoli di Giza. E’ già stato svolto un lavoro preliminare su questo materiale culturale e sugli eventi che riflette.

REPERTI 2018 DAL SITO DI KROMER

Come già avvenne all’epoca di Kromer, anche la campagna di scavo del team di AERA ha restituito una vasta gamma di reperti: ceramica, mattoni di fango, sigilli, carbone, conchiglie, perline, selci, grosse quantità di ossa di animali e materiale organico come legno, fibre e lino. Al momento non sono stati rinvenuti sigilli riferibili a Khufu. Tutti quelli che recavano inciso un nome reale, riguardavano il suo successore Khafre.

La presenza di frammenti di mattoni di fango in tutti i diversi strati, con ammassi variabili, ha posto un problema di interpretazione. Infatti, se il deposito fosse il risultato di un’unica demolizione dell’insediamento ci si aspetterà di trovare una concentrazione uniforme. Resta, quindi, ancora da capire se i frantumi sparsi riflettono una demolizione “una tantum” oppure siano conseguenza di una ristrutturazione continuativa. Per poter fornire risposte altamente affidabili occorrerà approfondire l’analisi dei campioni recuperati nelle relative sequenze.

Nell’alto deserto è relativamente scarsa la presenza di mattoni gialli di argilla calcarea e marna (tafla, in arabo) rispetto al limo scuro tipico della piana alluvionale del Nilo. La tafla, presente tutta all’intorno del sito di Kromer e Gebel el Qibli è in parte composto da strati di questi materiali che i muratori della IV Dinastia utilizzavano per intonacare le pareti di KKT (Città di Khentkawes) e HeG (Heit el-Ghurab). La presenza di limo nella maggior parte dei frammenti di mattoni demoliti costituisce uno dei numerosi indizi che lascerebbero pensare a rifiuti provenienti da un insediamento sulla piana del Nilo o nelle sue vicinanze, piuttosto che da uno posto nelle cave del deserto a sud delle piramidi.

E’ possibile, dal momento che la presenza non è così massiccia come ci si sarebbe aspettato, che gran parte dei mattoni siano stati riutilizzati durante la ricostruzione. D’altra parte, già era stato rilevato che i muratori dell’epoca avevano impiegato materiale di recupero al centro dei muri del complesso della Galleria di HeG.

La presenza di frammenti di diversi componenti, tetti, pavimenti e focolari, suggerisce che nella discarica furono smaltiti detriti provenienti dalla demolizione di interi edifici.

All’epoca, Kromer vi rinvenne frammenti di un pavimento di ghiaia dura. Questo conglomerato, composto da sabbia grossolana limosa e ghiaiosa, misto ad argilla cotta, appare in tutto e per tutto simile ad un cemento moderno. Quando i ricercatori di AERA ne hanno rinvenuto un pezzo, si sono chiesti se non fosse il risultato di una contaminazione derivante da una struttura moderna; ipotesi subito esclusa in quanto il reperto è emerso da depositi antichi e incorrotti.

Kromer ipotizzò che questi duri pavimenti fossero impiegati come sostituti della pavimentazione in pietra e denotavano uno status molto elevato, al punto da ritenere che potessero provenire da una casa reale o un piccolo palazzo di Giza.

In tutta la sequenza sono stati rinvenuti frammenti di intonaco bianco. Alcuni presentano bande di rosso, nero, grigio e tonalità di rosso chiaro o arancione. Kromer aveva registrato la presenza di frammenti di intonaci dipinti di nero, bianco, rosso intenso, ruggine, rosa, arancio, marrone grigio chiaro e beige. Un tipo di arredamento simile sembra confermare l’ipotesi (già avanzata da Kromer) che provenisse da residenze di “élite”. La maggior parte dell’intonaco dipinto fu rinvenuto nei quadrati F B e G, vale a dire proprio dove le squadre di AERA hanno effettuato il Sondaggio 185 e dove è stato recuperato il maggior numero di sigilli. Ali Witsell, a capo della squadra di esperti di sigilli di AERA, riferisce che tra quelli emersi durante i nuovi sondaggi, al momento non ne figurano di riferibili a Khufu. Kromer, invece, ne ritrovò cinque e trentotto a riconducibili a Khafre. Il numero di sigilli registrati all’epoca sembra molto basso se confrontato a quelli emersi durante le sole sei settimane di scavo in cui Witsell e il suo team hanno recuperato almeno quaranta sigilli formali (recanti nome del re e titoli ufficiali) e quarantatre informali. Ed ancora non è stato esaminato tutto il materiale proveniente dal Sondaggio 185. Evidentemente, Kromer deve aver buttato via un buon numero di sigilli!

Uno dei frammenti di sigillo più grandi (n. 5844), emerso dalla sequenza 522 (Immagini n. 19 e 20) riporta sia il nome di Horus di Khafre “Wser Ib (forte, possente di cuore)” sia il suo nome a cartiglio come parte del titolo “Hem Netjer Khafre” (Servo del dio Khafre, oppure Sacerdote di Khafre).

Immagine n. 19 Sigillo 5844 dal Sondage 185, caratteristica 522 (vedi figg. 16-17), foto di David Jeřábek (© Giza Plateau Mapping Project, Mark Lehner, AERA -The Oriental Institut 2017-2018 Annual Report, pag. 94).
Immagine n. 20 Sigillo 5844: disegno con ricostruzione teorica di Ali Witsell. Il sigillo reca sia il nome di Horus, “Wsir Ib”, sia, nel cartiglio, il nome “Khafre”, il re costruttore della seconda piramide di Giza. (© Giza Plateau Mapping Project, Mark Lehner, AERA -The Oriental Institut 2017-2018 Annual Report, pag. 94).

Probabilmente, il sigillo più importante (n. 5848) della sequenza 522 si rivelerà essere un piccolo frammento che mostra la parte inferiore di un nome di Horus e sotto i geroglifici per “Setep ZA” (lett. scegliere una Za)Setep ZA, scritto con il determinativo per “casa”, lo identifica, però, sicuramente come un sostantivo di luogo, un riferimento al palazzo. Siccome sinora non erano stati ritrovati reperti con questo termine, scritto con quel determinativo (quindi col significato di “palazzo”), databili a prima del Medio Regno, il frammento 5848 rinvenuto nel Sondaggio 185 (Immagine n. 21) potrebbe essere, al momento il più antico di cui si abbia conoscenza.

Immagine n. 21 Sigillo 5848 con il termine Setep Za sotto ciò che resta di un serekh (il rettangolo pannellato in alto) e accanto alla figura di un re in corsa (a sinistra) che indossa l’alta corona del sud. (© Giza Plateau Mapping Project, Mark Lehner, AERA -The Oriental Institut 2017-2018 Annual Report, pag. 95).

Immagine n. 22 ricostruzione della scritta “Setep Za” (o Sa). Da sinistra a destra: accetta su blocco di legno (valore fonetico “stp”); pastoia (valore fonetico z3, s3) seguito da un rettangolo aperto (una casa vista in pianta) che funge da determinativo. La presenza di questo determinativo ci indica che si sta parlando di un Palazzo.

IL SITO DI KROMER, RIFLESSIONI SULLE IPOTESI DI PALAZZO E CONCLUSIONI

Il “Setep Za” era il luogo nel quale il re riceveva suggerimenti e prendeva decisioni. Ogden Goelet (un egittologo particolarmente impegnato nel campo della lessicografia e delle forme di scrittura) ha constatato che i testi dell’Antico Regno contenenti la frase “nel Setep Za”, fanno sempre riferimento al sovrano che, consultando i suoi consiglieri, delibera su lavori edili, di artigianato o costruzione.

Ciò che è stato rinvenuto nel 2018 nel sito di Kromer sembrerebbe confermare l’ipotesi, già avanzata durante i primi scavi a Heit el-Ghurab, che i regnanti facessero costruire una residenza nelle vicinanze delle loro piramidi e che le strutture per la produzione di cibo ritrovate nel 1991 e nel 1995 fossero collegate ad un palazzo. Successivamente, nel 2005, da un’altra discarica accanto alla grande ed elitaria Casa 1 della cosiddetta Città Occidentale di HeG, è emersa una notevole quantità di sigilli che includevano alcuni dei titoli di più alto rango, riferibili a membri della casa reale o a importanti famiglie della Quarta Dinastia (Immagine n. 21).

Immagine n. 21 Ricostruzione grafica del “sigillo 1” proveniente dal deposito del tumulo di ceramica di HeG. I geroglifici rivelano i titoli di “Scriba di documenti reali” e “Custode delle istruzioni reali”. Questo sigillo fu usato sia a HeG, sia nel sito che ha prodotto il materiale nella discarica di Kromer e ne sono stati trovati esempi sia negli anni Settanta (quadrati G e I) sia negli scavi del 2018 (sequenza 517). Disegno di John Nolan (©AERAGRAM –Vol.19-1, primavera 2018, pag. 6).

Per John Nolan, direttore associato ed epigrafista senior di AERA, è un indizio molto forte della presenza, nelle vicinanze, di un edificio reale in cui il sovrano soggiornava in maniera sporadica e periodica. In pratica, un punto di appoggio temporaneo, piuttosto che un vera e proprio Residenza permanente.

All’epoca, anche Kromer, in base al materiale ritrovato, aveva avanzato un’ipotesi simile ed aveva localizzato il presunto Palazzo, che ospitava il re quando si recava ai cantieri, nell’area in cui Menkaure avrebbe successivamente eretto il suo Tempio in Valle. Effettivamente in quel luogo è presente un edificio che fu poi incorporato nella città di Khentkawes (KKT). Si tratta dell’edificio M (cfr. immagine n. 5) che presenta, intonaco dipinto ed un ambiente per le udienze, del tutto simile alle sale centrali di altre grandi case di amministratori presenti a KKT (si veda, la casa D, di cui ci si è già occupati) e nel quartiere occidentale di HeG. Queste sale, sempre orientate da nord a sud, presentano una nicchia all’estremità meridionale dove il proprietario si sedeva e riceveva gli ospiti. Nell’edificio M i muri sono più spessi rispetto a quelli di altre case di KKT e ha tre sale con nicchie e pilastri che in origine presentavano bande dipinte di nero bianco e rosso. Pertanto, potrebbe semplicemente trattarsi di un’altra delle grandi case presenti nel sito. Ma, oltre a presentare, rispetto a queste, muri più spessi, mostra elementi caratteristici di un palazzo risalente alla I Dinastia che è stato recentemente identificato da un team tedesco nell’antichissimo sito di Buto nel Delta del Nilo; vale a dire depositi che fiancheggiano la sala delle udienze, cortili aperti che ospitano impianti per la produzione di pane e altri alimenti, corridoi lunghi e stretti che circondano il nucleo della casa, pareti intonacate e dipinte e vie di accesso alla sala delle udienze. Il palazzo di Buto era, forse, una residenza temporanea per la corte durante il viaggio del re attraverso il Paese.

I lavori delle stagioni precedenti avevano evidenziato che le strutture occupavano l’estremità orientale di KKT ed erano installate lungo il versante occidentale di un bacino (portuale?) prima di essere ricostruite e incorporate nell’insediamento. L’edificio M sia nella prima fase, sia nella successiva, aveva, probabilmente la funzione di “road house” (in pratica, una residenza di appoggio) per i sovrani quando giungevano al sito piramidale. E’ ipotizzabile che parte di questo edificio fu demolita dai costruttori di Menkaure prima di erigere il Tempio a Valle della piramide e che i suoi detriti siano stati smaltiti sul Gebel el-Qibli. L’esame approfondito di questa struttura è l’obiettivo della stagione 2019, per studiarne le varie fasi.

Nel frattempo, dall’analisi dei reperti rinvenuti nel 2018 nel sito di Kromer, risulta che i sigilli formali, e forse anche gran parte degli intonaci dipinti, provengono dall’estremità inferiore occidentale del Sondaggio 185 (in particolare dal livello 522, cfr. immagini n. 16-17). Come già precisato in precedenza, Kromer aveva già trovato e rimosso, proprio in quest’area, la maggior parte dell’intonaco dipinto e dei sigilli, per cui il team di AERA si è fatto carico riportare alla luce quanto era stato tralasciato (Immagini n. 22-23-24).

Immagine n. 22 Esempi di materiali recuperati nella campagna di scavo 2018 nel sito di Kromer: frammento di uno stipite intonacato e frammenti di intonaci dipinti. Ph. Mark Lehner e Samar Mahmoud (©AERAGRAM –Vol.19-1, primavera 2018, pag. 6)
Immagine n. 23 Esempi di materiali recuperati nella campagna di scavo 2018 nel sito di Kromer: un punta di pietra scheggiata, frammenti di coltelli in selce e pezzi di legno. Ph. Mark Lehner e Samar Mahmoud (©AERAGRAM –Vol.19-1, primavera 2018, pag. 7)

Immagine n. 24 Esempi di materiali recuperati nella campagna di scavo 2018 nel sito di Kromer: un coperchio per vaso d’argilla. Ph. Mark Lehner e Samar Mahmoud (©AERAGRAM –Vol.19-1, primavera 2018, pag. 7)

In questo punto le linee di demarcazione scendono verso ovest, indicando che le persone che scaricavano i detriti arrivavano da est, la direzione di Heit el-Ghurab. Negli strati orientali, più alti e forse cronologicamente successivi, le linee degradano invece drasticamente verso est (cfr. immagini n. 13-14), segno evidente che, in quel periodo, gli scaricatori provenivano da ovest (Immagine n. 25).

Immagine n. 25 Modello della parte meridionale dell’altopiano di Giza, con i bacini ricostruiti e il sito di Heit el-Ghurab (HeG), che mostra le possibili direzioni di scarico nel sito di Kromer: da est, HeG, o da nord e ovest, l’area della città di Khentkawes e del Tempio della Valle di Menkaure. Modello progettato da Mark Lehner, elaborato in AERA GIS da Rebekah Miracle. (© Giza Plateau Mapping Project, Mark Lehner, AERA -The Oriental Institut 2017-2018 Annual Report, pagg. 96-97).

Negli strati più alti e orientali (in particolare nel 512), è stata rinvenuta una quantità stupefacente di ossa di animali, in particolare ovini e caprini, mentre quelle di bovini erano presenti nel livello 522. Molte ossa erano state spezzate o tagliate laddove formavano un’articolazione con un altro osso e alcune presentavano evidenti tracce di coltello (Immagine n. 26).

Immagine n. 26 Il team di AERA ha trovato grandi quantità di ossa lunghe con le estremità spezzate ed evidenti tracce di coltello. Ciò confermerebbe che il complesso ospitasse un macello. Ph. Markh Lehner (©AERAGRAM –Vol.19-1, primavera 2018

Curiosamente si è trovata qui la prova invano cercata in SWI (l’isolato con muro eretto di Heit el-Ghurab) per sostenere che il complesso fungesse da recinto e macello.

Altre ossa, inoltre, erano state spaccate o forate all’estremità per estrarne il midollo (Immagine n. 27). 

Immagine n. 27 Alcune ossa presentano fori alle estremità, evidentemente per aspirarne il midollo. Ph. Mark Lehner. (©AERAGRAM –Vol.19-1, primavera 2018

Evidentemente i macellai inviavano la carne di qualità superiore alle persone di rango più elevato, mentre destinavano le estremità per la preparazione di zuppe e stufati ricchi di grassi e proteine, a base di gelatina e cartilagini, adatte a sfamare un gran numero di persone, quasi certamente di status più umile. L’analisi di questo ricco materiale proveniente dal sito di Kromer, farebbe dedurre che i depositi di rifiuti superiori derivano per lo più dagli approvvigionamenti per le forze lavoro. Se così fosse ci si sarebbe aspettato che provenissero da HeG, ossia la Città dei Lavoratori.

In buona sostanza, restano in piedi due ipotesi sull’origine di ciò che è stato rinvenuto nel sito di Kromer – Palazzo a ovest e a nord (Edificio M) e forza lavoro a est (HeG) – che si contrappongono per la natura dei materiali e per la direzione di scarico.

Negli ultimi anni le discussioni e le pubblicazioni sui Palazzi dell’Antico Egitto (o meglio su quegli edifici che chiamiamo “palazzi”) si sono moltiplicate.

L’archeologo austriaco Manfred Bietak sottolinea che i “Palazzi” egizi, oltre ai grandi spazi pubblici, “comprendevano anche uffici, per i principali amministratori dello stato (nel caso in oggetto potrebbe trattarsi delle case della città occidentale?), caserme e arsenali per le truppe (il complesso di gallerie?) e numerose aree di stoccaggio per la raccolta e distribuzione delle merci…”

A Heit el-Ghurab è stata riportata alla luce solo parte di un insediamento proto-urbano della IV Dinastia, che un tempo era molto più esteso sia a est, sia a nord, lungo la base dell’altopiano. Altre strutture si trovano sicuramente al di sotto delle moderne costruzioni. Tutte quelle che sono state esposte potrebbero essere le parti di un unico gigantesco palazzo: una sorta di equivalente egizio di Versailles o, meglio, per rimanere nella terra dei faraoni, dei complessi del Nuovo Regno di Amarna o Malqata. Come questi, infatti, nelle sue due fasi principali, comprendeva vari appartamenti, sale e istituzioni reali.

Fonti:

  • Franck Monnier, “L’Univers Fascinant des Piramides d’Égypte”
  • Ali Radwan, “Le piramidi a gradoni” in “I Tesori delle Piramidi” (a cura di Zahi Hawass), p. 108
  • Sito del Museo Imhotep, Saqqara: http://egypte.nikopol.free.fr/musee/museeimhotepsaqq.html
  • Edda Bresciani (a cura di), “Grande Enciclopedia Illustrata dell’Antico Egitto”, p.174
  • Ancient Egypt Research Associates (AERA), sito web https://aeraweb.org/
  • Zahi Hawass (a cura di) “I Tesori delle Piramidi” p.114 e p.376
  • Mattia Mancini, Djed Medu blog di Egittologia, pubbl. 29 settembre 2016
  • Antonio Loprieno: “Lo Schiavo” in “L’uomo Egiziano” a cura di Sergio Donadoni, pag. 197
  • Mark Lehner, ANCIENT EGYPT RESEARCH ASSOCIATES (AERA), AERAGRAM Vol. 14, Primavera 2013
  • Mark Lehner e Wilma Wetterstrom, ANCIENT EGYPT RESEARCH ASSOCIATES (AERA), AERAGRAM Vol. 15, Primavera/Autunno 2014
  • Kathryn A. Bard e Rodolfo Fattovich, MERSA/WADI GAWAIS 2009-2010, in collaborazione con
  • Duncan FitzGerald, Rainer Gerisch, Christopher Hein, Dixie Ledesma, Andrea Manzo, Tracy
  • Spurrier, Sally Wallace-Jones, Cheryl Ward and Chiara Zazzaro. Newsletter di Archeologia CISA – Volume 1 – 2010
  • ANCIENT EGYPT RESEARCH ASSOCIATES (AERA), AERAGRAM Vol.19-1, primavera 2018, pagg. 6-7-8
  • Giza Plateau Mapping Project, Mark Lehner, AERA -The Oriental Institut 2017-2018 Annual Report, pagg. 81÷98
Piramidi

LA NOUVELLE DÉCOUVERTE DE SCANPYRAMIDS DANS LA PYRAMIDE DE CHEOPS

Di Franck Monnier

Traduzione di Patrizia Burlini

Franck Monnier, per chi non lo conoscesse, è un ingegnere specializzato nelle tecniche di costruzione egizie ed è tra i più importanti, seri e stimati studiosi al mondo in questo ambito.

On me pose énormément de questions sur la découverte récente faite par ScanPyramids. Je fais donc un petit point sur ce que l’on sait à l’heure actuelle et ce qu’il est raisonnable (ou pas) de déduire des informations dont on dispose.

La découverte consiste en un tunnel maçonné long de 9 mètres et large de 2,10 m et haut de 1 à 2,30 mètre environ. Celui-ci est couvert sur toute sa longueur d’une voûte en chevrons à une seule couche de blocs. Cette dernière prolonge la couche supérieure de de chevrons que l’on peut observer de l’extérieur, au-dessus de l’entrée nord.

Ce boyau démarre donc juste à l’arrière des chevrons inférieurs, ce qui signifie qu’il n’a jamais été accessible puisque condamné dès la construction de la voûte. Le boyau se termine en impasse.

Tout semble donc indiquer (je dis bien “semble”) qu’il n’avait pas fonction à offrir une communication, un passage. Il ne s’agirait pas d’un couloir. D’ailleurs, on voit bien que les blocs latéraux et le sol sont grossièrement taillés. L’un d’eux, au fond, est en net ressaut et empêche toute circulation.

Il s’agirait donc d’un espace de décharge similaire à ce que l’on observe au-dessus de la chambre du Roi de cette même pyramide, ou ailleurs à la pyramide de Meïdoum.

Il est important de signaler qu’un espace de décharge avec voûte en chevrons surmontant un couloir d’accès a déjà été relevé dans les pyramides d’Abousir (5e dynastie). Il y a donc des parallèles.

Ce qui étonne ici, ce sont ces dispositifs compliqués couvrant un couloir d’accès qui n’en demandait pas tant. Lorsque l’on reconstitue la maçonnerie d’origine (voir dessins joints), on voit bien que cette voûte en chevrons s’étend sur deux niveaux, créant une rupture entre les vides. Elle est horizontale alors que le couloir d’accès est descendant.

Soulignons que les détections n’ont rien révélé entre le couloir conduisant aux appartements et ce nouveau boyau. A priori, il n’y a rien d’autre.

Les Egyptiens concevaient leurs édifices avec pragmatisme et une connaissance des structures archaïques (avancée pour leur époque mais néanmoins archaïque). Il ne faut donc pas, à tout prix, chercher une correspondance entre ce qu’ils ont fait et ce qu’il faudrait faire au mieux (en somme, comme nous le ferions avec nos outils).

Le caractère symbolique, souvent hermétique à nos yeux, joue peut-être également un rôle non négligeable.

En quoi cette découverte est si importante ?

– Elle vient en premier lieu valider les détections de ScanPyramids, ce qui signifie que ce qui a aussi été détecté au-dessus de la grande galerie peut laisser espérer une découverte similaire.

– Elle révèle que la Grande Pyramide dispose encore d’aménagements inconnus et ça n’est pas rien.

– Et puis, qui sait, ce boyau possède peut-être quelques précieuses inscriptions laissées à l’encre rouge, similaires à celles des chambres de décharge situées au-dessus de la chambre du Roi. Attendons pour cela les rapports détaillés.

à suivre…


Sto ricevendo molte domande sulla recente scoperta fatta da ScanPyramids. Vi darò quindi un rapido aggiornamento su ciò che sappiamo al momento e su ciò che è ragionevole (o meno) dedurre dalle informazioni in nostro possesso.

La scoperta consiste in un tunnel in muratura lungo 9 metri, largo 2,10 metri e alto da 1 a 2,30 metri. Il tunnel è coperto per tutta la sua lunghezza da una volta a spina di pesce monostrato. Si tratta della continuazione dello strato superiore di travi che si vede dall’esterno sopra l’ingresso nord.

Il cunicolo inizia quindi proprio dietro le travi inferiori, il che significa che non è mai stato accessibile in quanto condannato al momento della costruzione della volta. Il pozzo termina in un vicolo cieco.

Tutto sembra indicare (dico “sembra”) che non fosse destinato a fornire una comunicazione, un passaggio. Non sarebbe un corridoio. Inoltre, possiamo vedere che i blocchi laterali e il pavimento sono tagliati grossolanamente. Uno di essi, in basso, ha una sporgenza netta e impedisce qualsiasi circolazione.

Si tratterebbe quindi di una camera di scarico simile a quello che si può vedere sopra la camera del re di questa stessa piramide, o altrove nella piramide di Meydum.

È importante sottolineare che una camera di scarico con una volta a spina di pesce sopra un corridoio di accesso è già stato trovato nelle piramidi di Abousir (V dinastia). Esistono quindi dei parallelismi.

Ciò che sorprende sono questi complicati dispositivi che coprono un corridoio di accesso che non richiedeva tanto. Se si ricostruisce la muratura originale (si vedano i disegni allegati), si vede chiaramente che questa volta a spina di pesce si estende su due livelli, creando un’interruzione tra i vuoti. È orizzontale, mentre il corridoio di accesso è verso il basso.

Va notato che i rilevamenti non hanno rivelato nulla tra il corridoio che conduce agli appartamenti e questo nuovo pozzo. In linea di principio, non c’è nient’altro.

Gli Egizi progettavano i loro edifici con pragmatismo e conoscenza delle strutture arcaiche (avanzate per il loro tempo, ma comunque arcaiche). Non dobbiamo quindi cercare a tutti i costi una corrispondenza tra ciò che facevano loro e ciò che dovremmo fare noi al meglio (insomma, come faremmo con i nostri strumenti).

Anche il carattere simbolico, spesso ermetico ai nostri occhi, gioca forse un ruolo importante.

Perché questa scoperta è così importante?

– Innanzitutto, convalida i rilevamenti di ScanPyramids, il che significa che quanto rilevato anche sopra la Grande Galleria può far sperare in una scoperta analoga.

– Rivela che la Grande Piramide ha ancora caratteristiche sconosciute, e questo non è poco.

– E poi, chissà, questo pozzo potrebbe avere delle preziose iscrizioni lasciate in inchiostro rosso, simili a quelle delle camere di scarico sopra la camera del Re. Aspettiamo i rapporti dettagliati.

Continua…

Piramidi

NUMEROLOGIA PIRAMIDALE

Di Giuseppe Esposito

Come scritto anche nella mia presentazione a questo gruppo, pur essendo un umile “badilante” dell’egittologia, me ne occupo da quasi sessanta anni. Salvo i primi approcci quasi infantili all’argomento, quando il mistero attrae e consente di “volare” nel campo della fanta-archeologia, mi sono poi sempre chiesto perché si debba ricorrere a misteri e ipotesi, le più fantasiose, per parlare di una Civiltà che, pur avendo lasciato di se una biblioteca infinita, è, di fatto, così misteriosa e complessa. Ho perciò cercato di approfondire sempre più le mie conoscenze scavando anche tra le infinite fake-news egittologiche, ma anche cercando di chiarire alcune notizie che, sensazionalisticamente prospettate in maniera superficiale o addirittura sbagliata, hanno dato degli Antichi Egizi un’immagine del tutto fuorviante e lontana dalla verità.

Una delle tante “leggende” sorte attorno alle piramidi più famose è legata alla…

Numerologia piramidale

Umberto Eco e il chiosco della lotteria

Prima di entrare nel vivo dell’argomento, tuttavia, credo interessante leggere questo brano tratto dal romanzo di un grande scrittore italiano, Umberto Eco:

«…l’altezza della piramide di Cheope è uguale alla radice quadrata del numero dato dalla superficie di ciascuno dei lati. Naturalmente le misure vanno prese in piedi, più vicini al cubito egiziano ed ebraico, e non in metri, perché il metro è una misura astratta inventata nei tempi moderni. II cubito egiziano in piedi fa 1,728. Se poi non abbiamo le altezze precise possiamo rifarci al pyramidion, che era la piccola piramide posta sull’apice della grande piramide per costituirne la punta. Era d’oro o di altro metallo che lucesse nel sole. Ora prenda l’altezza del pyramidion, la moltiplichi per l’altezza della piramide intera, moltiplichi il tutto per dieci alla quinta e abbiamo la lunghezza della circonferenza equatoriale. Non solo, se prende il perimetro della base e lo moltiplica per ventiquattro alla terza diviso due, ha il raggio medio della terra. In più l’area coperta dalla base della piramide moltiplicata per 96 per dieci all’ottava da centonovantasei milioni ottocentodiecimila miglia quadrate che corrispondono alla superficie terrestre. …»

Direi impressionante, non è vero? Ma il personaggio creato da Eco, nel suo “Pendolo di Focault”, non si limita certo a questo, infatti:

«…ci invitò ad affacciarci, e ci mostrò lontano, all’angolo fra la stradetta e i viali, un chioschetto di legno, dove si vendevano presumibilmente i biglietti della lotteria di Merano.

“…invito loro ad andare a misurare quel chiosco. Vedranno che la lunghezza del ripiano è di 149 centimetri, vale a dire un centomiliardesimo della distanza Terra-Sole.

L’altezza posteriore divisa per la larghezza della finestra fa 176/56 = 3,14.

L’altezza anteriore è di 19 decimetri e cioè pari al numero di anni del ciclo lunare greco.

La somma delle altezze dei due spigoli anteriori e dei due spigoli posteriori fa 190×2 + 176×2 = 732, che è la data della vittoria di Poitiers.

Lo spessore del ripiano è di 3,10 centimetri e la larghezza della cornice della finestra di 8,8 centimetri. Sostituendo ai numeri interi la corrispondente lettera alfabetica avremo C10H8, che è la formula della naftalina.”

“Fantastico,” dissi, “ha provato?”

“… Con i numeri si può fare quello che si vuole. Se ho il numero sacro 9 e voglio ottenere 1314, data del rogo di Jacques de Molay – data cara a chi come me si professa devoto alla tradizione cavalleresca templare – come faccio?

Lo moltiplico per 146, data fatidica della distruzione di Cartagine.

Come sono arrivato al risultato?

Ho diviso 1314 per due, per tre, eccetera, sino a che non ho trovato una data soddisfacente.

Avrei anche potuto dividere 1314 per 6,28, il doppio di 3,14, e avrei avuto 209.

Ebbene, è l’anno dell’ascesa al trono di Attalo I re di Pergamo…”»

“Con i numeri si può fare tutto”

Eh già, direi che il focus di questa disquisizione è proprio in quella frase: con i numeri si può fare quel che si vuole! ed è proprio quello che, proseguendo, vedremo è successo con l’unica tra le sette meraviglie del mondo antico ancora esistente: la piramide e, segnatamente, la piramide del re Keope (IV dinastia ~2620-2500 a.C.).

John Taylor e Charles Piazzi Smyth

“Keat’s grave” (1873), William Bell Scott (1811-1890), Preraffaelliti, olio su tela, Ashmolean Museum

«Qui giace colui il cui nome fu scritto sull’acqua», ricordate? È lo splendido epitaffio che campeggia, nel Cimitero Acattolico di Roma, all’ombra di un’altra piramide, quella di Caio Cestio[1], sulla tomba di un grande poeta: non un nome, non un rimando…

Eppure quell’anonima tomba ospita le spoglie mortali di uno dei più grandi rappresentanti del romanticismo inglese: John Keats (1795-1821).

Vi state chiedendo che c’entri un poeta romantico con l’antico Egitto? Vediamo…

Suo editore era, in Inghilterra, John Taylor (1781-1864) che, dilettandosi anche di scrittura, pubblicò, nel 1859 un libercolo dal titolo The Great Pyramid: Why Was It Built, & Who Built It?, ovvero “La Grande Piramide: perché è stata costruita e da chi?”, in cui, riferendosi a Noè, scriveva: «Fra tutti gli uomini, il costruttore dell’Arca era il più competente per dirigere la costruzione della Grande Piramide»[2].

Per sua stessa ammissione, tuttavia, Taylor non aveva mai visitato l’Egitto, né tantomeno visto la Piramide di Keope, ma si basò sulle misure prese da altri, con quale meticolosità o precisione è tutto da dimostrare. Eppure, dai numeri “di altri” e dai suoi calcoli, sostenne che nella piramide era ricorrente la costante matematica Pi (3,14…) e si riscontrava il rapporto aureo (1,61803…).

Fu l’inizio della fine, in senso numerologico, s’intende; sugli studi di Taylor, infatti, si basò un altro studioso scozzese che, in un suo lavoro, scrisse: «…le misure (n.d.r.: interne della Piramide) racchiudono in sé alcune profezie in forma cifrata, stabilendo un rapporto con gli avvenimenti che costituirono più tardi l’essenziale dell’Antico Testamento, di tutta la cristianità, fino a includere la seconda venuta di Cristo…».

E non si trattava di uno studioso qualunque giacché il suo incarico, alla Corte del Re d’Inghilterra, era quello di Astronomo Reale (titolo che conservò dal 1846 al 1888), il suo nome? Charles Piazzi Smyth (Napoli 1819-Sharow 1900). Per inciso, suo padrino, da cui il nome, fu l’astronomo italiano Giuseppe Piazzi[3], e il suo cognome, SmYth non è un errore, si chiamava proprio così e non Smith, tanto che la pronuncia inglese viene specificata come /ˈsmaɪθ/.

Pur se indicato, in alcuni lavori con “Smith”, il nome riportato sulla sua tomba conferma proprio “Smyth”.

Charles Piazzi Smyth

Ma torniamo all’opera di Piazzi Smyth che, avendo sposato la geologa Jessica Duncan[4], nel 1864 decise di intraprendere una missione di quattro mesi accampandosi nei pressi della grande Piramide di Giza. Per la prima volta, furono scattate fotografie della piramide di Keope e, per la prima volta in assoluto, fu usato il “flash” al magnesio per fotografarne l’interno. Dall’ampia corrispondenza con Taylor e dalle misurazioni e calcoli eseguiti sul luogo, Piazzi Smyth ricavò “The Great Pyramid: Its Secrets and Mysteries Revealed” (“La Grande Piramide, i suoi segreti e misteri rivelati”), in cui giunse alla conclusione che la Piramide nascondesse segreti connessi alla interpretazione della Bibbia scrivendo, tra l’altro, la frase che abbiamo sopra riportato relativa a «profezie in forma cifrata… fino ad includere la seconda venuta di Cristo».

L’elemento essenziale “scoperto” da Piazzi Smyth fu il “pollice piramidale”, equivalente a 1,001 pollici inglesi (non dimenticate questa coincidenza), con cui era possibile individuare tutte le date riportate nella Bibbia; bastava, infatti, misurare la distanza tra un punto A e un punto B, in pollici piramidali s’intende, e ottenere proprio la data voluta, assegnando ad ogni pollice il valore di un anno. Nei suoi studi ricavò, inoltre, altre misure come la “pinta piramidale”, il “cubito reale” e la “scala delle temperature piramidali”.

Quanto al “pollice piramidale” era di certo la misura divina assegnata da Dio a Sem, figlio di Noè che venne guidato, nella costruzione dell’arca, proprio dalla mano di Dio.

A conferma di tale asserto, Smyth portò il fatto che il perimetro di base della piramide (ovviamente sempre in pollici piramidali) era pari a 100 volte il numero dei giorni di un anno, ed esisteva un rapporto tra l’altezza della piramide in pollici e la distanza tra la terra e il sole… ma questa volta in miglia.

La misurazione del sarcofago della Grande Piramide da parte di “Jessie” Duncan. Una delle foto scattate con il flash al magnesio da Piazzi Smyth:

Lavorando sulle congetture di Taylor, inoltre, giunse a identificare il popolo ebraico negli Hyksos, che avevano regnato in Egitto per circa 250 anni, e i costruttori della piramide, perciò, proprio nel popolo ebraico.

Ma, e qui si potrebbe svelare l’intento politico sotteso alle dichiarazioni di Piazzi Smyth, è bene precisare che questi fu sempre un convinto oppositore dell’introduzione del sistema metrico decimale in Gran Bretagna.

Una teoria pseudo-antropo-archeologica, detta dell’“anglo-ebraismo”, risalente al XVI secolo e ancora in auge all’epoca, infatti, voleva che gli inglesi fossero i diretti discendenti delle dieci tribù perdute di Israele. In tal senso, l’adozione del pollice piramidale, data anche la quasi uguaglianza con quello inglese (ricordate? 1 pollice piramidale = 1,001 pollici inglesi), era la dimostrazione di tale discendenza e la prova che il sistema di misurazione inglese, derivante direttamente da Dio attraverso le tribù d’Israele, era perfetto, a fronte di quello metrico decimale derivante dall’ateistica terra di Francia; un’idea, peraltro, cara a Piazzi Smyth e più volte rimarcata anche in molte delle sue opere scientifiche.  

Dalle sue attività sul campo, Piazzi Smyth ricavò “Our Inheritance in the Great Pyramid” (“La nostra eredità nella Grande Piramide”), “Life and Work at the Great Pyramid” (“Vita e lavoro nella Grande Piramide”) in tre volumi, nel 1867, e “On the Antiquity of Intellectual Man” del 1868.

Inutile dire che «… la seconda venuta di Cristo…» profetizzata da Piazzi Smyth, secondo i suoi calcoli piramidali, per il 1882, non si verificò, così come a nulla valse lo spostamento che operò della data ad un imprecisato anno tra il 1892 e il 1911. Nonostante tutto, per la completezza delle misurazioni della Grande Piramide (le più complete all’epoca), e per le numerose fotografie scattate, anche in interno, Piazzi Smyth fu premiato con la Keith Gold Medal 1865-1867 dalla “Royal Society of Edinburgh[5].

Una delle tavole a corredo dell’opera di Piazzi Smyth sulle misurazioni della Grande Piramide

Nel 1874, però, aldilà della motivazione di ordine pratico, le sue teorie numerologiche furono rigettate dal mondo scientifico, così come quelle di Taylor, cosa che contribuì, nel 1888 e unitamente al titolo sarcastico di “piramidiota” con cui venne etichettato, alle sue dimissioni da “astronomo reale”.

Una delle tavole a corredo dell’opera di Piazzi Smyth sulle misurazioni della Grande Piramide

La tomba di Charles Piazzi Smyth nel cimitero di Sharow, nel North Yorkshire

Flinders Petrie

Fu così che, alla fine del XIX secolo, le teorie di Taylor e Smyth caddero nel dimenticatoio, anche perché lo stesso Taylor, nel frattempo, qualche anno dopo la pubblicazione del suo saggio “piramidologico” aveva dichiarato che il suo era stato semplicemente uno scherzo e che tutti i “numeri” che aveva dato corrispondevano “a posteriori”, un po’ come le misurazioni del personaggio di Umberto Eco con cui abbiamo iniziato questo articolo.

Come succede spesso in questi casi, pensando a un ripensamento strumentale per non perdere “clienti” (oggi parleremmo anche di teoria del “complotto”, che va tanto di moda), nessuno gli credette e le legioni di “piramidologi” si ingrossò sempre di più arricchendo, ovviamente, in primis le tasche degli “esperti” a discapito di coloro che, in perfetta buona fede, credevano e credono, a queste cose!

Sir William Matthew Flinders Petrie

Un improvviso ritorno di fiamma si ebbe con Sir William Matthew Flinders Petrie (1853 –1942), illustre egittologo inglese, iniziatore del metodo scientifico nella ricerca archeologica e nella salvaguardia dei manufatti, e primo titolare della cattedra di egittologia del Regno Unito. Grande estimatore, sulle prime, del lavoro di Smyth, ne restò poi fortemente deluso quando, nel 1880, eseguì, sul campo, nuove e più esatte misurazioni della Piramide di Keope scoprendo che la stessa era parecchi “piedi” più bassa delle misurazioni di Smyth, il che, ovviamente, inficiava tutte le misurazioni e le valutazioni precedenti, ivi compreso, e prima di tutto, il “pollice piramidale”.

Aldilà dei convincimenti personali, che ovviamente, come tali, possono essere differenti anche solo per partito preso, resta il fatto che, alla base dello scetticismo per la numerologia piramidale, c’è la mancanza di scientificità, ovvero di numeri fissi, o di riferimenti univoci, che proprio perché tali siano accettati, o accettabili, da chiunque voglia cimentarsi con i “numeri della piramide”.

Come sopra visto, Taylor non visitò mai l’Egitto, né mai vide la piramide basandosi, per le sue elucubrazioni, su numeri dati da altri; lo stesso Smyth, che pure, invece, eseguì personali misurazioni, tanto da essere per questo premiato (da chi, tuttavia quelle misurazioni non aveva fatto, né potuto controllare), basò tutti i suoi calcoli su un numero, il “pollice piramidale”, che non molto tempo dopo, si sarebbe dimostrato inesatto.

La numerologia piramidale, visti i presupposti, consente di “scoprire” tutto e il contrario di tutto, un po’ come visto nell’iniziale brano di Umberto Eco.

Inutile dire che, come fatto del resto dallo stesso Piazzi Smyth a proposito del sistema metrico decimale, la numerologia ha avuto anche il suo sfruttamento politico diventando, ad esempio, un “cavallo di  battaglia” di sètte identitarie che tendono, ancor oggi, partendo dal presupposto di una preferenza diretta assegnata da Dio, da un lato a voler dimostrare una preminenza del presunto ramo anglo-ebraico (movimento “British-Israel”) su altre culture, dall’altro, grazie alla presunta discendenza dalle tribù di Israele, a indicare i popoli celtici e anglosassoni come eletti, superiori e destinatari delle promesse di Dio.

Edgar Cayce, “il profeta dormiente”

Presso i Greci, esisteva una “tassa sulla stupidità”, può sembrare strano, ma è vero. Il blachennomio (da βλακεννόμιον = sugli stupidi e τέλος = tassa), infatti, era la tassa che indovini, auguri e astrologi dovevano pagare sulle somme percepite da chi, magari in buona fede, a loro si rivolgeva credendo nelle loro potenzialità divinatorie. Appare chiaro che, ovviamente, anche nella storia della numerologia piramidale sono emersi tanti che meriterebbero di pagarla… e profumatamente.

Tra questi, forse il più “temerario” fu il “profeta dormiente”, come si faceva chiamare poiché cadeva in lunghe trance narcolettiche, Edgar Cayce (1877-1945) che, analizzando la numerologia piramidale scoprì che, in una delle sue tante vite precedenti, si chiamava Ra-Ta, era un gran sacerdote ed era stato il responsabile, con il suo aiutante Isis e con il capo dei costruttori Ermes, della costruzione proprio della Grande Piramide cui avevano lavorato, in una sorta di consorzio internazionale, egizi, atlantidei e nomadi provenienti dall’area russa.

Edgar Cayce, “The sleeping prophet

Nella montagna di pietra costituita dalla piramide di Keope, sempre secondo Cayce, si doveva inoltre individuare il tempio presso cui Gesù era stato istruito durante i cosiddetti “anni mancanti” (ovvero quelli intercorrenti tra l’infanzia e l’inizio del suo ministero). In base alla numerologia piramidale, e alle profezie nascoste e riservate ai soli adepti, la piramide aveva inoltre lo scopo di fungere da archivio della storia umana fino al 1998, anno in cui, secondo i suoi calcoli (come si vede ben diversi da quelli di Smyth), si sarebbe verificato il secondo avvento di Cristo …

Per ulteriore curiosità, può essere utile aggiungere che, nelle sue vite precedenti, Cayce era stato (tra l’altro) un re persiano, un guerriero troiano, un discepolo di Cristo e, addirittura, un angelo che aveva preceduto Adamo ed Eva. Altre sue premonizioni furono la scomparsa improvvisa del Giappone e del Nord Europa, l’esondazione dei Grandi Laghi del nord America con allagamento di gran parte del Midwest (che, ricordo, è costituito da almeno otto Stati, se non dodici), l’improvviso sprofondamento di California e Georgia, la deriva cristiana e democratica della Cina entro il 1968 e, nello stesso anno o al massimo nel 1969, il riemergere di Atlantide e lo spostamento dell’asse terrestre, evento che avrebbe causato la fine del mondo… nel 1998.

Giuseppe Esposito

Roma, 18 novembre 2022

Bibliografia

  • (in inglese) William Fliders Petrie,  “The Pyramids and Temples of Gizeh”, ed. Histories & Mysteries of Man, 1990, Londra.
  • (in inglese) Charles Piazzi Smyth, Life and Work at the great Pyramid during the months of January, February, March, and April, A.D. 1865.
  • (in francese) Charles Piazzi Smyth, La grande pyramide, pharaonique de nom, humanitaire de fait, ses merveilles : ses mystères et ses enseignements, 1875.
  • Gina Cerminara, Edgar Cayce uomo e medium, 1975, Mediterranee.
  • Jess Stearn, Edgar Cayce, 1978, De Vecchi.
  • (in inglese) Dale Beyerstein, Edgar Cayce. In Encyclopedia of the Paranormal. Prometheus Books 1996. pp. 146–153.
  • (in inglese) Edgar Evans Cayce, On Atlantis, New York: Hawthorn, 1968.
  • (in inglese) Jess Stearn, The Sleeping Prophet, Bantam Books, 1967.

[1]    Piramide di Gaio Cestio, o Piramide Cestia, fu eretta, come sepolcro, tra il 12 e il 18 a.C., in soli 330 giorni per volere del defunto. Gaio, septemiviro Epulone, lasciò ai suoi eredi, come clausola per ottenere il suo patrimonio, proprio che la piramide fosse eretta in quei termini. Alta 36,40 m, ha un lato di base di 30; è costruita in calcestruzzo con sovrastruttura in mattoni e copertura in marmo bianco di Carrara 

[2]    In figura, la prima edizione del testo di Taylor del 1859.

[3]    Giuseppe Piazzi (1746-1826); nel 1790-91 fu il fautore della costruzione dell’Osservatorio astronomico di Palermo, nella torre di Santa Ninfa a Palazzo Reale (oggi Palazzo dei Normanni). Nel 1791 venne chiamato a Napoli per la costruzione dell’Osservatorio astronomico di quella città divenendo, poi, Direttore  di entrambi gli osservatori. 

[4]    Jessica “Jessie” Duncan (1812-1896), appassionata dei primi processi fotografici, accompagnò il marito in Egitto per i suoi studi della Grande Piramide della quale scattò centinaia di foto, esterne e interne, utilizzando, per la prima volta, il flash al magnesio.

[5]     La “Keith Medal” era, ed è tuttora, un premio, istituito dalla “Royal Society of Edinburgh” nel 1827, da destinarsi a pubblicazioni in ambito scientifico, alternatamente per matematica e in materia ambientale, con cadenza quadriennale.

Luce tra le ombre, Piramidi

L’ORGANIZZAZIONE DEI CANTIERI

Di Ivo Prezioso

La costruzione di monumenti così spettacolari richiese una minuziosa, rigorosa e, al contempo, mastodontica organizzazione del lavoro. Il personale che fu capace di realizzare queste opere titaniche, era composto da una moltitudine di addetti: tecnici, responsabili zelanti, amministratori, capi squadra, geometri,scribi, muratori, tagliatori di pietre e, infine, manovali. Si trattava, come si intuisce, di una miriade di persone che agiva principalmente per glorificare il re, ma anche per guadagnarsi, in questo modo, la propria immortalità. Fino al regno di Khaefra (Chefren), la documentazione al riguardo si riduce a laconiche indicazioni che, pur se sono riferite a qualche attore della costruzione, nulla ci dicono delle sue azioni , ma specificano solo le sue funzioni o responsabilità. Nulla ci viene rivelato riguardo alle loro concezioni, agli studi tecnici o ai progetti preparatori. Gli Alti Responsabili si mostrano un po’ più loquaci a partire dalla fine della IV Dinastia; ma la citazione di un cantiere o di una spedizione sembra essere null’altro che un pretesto per mettere in risalto i favori che avevano guadagnato presso il loro sovrano. Era prassi che le iscrizioni funerarie non facessero alcuna allusione a bozze e studi preliminari, altrimenti l’ispirazione divina delle disposizioni architettoniche sarebbe stata apertamente messa in discussione. E’ noto che durante il Nuovo Regno la conduzione ed il controllo del buon funzionamento di un cantiere avveniva secondo indicazioni e piani dettati dalla Ma’at, l’equilibrio immutabile che reggeva l’universo, e non c’è motivo di dubitare che fosse così anche durante l’Antico ed il Medio Regno.

Immagine n. 1 Ostracon con figura quotata rinvenuto nel complesso di Djoser. Museo Imhotep di Saqqara, JE50036 (© ph.Alain Guilleux da Franck Monnier “L’Univers Fascinant des Piramides d’Égypte, p. 204)

Il ritrovamento di alcuni ostraca (Immagine n. 1) dimenticati, tuttavia, ci ha rivelato delle bozze d’architettura che ci permettono di intuire elementi sulle riflessioni che venivano elaborate all’epoca . A partire dall’Antico Regno, questi tipi di schizzi e disegni preparatori erano realizzati da scribi disegnatori, letteralmente “scribi delle forme”. Quando sievocano gli individui che hanno giocato un ruolo fondamentale nella costruzione di una piramide, la prima figura storica che balza alla mente è quella di Imhotep (Immagine n. 2), l’illustre Alto Funzionario del re Djoser (III Dinastia), la cui posterità ha sfidato i millenni.

Immagine n. 2 Rappresentazione d’epoca tolemaica del savio Imhotep. Questa statuetta di epoca Tarda, costituisce una preziosa conferma della venerazione di cui godeva questo grande dell’Antichità a distanza di oltre due millenni. Museo del Louvre E4216. (© ph. Franck Monnier in “L’Univers Fascinant des Piramides d’Égypte, p.30)

Altre personalità si sono distinte dopo di lui: a partire dai suoi titoli, apprendiamo che Nefermaat (Immagine n. 3) fu a capo dei progetti architettonici del re Snefru.

Immagine n. 3 Frammenti provenienti dalla Mastaba M16 del principe Nefermaat e della moglie Atet. Il rilievo fu colmato con riempimento di paste colorate, cadute dopo l’essiccazione. Museo egizio del Cairo (da Rainer Stadelmann “Le Piramidi della IV Dinastia” in “I Tesori delle Piramidi” a cura di Zahi Hawass, pag.114)

Anche Rahotep (Immagine n. 4), suo fratellastro ricoprì sicuramente un ruolo primario quale responsabile dei lavori. 

Immagine n. 4 Statua in calcare policromo del principe Rahotep. Assieme a quella della moglie Nofret fu rinvenuta nella loro mastaba a Meidum e data alla IV Dinastia all’inizio del regno di Snefru. Museo Egizio del Cairo (da Statue reali e private dell’Antico e del Medio Regno di Houring Sourouzian in “I Tesori delle Piramidi” a cura di Zahi Hawass, pag.376)

Hemiunu (Immagine n. 5)figlio di Nefermaat, è generalmente consideratocome responsabile del progetto della piramide di Khufu(Cheope).

Immagine n. 5 Statua del visir e direttore di tutti i lavori del re, Hemiunu. Museo di Hildesheim (© ph. Alain Guilleux in Franck Monnier in “L’Univers Fascinant des Piramides d’Égypte, p.205)

I papiri recentemente scoperti a Wadi el-Jarf, provano che Ankhaef (Immagine n. 6) era stato supervisore del cantiere di re Khufu (suo fratellastro), durante gli ultimi anni del regno. Debehen, Alto Dignitario sotto Menkhaure (Micerino), fu il primo ad aver lasciato testimonianze d’attività legate alla costruzione di una piramide*.

Immagine n. 6 Busto del visir e direttore di tutti I lavori del re, Ankhaef. Museo di Boston (© ph. Alain Guilleux in Franck Monnier in “L’Univers Fascinant des Piramides d’Égypte, p.205)

La biografia di Uni (vedi https://laciviltaegizia.org/2022/06/08/sulle-tracce-di-uni/) è di una ricchezza senza uguali riguardo alla descrizione delle attività di un Alto Funzionario implicato nella costruzione di una piramide.

L’incarico di “responsabile dei lavori” veniva generalmente affidato al Visir, seconda carica dello Stato dopo il re, ma l’enorme mole di azioni da intraprendere gli lasciava di certo ben poco tempo per dedicarsi alla stesura dei progetti e alla messa a punto delle tecniche costruttive. Pertanto, per soddisfare i progetti più ambiziosi, un sovrano si aspettava che il suo ministro fosse in grado di circondarsi dei tecnici e dei dirigenti più competenti: i più talentuosi, in pratica, per portare a compimento l’impresa. I progetti più titanici, realizzati nell’arco di meno di un secolo, mai avrebbero potuto vedere la luce senza una vera e propria politica di ricerca di talenti, di sviluppo e soprattutto promozione. Le biografie mettono in risalto costantemente quegli individui che, essendosi distinti per la loro condotta, avevano conquistato il favore del sovrano, che non esitava a ricompensarli per il loro servizio. Era quindi importante introdurre una dinamica nel funzionamento di questi organismi, che contavano decine di migliaia di lavoratori, perché il tempo a disposizione era poco. Si intuisce, dai nomi dati a certe squadre o divisioni, che la competizione era uno dei loro fattori di motivazione: “squadra vigorosa”, “la duratura”, “possente è la corona bianca di Khnum-Khufu”

* Un certo Debehen, ciambellano, lasciò una testimonianza scritta sulla visita al cantiere funerario fatta dal suo sovrano. La sua tomba fu costruita nel cimitero centrale come ricompensa per i suoi servigi: <<quanto a questa mia tomba, è il re dell’Alto e del Basso Egitto Menkhaure, che viva eternamente, che me ne assegnò il luogo. Accadde che [Sua Maestà si trovava sulla] strada accanto alla tomba reale per ispezionare il lavoro di costruzione della piramide “Menkhaure è divino”; e il Maestro Reale dei muratori con [due] Artigiani dell’Altissimo e gli operai incaricati [vennero] a ispezionare il lavoro di costruzione del tempio. Poi misero cinquanta uomini a svolgere il lavoro in ogni giorno, e il completamento del luogo di imbalsamazione era destinato a loro…>> (Traduz. Alessandro Roccati)

L’ARCHITETTO IMHOTEP

Prima di proseguire nel percorso illustrativo dell’organizzazione dei cantieri egizi, mi sembra doveroso spendere qualche parola su quella straordinaria figura che fu l’architetto Imhotep. Per chi volesse approfondire ulteriormente la poliedricità di questo genio dell’Antichità consiglio vivamente una visita a questo link: https://laciviltaegizia.org/2022/10/29/imhotep/dove il nostro Andrea Petta e Franca Napoli ci illuminano su Imhotep in qualità di medico.

E’ arcinoto che fu un illustre Alto funzionario del re Djoser (III Dinastia) e la sua fama ha sfidato i millenni. Fu divinizzato a partire dal Nuovo Regno e la sua mitica reputazione si è propagata in tutto il bacino del Mediterraneo fino, addirittura, a costituire un riferimento nei riti alchemici e massonici durante il Rinascimento. Di quest’uomo, a cui è attribuita l’invenzione della pietra da taglio ed il suo primo utilizzo su larga scala, l’unico documento pervenutoci della sua epoca è una menzione inscritta sullo zoccolo di una statua che attesta la sua esistenza e le sue alte cariche sotto il regno di Djoser, conservata presso il Museo Imhotep di Saqqara*: “Il cancelliere del re del Basso Egitto, il primo dopo il re dell’Alto Egitto, l’amministratore della grande proprietà, il nobile ereditario, il gran sacerdote di Eliopoli, Imhotep; carpentiere costruttore, scultore incisore, produttore di vasi.” (Immagini nn. 1-2)

Immagine n. 1 Zoccolo di una statua del re Djoser (designato nel serekh col nome di Horo “Netjerikhet”) della quale non restano che i piedi. Proviene da un piccolo santuario situato a sud del colonnato di ingresso del complesso funerario. Il sovrano calpesta i Nove Archi (simbolo dei nemici dell’Egitto). Sono visibili anche gli uccelli Rekhit che rappresentano il popolo egizio. (© Museo Imhotep di Saqqara, JE49889)

Immagine n. 2 Particolare della zoccolatura in cui è visibile, dopo la titolatura di re Djoser, quella di Imhotep. (© Museo Imhotep di Saqqara, JE49889)

La sua titolatura ci consente di vedere in lui l’ideatore del grande complesso funerario di Djoser.

In ogni caso, riguardo a questa epigrafe, secondo Ali Radwan, si possono cogliere i seguenti dettagli:

1. Non si tratta della “firma” di Imhotep

2. É l’unica menzione, ad oggi nota, dell’architetto nell’intero complesso di Djoser.

3. L’ultimo titolo inciso, qualifica Imhotep come scultore (gnwty), il che lascia supporre che fosse l’esecutore di questa e forse anche di tutte le altre statue del re.

4. L’ipotesi di Standelmann che sostiene che Imhotep fosse figlio di Djoser è difficile da accettare, in quanto neppure i figli di un sovrano godevano di un simile privilegio.

5. Si tratta, comunque, di un caso veramente eccezionale e denota la grande onorificenza tributata ad Imhotep per le sue capacità e il suo successo senza precedenti.

Nel complesso di Djoser (Immagini n. 3-4-5-6-7) è ancora possibile ammirare gli straordinari esiti raggiunti da Imhotep, la cui principale e più difficile impresa fu quella di creare una nuova architettura in pietra che riproducesse con precisione i precedenti materiali da costruzione (mattoni, legno, stuoie, canne, ecc.). Anche se non sono presenti colonne indipendenti, quelle incassate, fascicolate o scanalate e soprattutto le semicolonne a papiro, sono i primi esempi del genere nell’architettura egizia. Il complesso rimase un modello per le generazioni a venire non solo per l’uso della pietra come unico materiale da costruzione, ma anche per la perfezione raggiunta con la nuova tecnica. A titolo esemplificativo si pensi che i rilievi della tomba sud furono copiati in epoca saitica (circa due millenni dopo!!!!).

Immagine n. 3: In questa ampia veduta panoramica, ripresa da sud-est, la Piramide a gradoni di Djoser compare insieme a tutte le costruzioni del complesso (© I tesori delle Piramidi, pp.102-103)

Immagine n. 4: Il muro di recinzione modanato e l’ingresso del complesso di Djoser imitano probabilmente la facciata di un palazzo in mattoni crudi del Basso Egitto (© I tesori delle Piramidi, pp.104-105)

Immagine n. 5: Dettaglio delle ricostruite cappelle sud che sorgono lungo il muro occidentale del cortile dell’heb-sed. (© I tesori delle Piramidi, p.107)

Immagine n. 6: Relativamente ben conservata, la facciata del padiglione del sud presenta alcune parti di colonne scanalate e il cosiddetto fregio “kheker”, che sovrasta l’entrata (© I tesori delle Piramidi, p.109)

Immagine n. 7: Colonnato di ingresso visto dalla corte interna (© Franck Monnier, “L’Univers Fascinant des Piramides d’Égypte”, p.29)

Gli sforzi scientifici nel sito furono iniziati da Cecil Mallaby Firth e James Edward Quibell, ma furono portati avanti e completati, per la maggior parte da Jean-Philippe Lauer. Per anni il compito più faticoso e straordinario di questo appassionato egittologo fu il restauro dei diversi elementi architettonici sparsi intorno al sito e la loro ricollocazione nella posizione originaria. Si può ben dire che i suoi sforzi abbiano prodotto la ricostruzione più ambiziosa e meglio riuscita nella storia dei lavori sul campo in Egitto. E’ proprio il caso di dire che re Djoser sia stato davvero fortunato ad avere due architetti interamente votati a lui: Imhotep, durante la sua vita, e Lauer nei tempi moderni!

Nell’Antico Egitto non esisteva una qualifica di “architetto” propriamente detto: si qualificavano gli individui che svolgevano queste funzioni come responsabili dei lavori”. . Tuttavia, non si sa se Imhotep avesse questo appellativo, che in seguito fu molto comune tra i funzionari che avevano il compito di supervisionare il cantiere in nome del re.

Nel Nuovo Regno fu considerato un semidio, patrono degli scribi e personificazione dell’uomo saggio, figlio del dio Ptah.

In epoca saitica (XXVI dinastia, 664-525 a.C.) gli fu dedicato un tempio nei pressi del Serapeum a Saqqara e, nella regione menfita, fu considerato un dio guaritore. Le numerose statuette votive lo raffigurano seduto con un rotolo di papiro steso in grembo (Immagine n. 8 ).

Immagine n. 8 Una delle tipiche rappresentazioni del leggendario architetto Imhotep lo ritrae assiso mentre srotola un papiro, per dare risalto alla sua condizione di saggio. Il copricapo a calotta gli conferisce l’aspetto del dio Ptha, considerato suo padre. Museo Egizio del Cairo (© I tesori delle Piramidi, p.88)

Gli Egizi di epoca tarda gli riconoscono le qualità di un genio universale sulla base di una tradizione che dovette essere, senza alcun dubbio, sia orale che scritta. Un’inscrizione del tempio di Edfu riconosce in questo sapiente l’autore di una grammatica della costruzione, una guida per costruire un edificio perfetto.

Imhotep fu assimilato al dio greco della medicina, Esculapio e svolgeva la funzione di intermediario tra gli dei e gli uomini, intercedendo per i problemi più disparati: parti difficili, esorcismi contro i demoni, ecc. La popolarità del suo culto perdurò per tutta l’epoca greco-romana, quando divenne, con il nome di Imuthes, il protagonista di alcuni scritti di filosofia ermetica.

Si ritiene che la tomba di questo genio dell’antichità possa trovarsi presumibilmente a Saqqara nord, ma, a tutt’oggi, ancora non è stata trovata.

Purtroppo, non esiste, al momento, alcun altro documento che ci permetta di fornire una vaga idea delle alte imprese di questo celebre personaggio.

Voluto da Jean Philippe Lauer (Parigi, 7/5/1902 – 15/5/2001), il Museo Imhotep è stato inaugurato nell’aprile del 2006 dalla Sig.ra Moubarak e Chirac). Lauer ha lavorato sul sito di Saqqara tra il 1926 ed il 2001 e, anche se il progetto che aveva immaginato non è esattamente quello che vediamo attualmente, bisogna riconoscere che i reperti presentati sono di qualità (privilegiata rispetto alla quantità) decisamente buona.

IL QUARTIERE DEGLI OPERAI

Le squadre erano strutturate e molto gerarchizzate. Si contavano divisioni i cui effettivi ammontavano fino a 2.000 unità. Ogni divisione era ripartita in due gruppi di 1.000 individui (aperu), ciascuno dei quali composto a sua volta da cinque “phylés” (sa) di duecento operai. Secondo i calcoli di Mark Lehner, affinché la Grande Piramide fosse completata nei tempi stabiliti bisognava consegnare e depositare almeno cinque blocchi al giorno, vale a dire un blocco ogni due ore (presumendo una giornata lavorativa di 10 ore). In quest’ottica sarebbe stato necessario mobilitare 1.360 lavoratori per il loro trasporto. Siccome ogni gruppo era formato da 1.000 individui si capisce bene che questo numero poteva essere elevato senza alcuna difficoltà a 2.000, vale a dire l’equivalente di un’intera divisione. Circa un altro migliaio di uomini poteva essere impiegato nel taglio e nell’adattamento dei blocchi. A queste stime vanno aggiunti gli artigiani impegnati nella produzione e riparazione degli attrezzi, i cavatori, il personale incaricato di nutrire e rifornire quest’esercito di lavoratori: un totale, valutato da Mark Lehner in almeno 20.000 anime. Tra l’altro questo numero non prende in considerazione la popolazione impegnata nella produzione e distribuzione delle derrate alimentari, né gli operai ed i trasportatori impiegati lungo le vie di spedizione. Il quadro relativo al cantiere non era perciò ristretto al solo sito di costruzione, ma riguardava l’intero territorio. Per poter gestire un così elevato numero di effettivi, gli Egizi dovettero gettare le basi della logistica, intesa come vera e propria scienza a parte, basandosi sul loro rigore amministrativo e contabile.

A Giza, non lontano dal cantiere, nel luogo denominato Heit el-Gurab, alloggiava una considerevole massa umana. Nel 1988, Mark Lehner e l’ Ancient Egypt Research Associates (AERA) hanno scoperto un sito nei pressi della Sfinge che si è rivelato essere un vasto insediamento che un tempo serviva come base operativa per la costruzione dei grandi complessi piramidali. (Immagini nn. 1,2,3,4,5,6,7,8 )

Immagine n. 1 Una mappa dell’altopiano di Giza che mostra sia le caratteristiche antiche (in grigio) che le caratteristiche e la topografia moderne (marrone).(© AERA)

<<Nel dicembre 1988, abbiamo iniziato a scavare in un sito, precedentemente sconosciuto, a 400 metri a sud della Sfinge, vicino a un monumentale muro di pietra, noto in arabo come Heit el-Ghurab (lett.”Muro del Corvo”). L’installazione, risalente alla IV dinastia, che abbiamo scoperto si è rivelata essere un insediamento urbano che si estendeva su più di 7 ettari. Costruita appositamente dall’ amministrazione reale, questa città servì come base operativa per la costruzione dei grandi complessi piramidali dei re Menkaure, Khafre e probabilmente Khufu. La sua numerosa popolazione di lavoratori, artigiani, dirigenti e amministratori lavorava direttamente o indirettamente per l’unico obiettivo di erigere la dimora eterna del proprio re.

Immagine n. 2 Pianta del sito di Heit el-Ghurab, la “Città perduta delle piramidi”.(© AERA)

Questa vasta città non solo ospitava gli operai che costruivano i complessi piramidali, ma anche coloro che sostenevano la città e la sua forza lavoro. Qui gli artigiani realizzavano le statue e gli arredi per i templi, nonché gli strumenti e le attrezzature per la realizzazione vera e propria delle strutture funerarie, mentre il personale di supporto lavorava per fornire alla città viveri e generi di prima necessità. Le strade e i vicoli del villaggio erano fiancheggiati da botteghe artigiane, cortili industriali, panifici, dispensari, cucine, magazzini, casette e residenze signorili,uffici per gli amministratori di cantiere.

Immagine n. 3 Una ricostruzione degli antichi monumenti, insediamenti e corsi d’acqua dell’altopiano di Giza durante la IV dinastia. (© AERA)

Le materie prime provenienti da tutto l’Egitto affluivano nel sito per costruire, arredare e decorare i complessi piramidali e per produrre cibo, vestiti, ripari, strumenti e attrezzature da destinare alla forza lavoro. Durante l’annuale inondazione del Nilo, questi materiali venivano traghettati in barca fino alle porte della città su corsi d’acqua (ormai estinti da tempo), mentre altre volte vi venivano trainati da uomini e animali. Enormi silos reali si trovavano in un grande complesso dove il grano veniva distribuito per creare la birra e il pane utilizzati per nutrire questa massiccia forza lavoro.

Immagine n. 4 Il sito durante la stagione di scavo del 2000. Gran parte del lavoro di quell’anno ha comportato lo sgombero di un’enorme coltre che copriva il sito, come si può vedere dalle “falesie” risultanti ai margini degli scavi. (© AERA)

Con il completamento della piramide di Menkaure, questo grande e trafficato insediamento fu dismesso e demolito. Gli strumenti, le attrezzature e le provviste ancora in uso furono portate via, mentre travi e mattoni di fango furono smontati per essere riutilizzati altrove, lasciando crollare muri e tetti. Il fatto che questo sito sia stato utilizzato per un periodo di tempo così breve lo rende prezioso per noi come capsula del tempo dei costruttori di piramidi>>.

Immagine n. 5 Una foto (con annotazioni) degli scavi nell’area AA-Sud scattata durante la stagione 2015 che mostra come furono utilizzate le diverse aree dell’edificio. (© AERA)

Gli scavi qui condotti (e tuttora in corso) hanno fornito una grande quantità di informazioni sia sulla costruzione delle piramidi di Giza sia sullo sviluppo dello Stato egiziano. I team diretti da Mark Lehner, nel quadro del “Giza Plateau Mapping Project”, hanno riportato alla luce le vestigia di una serie di lunghe gallerie coperte, ognuna delle quali, si suppone, potesse ospitare da 40 a 50 individui. Questi grandi spazi servivano da parti comuni per proteggere le squadre durante la notte. Altri, ambienti avevano invece lo scopo di radunarle al momento dei pasti. Si è calcolato che non meno di 2000 operai venivano presi in carico dallo Stato in maniera continuativa, inquadrati attraverso un’ amministrazione che risiedeva non lontano dal villaggio. Il tutto era così meticolosamente organizzato e ad un livello tale che non è certo esagerato evocare una dimensione di tipo industriale. Gli scavi più recenti hanno rivelato degli strati più antichi, il che lascia intuire che l’insediamento esistesse già dai tempi di Cheope: si spera di poter riportare alla luce delle iscrizioni che lo attestino con assoluta certezza.

mmagine n. 6 Una ricostruzione 3D dell’unità abitativa 1 nella città occidentale. Il nucleo della casa, la camera padronale e il salone di rappresentanza, sono circondati da spazi molto probabilmente adibiti a deposito e lavoro. In questa veduta gli scribi sono al lavoro, mentre in cucina si prepara il cibo. (© AERA)

Del resto, una squadra tedesca, incaricata di studiare il sito di Dahshur, ha recentemente scoperto l’esistenza di strutture del tutto simili. Le misurazioni magnetiche hanno rivelato che le tracce reticolari rilevate per lungo tempo a sud della Piramide Rossa di Snefru nascondono i resti delle strutture murarie oblunghe che, senza dubbio, ospitavano i costruttori. Per cui si è certi che installazioni di questo tipo erano in uso almeno già all’epoca del predecessore di Cheope.

Immagine n. 7 Queste due gallerie (III.3 e III.4) sono divise da un massiccio muro che corre tra di loro. Le zone in primo piano potrebbero essere servite da abitazione, forse per un sorvegliante. (© AERA)
Immagine n. 8 Le gallerie potrebbero essere state originariamente coperte da grandi volte a botte come mostra questa ricostruzione. Qui la parete frontale è stata rimossa per mostrare i solai incastonati sotto le volte e le persone (e i loro animali) al lavoro su due livelli e sul tetto. (© AERA)

SCHIAVI AL LAVORO?

In linea generale si può definire “schiavo” un essere umano inteso come proprietà privata di terzi e privato di qualsivoglia diritto riconosciuto ad una persona libera. L’immagine biblica di migliaia di schiavi piegati sotto i colpi di frusta degli aguzzini egizi (Immagine n. 1), immortalata prima da artisti e poi dalla cinematografia hollywoodiana, ha contribuito a generare convinzioni tenaci e tuttora difficili da rimuovere dall’immaginario comune. Tanto che anche i recenti studi sulla società e l’amministrazione egiziana incontrano resistenze e difficoltà nel tentativo di correggere questa visione. E’ pur vero che, impegnati a ristabilire la verità o comunque un quadro più aderente a quella che poteva essere la realtà operativa di una società così lontana nel tempo (e nelle concezioni), diventa irresistibile la tentazione di pronunciarsi in ipotesi diametralmente opposte. Accade, infatti che per combattere credenze così radicate, alcuni storici non esitano ad affermare che le piramidi furono costruite unicamente da professionisti remunerati e liberi salariati. In realtà, anche una simile affermazione è piuttosto fuorviante e, come spesso accade è saggio considerare che la verità, probabilmente, si colloca in qualche parte tra le convinzioni più contrastanti. Vediamo dunque cosa si può osservare in merito.

Immagine n. 1 Lo stereotipo biblico degli egizi che percuotono i loro schiavi. Edward Pointer, Israele in Egitto, olio su tela, 1867. (©Sir Georges Touche, 1921 in Franck Monnier “L’Univers Fascinant des Piramides d’Égypte, p.206)

La massa impegnata nei compiti più gravosi ed usuranti era composta da individui abituati a questo tipo di lavori: si tratta di operai non qualificati, sicuramente retribuiti come era consueto per persone di quel rango; vale a dire con salari che consentivano lo stretto necessario (o poco più) per il nutrimento, il vestiario, ecc. Inoltre, pensare che il lavoro venisse presentato loro come un’offerta che si potesse anche rifiutare è un idea che bisogna immediatamente respingere. Accadeva, infatti, che la stagionalità del lavoro nei campi liberasse un’ingente parte della popolazione durante alcuni mesi. Per trarre vantaggio da questa situazione veniva introdotta una corvée, una sorta di servizio obbligatorio. Nondimeno, il “villaggio degli operai” di Giza ha rivelato, come abbiamo visto in precedenza, che migliaia di persone vi dimoravano durante l’intero corso dell’anno e che il cantiere rimaneva operativo in maniera ininterrotta. Relazioni e testimonianze successive ci informano dell’intervento regolare di truppe dell’esercito durante l’esecuzione di lavori particolarmente imponenti. Non c’è da sorprendersi, in realtà, che queste fossero utilizzate come rinforzi quando il Paese non era impegnato in attività militari. In caso contrario, e per non vessare la popolazione, i sovrani potevano organizzare delle campagne in terre straniere e riportarne migliaia di prigionieri. Le campagne operate da Snefru in Nubia (Immagine n. 2) o da Amenemhat nel Vicino Oriente, ne costituiscono esempi perfetti.

Immagine n. 2 Estratto dagli annali della Pietra di Palermo dove sono menzionati avvenimenti del regno di Snefru (©Franck Monnier “L’Univers Fascinant des Piramides d’Égypte, p.207)

In questo caso diventa molto più delicato considerare dei prigionieri come lavoratori cui venissero riconosciuti i diritti ordinari; sembrerebbe, piuttosto, che la loro condizione presentasse almeno qualche affinità con quella degli schiavi. Anche perché (opinione personale) il lavoro obbligatorio imposto agli egiziani quando i campi erano impraticabili, oltre che retribuito, forse, in misura leggermente migliore del solito, veniva affrontato con una ben diversa partecipazione, grazie alla convinzione (ampiamente propagandata) che si operasse per la gloria del sovrano. Una motivazione che è facile intuire, non aveva alcuna ragione di esistere per dei prigionieri.

In definitiva, se si eccettuano i responsabili e i capi squadra, si può concludere che il cantiere di una piramide si componeva di artigiani e operai qualificati da una parte e da una grande massa di manovali, più o meno costretti, in cui la proporzione di prigionieri dipendeva dall’attività militare del regno.

Come si diceva, l’immagine di migliaia di individui impegnati a trascinare blocchi a suon di scudisciate è probabilmente quella che più si fa strada nella mente di chi pensa all’Antico Egitto. Si è istintivamente portati a credere che le piramidi, ma anche tutti i colossali monumenti che costellano la Valle del Nilo, siano stati realizzati grazie al massiccio impiego di schiavi vessati e maltrattati. Una simile impressione è chiaramente veicolata dall’influenza di certa letteratura, che risente di interpretazioni errate dovute agli storici del passato, poi trasferite anche nell’ arte e nella cinematografia. L’ Antico Testamento, in particolare con il libro dell’ Esodo, ha di certo avuto una gran peso nella diffusione di questa convinzione, ma comunque i fatti narrati non c’entrano nulla con le piramidi (che erano antiche già di almeno un millennio all’epoca dei fatti narrati) e di fatto gli israeliti erano per lo più impiegati nella produzione di mattoni crudi (Immagini n. 3-4).

Immagine n. 3 Operai impiegati nella fabbricazione di mattoni crudi,Tomba di Rekhmira, XVIII dinastia. (© Émile Prisse d’Avennes, 1878 in Franck Monnier “L’Univers Fascinant des Piramides d’Égypte, p.207)
Immagine n. 4 Fabbricanti di mattoni, muratori e scultori. Da Ippolito Rosellini, tavola XLIX dei “Monumenti civili” in Monumenti dell’Egitto e della Nubia, 1832-1844 (©Grande Enciclopedia Illustrata dell’Antico Egitto a cura di Edda Bresciani, pag. 186)

Probabilmente, la prima fonte dell’equivoco è da far risalire ad Erodoto, lo storico e viaggiatore greco (V sec. a.C.) che, al cospetto delle immani dimensioni delle piramidi, concluse, influenzato anche dai racconti dei contemporanei (ma le piramidi all’epoca del suo viaggio in Egitto avevano già all’incirca duemila anni!), che un simile progetto non potesse essere che il parto della mente di un sovrano dispotico e crudele. Da quel momento Cheope divenne il prototipo del tiranno assoluto, sebbene il suo culto, ancora attestato durante la XXVI Dinastia (672-525 a.C.) sembrerebbe smentire una così cattiva reputazione da parte degli egizi.

Tornando al nodo centrale dell’argomento, e per forza di cose riassumendo e semplificando al massimo una questione che meriterebbe ben altro approfondimento, mi sembra molto interessante il lavoro di Antonio Loprieno (nonostante sia risalente, credo, a oltre 30 anni fa) che fa notare come in una società come quella egizia, in cui il documento scritto pervade l’intera sfera comunicativa del singolo e dello Stato, manchi del tutto una codificazione dello status di “schiavo”*. Inoltre, nel corso di una civiltà che è stata protagonista per tre millenni ed oltre, bisogna tener conto dei mutamenti e delle evoluzioni etiche, sociali, politiche e di pensiero che si sono verificate, pur nella sua apparente (ma, appunto, solo tale) sostanziale immutabilità. Pertanto, sembra molto appropriata la scelta dell’autore di valutare i cambiamenti che hanno investito anche questa categoria umana nel corso delle varie epoche. Da una simile analisi si comprende, ad esempio, che nel Nuovo Regno, in particolare a seguito delle numerose campagne di espansione dell’Impero, sia divenuto più consistente l’impiego di individui assoggettati.

Ancora, Edda Bresciani, ci informa che nell’Antico Egitto esistevano certamente persone tenute a servire un’istituzione o un privato, avendo perduto la condizione di uomini liberi; tuttavia esse conservavano comunque il diritto a possedere beni, la possibilità di affrancamento e perfino quella di guadagnare una posizione più elevata nella scala sociale. Coloro che rientravano in questa categoria, per molti aspetti simile a quella dei “servi della gleba”, erano i cosiddetti “smdt” (soggetti) e gli “ḥmw” (servitori). Soltanto dall’Epoca Tarda, e particolarmente in quella tolemaica (304-30 a.C.), e siamo già in un Egitto che fa i conti con la cultura ellenistica, troviamo la categoria dei servitori “bak” (per lo più prigionieri di guerra e debitori), che possono essere considerati “schiavi” in senso stretto.

In definitiva, anche se non si può negare che nell’Antico Egitto si sia fatto ricorso all’impiego di materiale umano più o meno assoggettato e con livelli di costrizione più o meno severi, si può escludere che quella fu una società che abbia basato la sua natura etica, sociale, politica e culturale sul massiccio ricorso alla schiavitù, almeno per come la intendiamo noi. Siamo ben lontani, comunque, da crudeltà cui furono sottoposti, ad esempio, gli schiavi romani**, o in tempi più recenti i neri africani deportati nelle Americhe i quali oltre ad essere sottoposti a lavori massacranti, venivano privati, in pratica, finanche dello status di “uomini”.

In Egitto, mi preme ricordarlo, esisteva, invece, un limite etico che la “Ma’at”, imponeva a qualsiasi abitante della Valle del Nilo.

Antonio Loprieno: “Lo Schiavo” in “L’uomo Egiziano” a cura di Sergio Donadoni, pag. 197

** Dione Cassio, Senecae Plinio raccontano, ad esempio, che nella villa di Pausylipon (Posillipo, Immagine n. 5), il proprietario, Publio Vedio Pollione, onoratissimo di avere come ospite l’imperatore Augusto, avesse ordinato di gettare in pasto alle murene il suo coppiere, resosi reo di aver rotto un prezioso calice di vetro. Solo l’intervento di Augusto, rimasto esterrefatto da una simile dimostrazione di crudeltà, salvò la vita dello sventurato; non solo ma ordinò che fosse mandata in frantumi l’intera collezione di Pollione.

Immagine n. 5 Pausilypon (in greco, lett. “Una tregua agli affanni”), la Villa di Publio Vedio Pollione a Napoli. Della crudeltà di questo ricco possidente romano, appartenente alla famiglia beneventana dei Vedii, ci raccontano Dione Cassio, Seneca e Plinio. Un esempio di quanto potesse essere diversa la considerazione nei confronti di uno schiavo nell’Antica Roma, rispetto all’Antico Egitto. (© sito Romano Impero, sezione Ville Italiche https://www.romanoimpero.com/…/villa-del-pausilypon…

FONTI:

  • Franck Monnier, “L’Univers Fascinant des Piramides d’Égypte”
  • Ali Radwan, “Le piramidi a gradoni” in “I Tesori delle Piramidi” (a cura di Zahi Hawass), p. 108
  • Sito del Museo Imhotep, Saqqara: http://egypte.nikopol.free.fr/musee/museeimhotepsaqq.html
  • Edda Bresciani (a cura di), “Grande Enciclopedia Illustrata dell’Antico Egitto”, p.174
  • Ancient Egypt Research Associates (AERA), sito web https://aeraweb.org/
  • Zahi Hawass (a cura di) “I Tesori delle Piramidi” p.114 e p.376
  • Mattia Mancini, Djed Medu blog di Egittologia, pubbl. 29 settembre 2016
  • Antonio Loprieno: “Lo Schiavo” in “L’uomo Egiziano” a cura di Sergio Donadoni, pag. 197
  • Mark Lehner, ANCIENT EGYPT RESEARCH ASSOCIATES (AERA), AERAGRAM Vol. 14, Primavera 2013
  • Mark Lehner e Wilma Wetterstrom, ANCIENT EGYPT RESEARCH ASSOCIATES (AERA), AERAGRAM Vol. 15, Primavera/Autunno 2014
  • Kathryn A. Bard e Rodolfo Fattovich, MERSA/WADI GAWAIS 2009-2010, in collaborazione con
  • Duncan FitzGerald, Rainer Gerisch, Christopher Hein, Dixie Ledesma, Andrea Manzo, Tracy
  • Spurrier, Sally Wallace-Jones, Cheryl Ward and Chiara Zazzaro. Newsletter di Archeologia CISA – Volume 1 – 2010
Mai cosa simile fu fatta, Medio Regno, Piramidi

LA PIRAMIDE DI AMENEMHAT III

o “Piramide Nera”

Di Grazia Musso

Nome antico sconosciuto

Altezza originale 81,5 metri

Lunghezza del lato 105 metri

Inclinazione 57°15’50”

La piramide di Amenemhat III, figlio di Sesostri III, è detta comunemente ” Piramide nera” per il fatto che venne costruita utilizzando materiali scuri come mattoni crudi e basalto e la sua massa nera irregolare, risalta sulla linea dell’orizzonte.

Il Pyramidion, in basalto

La piramide, scavata da Jacques De Morgan tra il 1894 e il 95 che ne ritrovò anche il pyramidion in basalto, esposto oggi al Museo del Cairo, è dotata di un complesso funerario che conteneva un grande sarcofago in granito rosa, la cui entrata è situata al di fuori della cinta della piramide, in corrispondenza dell’angolo sud-orientale.

Sul lato nord vennero ritrovati anche dodici pozzi funerari destinati ai membri della famiglia reale, in uno dei quali venne sepolto il re Hor- Auibra della XIII Dinastia, celebre per la bellissima statua lignea raffigurante il suo ka, conservata al Museo del Cairo.

La piramide non venne mai usata come sepoltura reale, perché Amenemhat III si fece costruire una seconda piramide ad Hawara nel Fayyum, ove fu inumato.

Fonte

Pirami d’Egitto – Alberto Siliotti – Edizioni White Star

Mai cosa simile fu fatta, Medio Regno, Piramidi

LA PIRAMIDE DI SESOSTRI III

Di Grazia Musso

Altezza originale 78,5 metri

Lunghezza del lato 105 metri

Inclinazione 56°18’35”

Pianta del complesso di Sesostri III
A -.piramide di Sesostri III
B- ingresso
C- vestigia della cappella est
D- vestigia della cappella nord
E- pozzo
F – mastabe delle principesse
G- mastabe meridionali
H- cortile
I- rampa
J – sotterraneo delle barche

Questa cintura in oro e ametista e la cavigliera appartenevano al corredo funerario della principessa Mereret, figlia di Sesostri III.
Le perle di ametista in doppia fila sono intervallate da doppie teste di felino, in oro. Museo Egizio del Cairo

È la più settentrionale delle piramidi di Dahshur, costruita in mattoni crudi per Sesostri III, quinto re della XII Dinastia.

Come tutte le piramidi del Medio Regno era in origine rivestita di lastre di calcare di Tura, oggi completamente scomparse.

Questo pettorale appartiene alla principessa Sat-Hathor, figlia di Sesostri II e sorella di Sesostri III. Al centro del gioiello, a forma di cappella, si trova il cartiglio di Sesostri II, a fianco del quale si trovano due Falconi con la doppia corona che simboleggia o al tempo stesso il dio Hoto e il re. Museo Egizio del Cairo

La piramide attualmente è molto degradata che ha assunto l’aspetto di un vasto cratere alto circa 30 metri, inoltre il suo nucleo venne tagliato in due da una grande trincea, scavata dai primi esploratori Richard William H. Vyse e John Shea Perring nel 1839, per entrare all’interno della piramide.

Pettorale a forma di cappella in oro con ametiste, turchesi, lapislazzuli, cornaline e paste vitree appartenente al corredo funerario della principessa Mereret.
Nekhbet sovrasta i cartigli di Amenembat III, al fianco dei quali il re è raffigurato mentre massacra i nemici. Museo Egizio del Cairo

L’accesso agli appartamenti funerari è situato non più sul lato nord, ma su quello ovest, dove si trova un pozzo che conduce alla camera funeraria, nella quale venne ritrovato un grande sarcofago in granito.

Un secondo pozzo, situato presso l’angolo nord-est e scoperto da Jacques De Morgan nel 1894, è connesso con un complesso di quattro tombe di regine e principesse delle quali quelle di Sat Hathor e Mereret hanno fornito uno splendido corredo funerario, oggi esposto al Museo del Cairo.

Anello di Sesostri III

In corrispondenza del lato sud della piramide De Morgan scoprì anche tre mastabe , in due delle quali riuscì ad entrare e un sotterraneo a sud-ovest della piramide che conteneva sei barche in legno.

Barca in legno trovata , con altre cinque, all’interno del sotterraneo a sud-ovest della piramide

Nel 1990 la missione del Metropolitan Museum of Art di New York, sotto la direzione di Dieter Arnold, ha intrapreso una serie di scavi sistematici su quest’area, che hanno portato, nel 1994, al ritrovamento dell’entrata di una delle tre mastabe scoperte da De Morgan sul lato sud, appartenente alla regina Khnemet-nefer-heget-weret, madre di Sesostri III, che conteneva un ricco corredo di gioielli, comprendente tra i pezzi più interessanti, due braccialetti con i pilastri -ged e due scarabei in ametista con inciso il nome di Amenembat II.

Nell’anno successivo, la stessa missione, ha scoperto due nuove mastabe situate a nord della piramide appartenenti al visir Neb-iy e alla sua sposa Sit-weret.

Pettorale della principessa Mereret, a forma di cappella in oro, ametista, turchesi, lapislazzuli, cornaline e paste vitree. La dea Nekhbet, con le ali spiegate, sovrasta il cartiglio di Sesostri III, a fianco del quale due grifoni, che evocano la potenza del re, sottomettono i nemici. Museo Egizio del Cairo

Fonte:

Le piramidi d’Egitto – Alberto Siliotti -Edizioni White Star

Mai cosa simile fu fatta, Medio Regno, Piramidi

LA PIRAMIDE DI SESOSTRI I

o ” Piramide sud di Lisht”

Di Grazia Musso

La piramide di Sesostri I presenta un’innovazione architettonica che verrà utilizzata anche nelle grandi piramidi costruite successivamente.

Nome antico: “Sesostri è favorito di sedi”

Altezza originale 61 metri

Lunghezza del lato 105 metri

Inclinazione 49°23’55”

La piramide di Sesostri I è stata localizzata nel 1882 da Gaston Maspero, venne scavata da J. E. Gautier e Gustave Jéquier nel 1894 e quindi dalla missione del Metropolitan Museum di New York tra il 1908 e il 1934.

Fu costruita con una tecnica che sarà successivamente messa in opera nella piramide di el-Lahun: dapprima vennero creati dei muri utilizzando grossi blocchi calcare disposti a raggiera intorno a un nucleo centrale, successivamente vennero colmati gli interstizi con mattoni crudi, quindi la struttura fu rivestita di lastre di calcare di Tura.

La struttura della piramide è compartimentata da una serie di muri costruiti con grossi blocchi disposti a raggi era, i cui interstizi sono stati riempiti con mattoni crudi.

La piramide era circondata da un doppio muro di cinta che delimitava una superficie rettangolare, al cui interno vennero ritrovate altre dieci piramidi sussidiarie appartenenti a dignitari e a membri della famiglia reale.

Sul lato est della piramide, dove vi era anche una piramide satellite, durante gli scavi Gautier e Jéquier ritrovarono le vestigia del tempio funerario, che presentava una struttura assai simile a quelli costruiti all’epoca della VI Dinastia, e i resti di un cortile con un portico sostenuto da 24 colonne.

Qui giacevano sepolte 10 statue in calcare raffiguranti il re in posizione seduta e a grandezza naturale, ora esposte al Museo del Cairo.

Il tempio funerario della piramide di Sesostri I è meglio conservato di quello di Amenemhat I e riprende la pianta dei Templi funerari della VI Dinastia a cui indubbiamente si ispira.

Dal lato est della cinta partiva una rampa processionale , ancora oggi visibile, bordata da mura decorate con bassorilievi, che discende a verso il tempio a valle.

Nelle vicinanze della piramide vennero ritrovate alcune mastabe, tra le quali la più importante è quella di Senusret-ankh ” grande sacerdote di Ptah”, situata circa 200 metri a est della cinta esterna la cui camera funeraria era decorata con i testi delle piramidi.

IL CARTIGLIO DI SESOSTRI I (a cura del Docente Livio Secco)

Per uno studio sugli antroponimi regali può essere utile approfondire anche con il mio testo IL PROTOCOLLO REALE – COMPOSIZIONE DELL’ONOMASTICA FARAONICA (codice QdE22) https://ilmiolibro.kataweb.it/…/il-protocollo-reale/


Fonte:

Piramidi d’Egitto – Alberto Siliotti – Edizioni White Star

Mai cosa simile fu fatta, Medio Regno, Piramidi

LA PIRAMIDE DI AMENEMHAT I

o ” Piramide nord di Lisht”

Di Grazia Musso

Piramide di Amenemhat I.
Si trova nella parte settentrionale dell’area archeologica di el-Lisht e ha oggi un’altezza di poco superiore ai 20 metri

Nome antico: “Amenemhat è elevato di perfezione”

Altezza originale 55 metri

Lunghezza del lato 78,5 metri

Inclinazione 54°27’44”

Il tempio funerario situato sul lato orientale, è quasi completamente distrutto

La piramide di Amenemhat I venne costruita su un piccolo terrapieno collocando le strutture annesse, tempio funerario e rampa processionale, su piani diversi.

Per erigere la piramide vennero utilizzati non solo mattoni crudi, ma anche materiali provvedimenti da costruzioni preesistenti.

Il tempio funerario, situato sul lato est, è costruito su una seconda terrazza più bassa di quella dove si trova la piramide, mentre a ovest, al di fuori della cinta che circonda il complesso, vi era una serie di tombe per i membri della famiglia reale.

Il re è affiancato a sinistra dal Dio Horus ieracocefalo. A destra si trova Anubis, divinità delle necropoli e dell’imbarcazione. Entrambe le divinità porgono al re un segno di vita, l’ankh. La scena è completata dalle due dee della corona e del territorio dell’Alto e Basso Egitto. Sulla sinistra Nekhbet e Uto sulla destra, che procedono verso il sovrano.
El – Lisht, tempio funerario di Amenemhat I, XII Dinastia
Pietra calcarea dipinta, Lunghezza 190 cm, Altezza 35 cm
New York, The Metropolitan Museum of Art – Roger Fu d, 08.200.5

L’ingresso all’appartamento funerario della piramide era situato sulla facciata nord da dove partiva un corridoio che conduceva nella camera sepolcrale.

Come nella piramide di Teti a Saqqara, il corridoio era preceduto da una piccola cappella.

Rilievo del tempio di Amenemhat I.
Al centro della raffigurazione compare il sovrano, che indossa una parrucca riccia con l’ureo, la barba cerimoniale e un largo collare.
Tra le mani regge le insegne del potere, il flagello è il simbolo mekes.

IL CARTIGLIO DI AMENEMHAT I (a cura del Docente Livio Secco)

Il mio testo sul Protocollo Reale lo potete trovare qui: https://ilmiolibro.kataweb.it/…/il-protocollo-reale/


Fonte:

Piramidi d’Egitto – Alberto Siliotti – Edizioni White Star

Egitto la terra dei faraoni – Regine Schulz e Matthias Seidel – Konemann